← Back to Hambleton District Council

Status

Awaiting decision New utilities
Received 19 Dec 2024
New dwellings 0

What you can do

Take Action

Make your voice heard. Authorities need to hear from people who support new homes.

Summary

Full application for energy storage system; change of house to business; outline for transmission substation.

Full Proposal

Hybrid planning application consisting of, full planning application for the erection and operation of an energy storage system including associated infrastructure, engineering works, and formation of vehicular access from highway; change of use of single dwellinghouse (Hag House) from residential use (Use Class C3) to business use; and outline planning application (with all matters reserved) for the erection and operation of a transmission substation with associated infrastructure, engineering works, landscaping and internal access arrangements, including public parking and access routes.

Detail pages

Documents

0001-NPLUK-00-XX-DR-ED-0001 Rev P01
Elevations Proposed
Not downloaded · Council link
0001-NPLUK-00-XX-DR-ED-0002 Rev P01
Elevations Proposed
Not downloaded · Council link
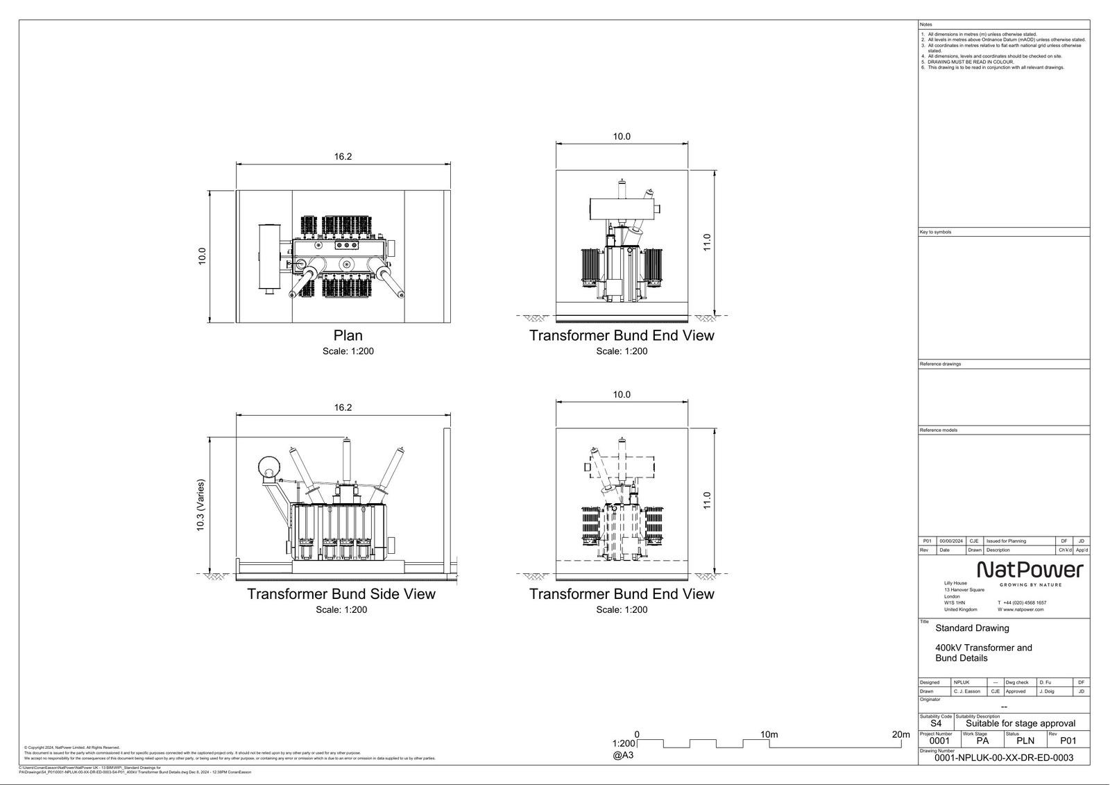
0001-NPLUK-00-XX-DR-ED-0003 Rev P01
Elevations Proposed
Not downloaded · Council link
0001-NPLUK-00-XX-DR-ED-0004 Rev P01
Elevations Proposed
Not downloaded · Council link
0001-NPLUK-00-XX-DR-ED-0005 Rev P01
Elevations Proposed
Not downloaded · Council link
0001-NPLUK-00-XX-DR-ED-0007 Rev P01
Elevations Proposed
Not downloaded · Council link
0001-NPLUK-00-XX-DR-ED-0008 Rev P01
Elevations Proposed
Not downloaded · Council link
0001-NPLUK-00-XX-DR-ED-0009 Rev P01
Elevations Proposed
Not downloaded · Council link
0001-NPLUK-00-XX-DR-ED-0010 Rev P01
Elevations Proposed
Not downloaded · Council link
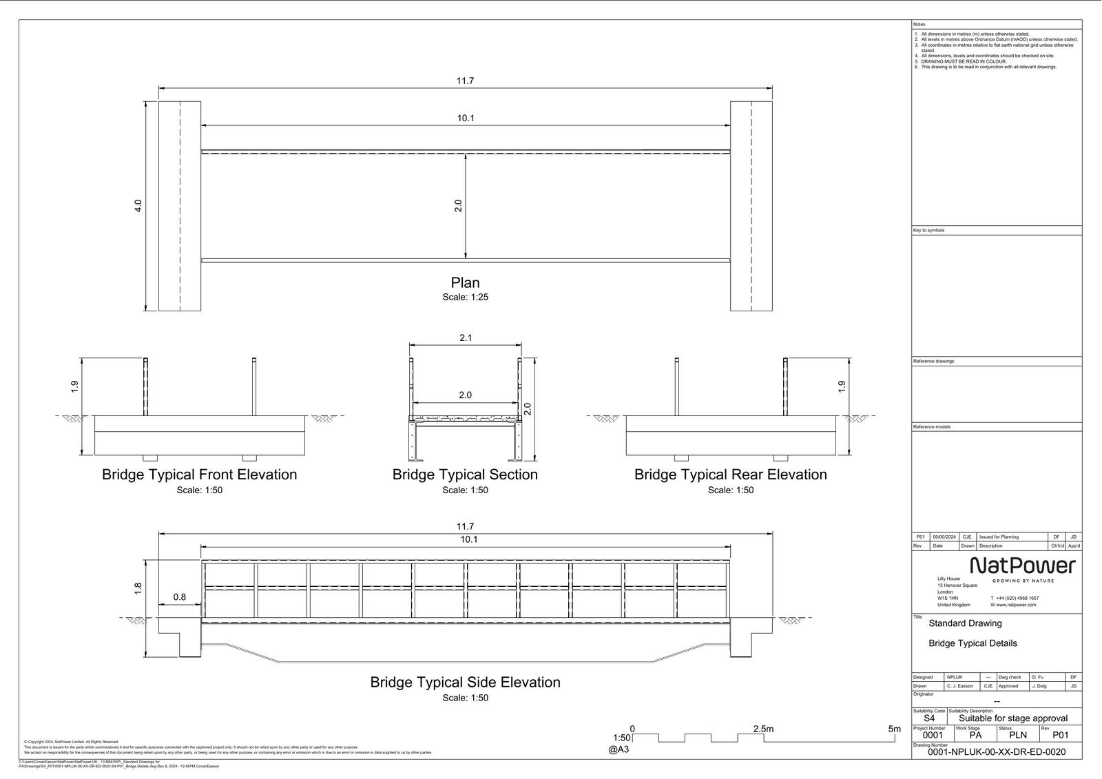
0001-NPLUK-00-XX-DR-ED-0020 Rev P01
Elevations Proposed
Not downloaded · Council link
00341-0002-02 Bellmoor BESS - Indicative Masterplan (EAST).pdf
Site Layout Plan
Not downloaded · Council link
00341-0002-02 Bellmoor BESS - Indicative Masterplan (WEST).pdf
Site Layout Plan
Not downloaded · Council link
00341-0003-04 Bellmoor BESS - Master Parameters Plan.pdf
Site Layout Plan
Not downloaded · Council link
00341-0008-01
Section Plan
Not downloaded · Council link
00341-004-01 Bellmoor BESS - Block Plan - Proposed Client Substation.pdf
Proposed block plan
Not downloaded · Council link
00341-007-02 Bellmoor BESS - Block Plan Proposed - BESS Compounds.pdf
Proposed block plan
Not downloaded · Council link
00341-009-01 Bellmoor BESS - Site Sections - BESS Compounds.pdf
Section Plan
Not downloaded · Council link
00341-010-01 Bellmoor BESS - Site Sections - Indicative TO Substation.pdf
Section Plan
Not downloaded · Council link
13 December 2024 R02 Part 1
Landscape Proposals
Not downloaded · Council link
13 December 2024 R02 Part 2
Landscape Proposals
Not downloaded · Council link
13 December 2024 R02 Part 3
Landscape Proposals
Not downloaded · Council link
13 December 2024 R02 Part 4
Landscape Proposals
Not downloaded · Council link
13 December 2024 R02 Part 5
Landscape Proposals
Not downloaded · Council link
13 December 2024 R02 Part 6
Landscape Proposals
Not downloaded · Council link
17 December 2024 Rev P02
Environmental Assessment/Investigation
Not downloaded · Council link
23232 Bellmoor Energy Storage_ Hag Lane_ South Kilvington Geophysical Survey Repo(33313143.1).pdf
Survey
Not downloaded · Council link
30986-RPS-xx-xx-DR-C-600-01_Concept Levels Plan_Sheet 1_P01.pdf
Plan
Not downloaded · Council link
30986-RPS-xx-xx-DR-C-600-02_Concept Levels Plan_Sheet 2_P01.pdf
Plan
Not downloaded · Council link
30986-RPS-xx-xx-DR-C-601-01_Cut and Fill_Sheet 1_P01.pdf
Plan
Not downloaded · Council link
30986-RPS-xx-xx-DR-C-601-02_Cut and Fill_Sheet 2_P01.pdf
Plan
Not downloaded · Council link
68877 Bellmoor ESS North Yorkshire Economic Impact Assessment (v2) 12.08.24(32651110.3).pdf
Word Document
Not downloaded · Council link
69474_01 - Planning Statement - December 2024(33152201.2).pdf
Planning Support Statement
Not downloaded · Council link
794-ENV-GDE-20764Y, V2, R0, 09 December 2024
Survey
Not downloaded · Council link
794-ENV-HYD-20784 Version 2 10.12.2024
Flood Assessment
Not downloaded · Council link
Additional Comment
Statutory Consultation Reply
Not downloaded · Council link
ApplicationFormRedacted.pdf
Planning Application (public viewing)
Not downloaded · Council link
ApplicationFormRedacted.pdf
Supercedded Documents
Not downloaded · Council link
BA23687_R_Nat Power_Bellmoor Energy Storage Thirsk_AIA_C.pdf
Tree Report
Not downloaded · Council link
Bellmoor B.E.S.S Bat Activity Survey Report.pdf
Bat Survey
Not downloaded · Council link
Bellmoor B.E.S.S_ Biodiversity Net Gain Assessment.pdf
Biodiversity Net Gain Assessment
Not downloaded · Council link
Bellmoor B.E.S.S_Breeding Bird Survey Report.pdf
Survey
Not downloaded · Council link
Bellmoor B.E.S.S_Wintering Bird Survey_16_12_2024.pdf
Survey
Not downloaded · Council link
BMG metric PDF version readable
Biodiversity Net Gain Assessment
Not downloaded · Council link
British Horse Society
Statutory Consultation Reply
Not downloaded · Council link
Comments from the Principal Landscape Architect
Statutory Consultation Reply
Not downloaded · Council link
Confirmation of extension of time
Public Correspondence
Not downloaded · Council link
Copy of 0001-NPLUK-00-XX-DR-ED-0006-S4-P01_Lighting and CCTV Column Details.pdf
Section Plan
Not downloaded · Council link
Copy of 0001-NPLUK-00-XX-DR-ED-0012-S4-P01_Maintenance Road Details.pdf
Section Plan
Not downloaded · Council link
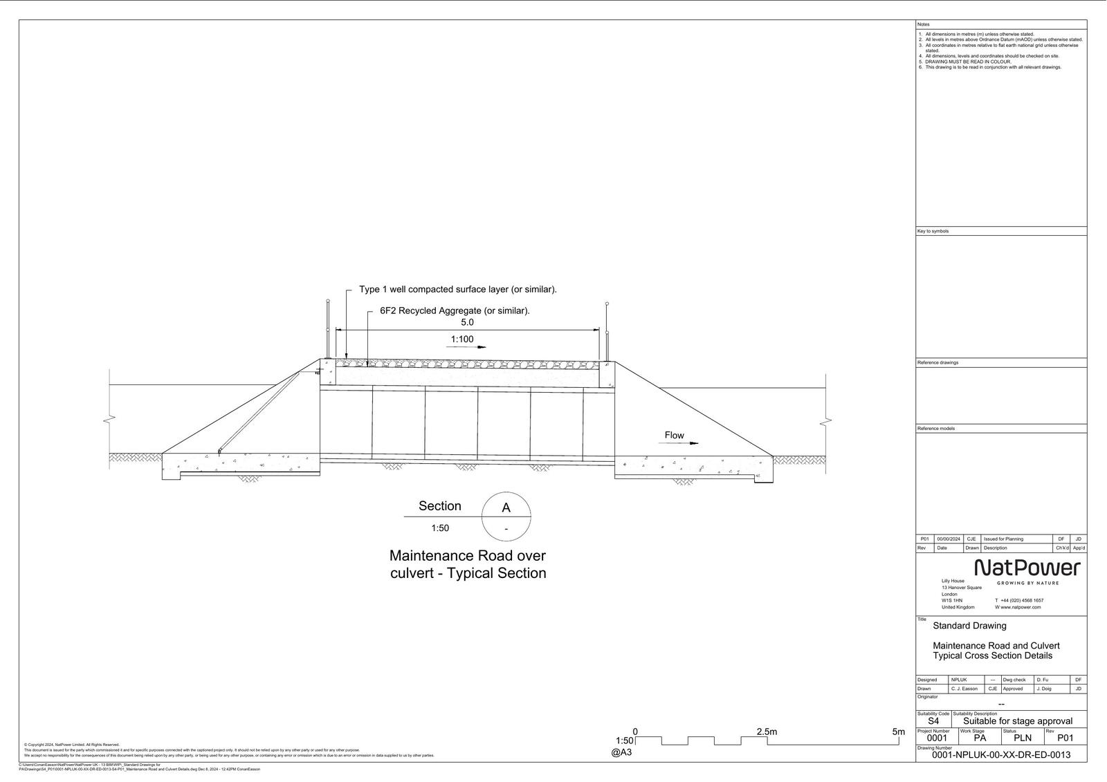
Copy of 0001-NPLUK-00-XX-DR-ED-0013-S4-P01_Maintenance Road and Culvert Details.pdf
Section Plan
Not downloaded · Council link
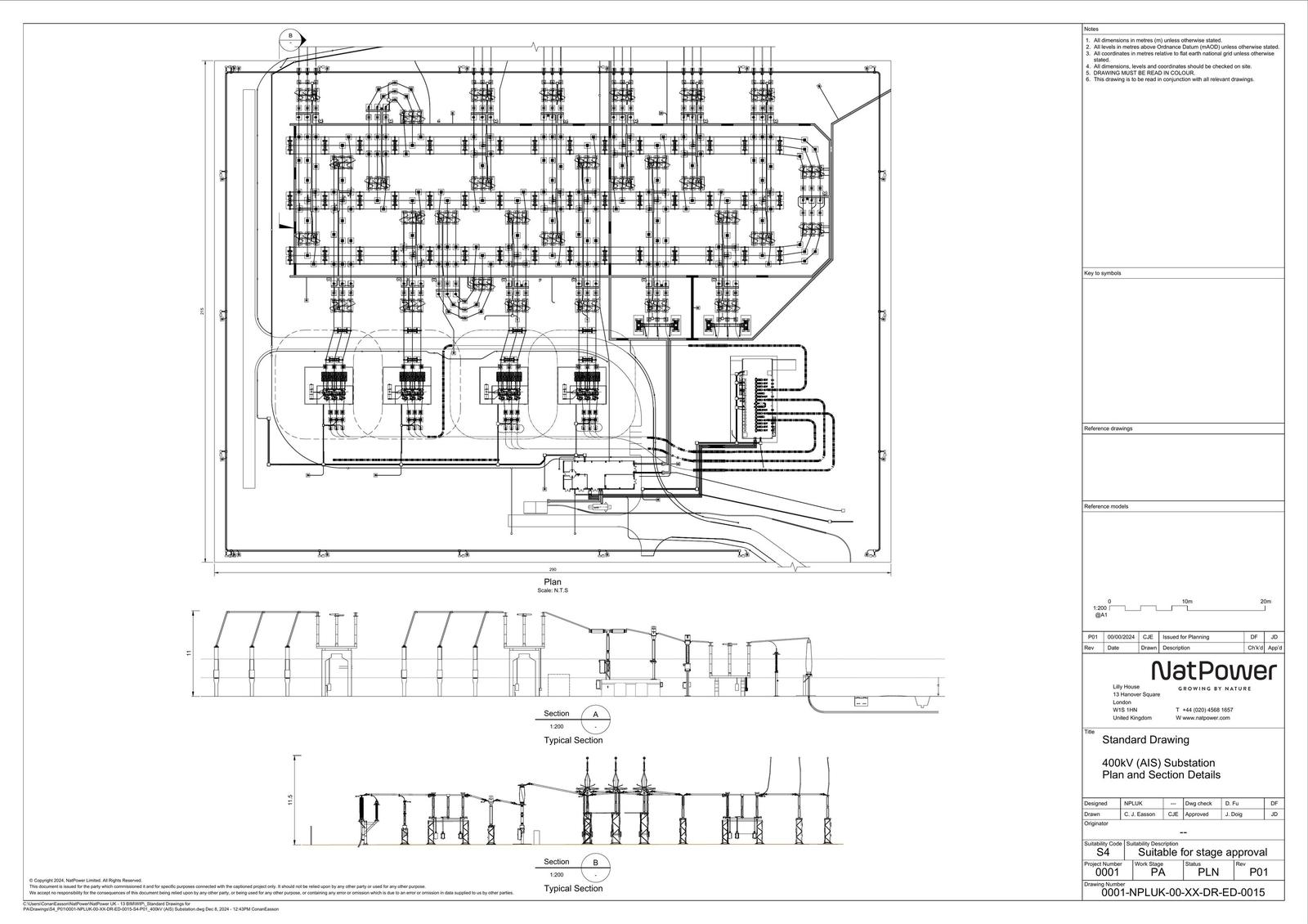
Copy of 0001-NPLUK-00-XX-DR-ED-0015-S4-P01_400kV (AIS) Substation.pdf
Section Plan
Not downloaded · Council link
Copy of 0001-NPLUK-00-XX-DR-ED-0016-S4-P01_275kV Customer Substation (1).pdf
Section Plan
Not downloaded · Council link
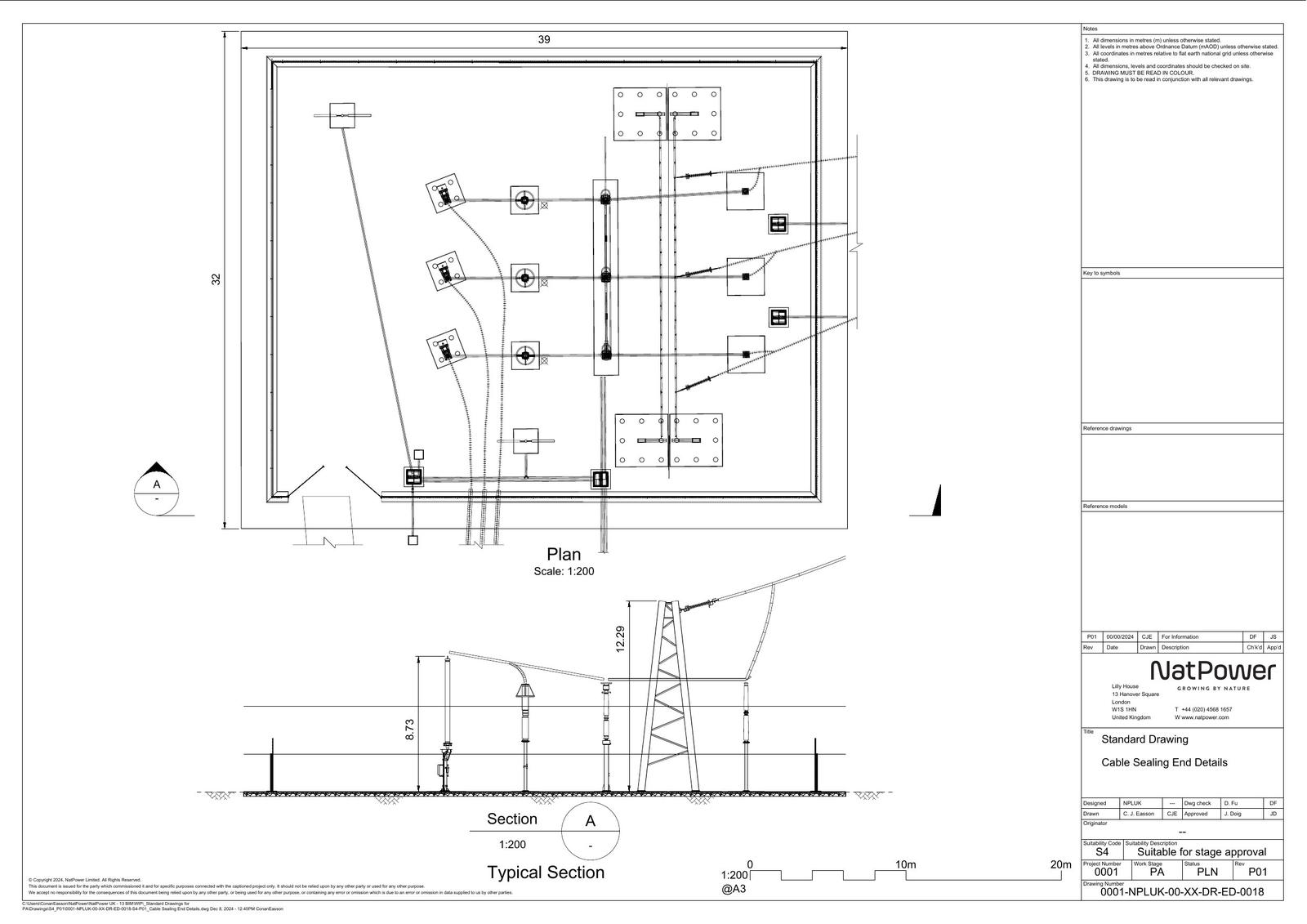
Copy of 0001-NPLUK-00-XX-DR-ED-0018-S4-P01_Cable Sealing End Details.pdf
Section Plan
Not downloaded · Council link
Copy of 0001-NPLUK-00-XX-DR-ED-0019-S4-P01_Cable Trench Details.pdf
Section Plan
Not downloaded · Council link
cover letter with redaction
cover letter with redaction
Not downloaded · Council link
December 2024
Word Document
Not downloaded · Council link
Duplicate
Observations (incoming)
Not downloaded · Council link
E H Contaminated land
Statutory Consultation Reply
Not downloaded · Council link
Environment agency
Statutory Consultation Reply
Not downloaded · Council link
Environmental Health
Statutory Consultation Reply
Not downloaded · Council link
EOT to 24.04.2026
Public Correspondence
Not downloaded · Council link
Extension of time agreement
Public Correspondence
Not downloaded · Council link
FeeCalculation.pdf
Section Plan
Not downloaded · Council link
Hag Lane Bellmoor Construction Traffic Management Plan.pdf
Word Document
Not downloaded · Council link
Hag Lane Belmoor Transport Statement.pdf
Word Document
Not downloaded · Council link
Heath and Safety Executive
Statutory Consultation Reply
Not downloaded · Council link
Heritage Services
Statutory Consultation Reply
Not downloaded · Council link
Highways notice
Word Document
Not downloaded · Council link
Hillside Parish council
Statutory Consultation Reply
Not downloaded · Council link
Histoic England
Statutory Consultation Reply
Not downloaded · Council link
lead local flood authority
Statutory Consultation Reply
Not downloaded · Council link
LF69474 Bellmoor Hag Lane - DAS - Dec24 (v5 lo-res).pdf
Design & Access Statement
Not downloaded · Council link
Local resident, a national risk reduction consultant, submitted a Critical Review of the Verification and Compliance Report for the 1000 MW BESS development.
Statutory Consultation Reply
Not downloaded · Council link
Map
Statutory Consultation Reply
Not downloaded · Council link
Ministry of Defence (MOD)
Statutory Consultation Reply
Not downloaded · Council link
National Grid Gas
Statutory Consultation Reply
Not downloaded · Council link
National Highways
Statutory Consultation Reply
Not downloaded · Council link
National Highways
Statutory Consultation Reply
Not downloaded · Council link
National Highways
Statutory Consultation Reply
Not downloaded · Council link
National Highways
Statutory Consultation Reply
Not downloaded · Council link
National Highways
Statutory Consultation Reply
Not downloaded · Council link
Natural England
Statutory Consultation Reply
Not downloaded · Council link
Noise impact assessment 17 December 2024 Rev P02
Survey
Not downloaded · Council link
NYC Ecology
Statutory Consultation Reply
Not downloaded · Council link
NYC Highways
Statutory Consultation Reply
Not downloaded · Council link
NYC Highways
Statutory Consultation Reply
Not downloaded · Council link
NYM National Park
Statutory Consultation Reply
Not downloaded · Council link
OBJECT
Observations (incoming)
Not downloaded · Council link
OBJECT
Observations (incoming)
Not downloaded · Council link
OBJECT
Observations (incoming)
Not downloaded · Council link
Objection
Observations (incoming)
Not downloaded · Council link
Objection
Observations (incoming)
Not downloaded · Council link
Objection
Observations (incoming)
Not downloaded · Council link
Objection
Observations (incoming)
Not downloaded · Council link
Objection
Observations (incoming)
Not downloaded · Council link
Objection
Observations (incoming)
Not downloaded · Council link
Objection
Observations (incoming)
Not downloaded · Council link
Objection
Observations (incoming)
Not downloaded · Council link
Objection
Observations (incoming)
Not downloaded · Council link
Objection
Observations (incoming)
Not downloaded · Council link
Objection
Observations (incoming)
Not downloaded · Council link
Objection
Observations (incoming)
Not downloaded · Council link
Objection
Observations (incoming)
Not downloaded · Council link
Objection
Observations (incoming)
Not downloaded · Council link
Objection
Observations (incoming)
Not downloaded · Council link
Objection
Observations (incoming)
Not downloaded · Council link
Objection
Observations (incoming)
Not downloaded · Council link
Objection
Observations (incoming)
Not downloaded · Council link
Objection
Observations (incoming)
Not downloaded · Council link
Objection
Observations (incoming)
Not downloaded · Council link
Objection
Observations (incoming)
Not downloaded · Council link
Objection
Observations (incoming)
Not downloaded · Council link
Objection
Observations (incoming)
Not downloaded · Council link
Objection
Observations (incoming)
Not downloaded · Council link
Objection
Observations (incoming)
Not downloaded · Council link
Objection
Observations (incoming)
Not downloaded · Council link
Objection
Observations (incoming)
Not downloaded · Council link
Objection
Observations (incoming)
Not downloaded · Council link
Objection
Observations (incoming)
Not downloaded · Council link
Objection
Observations (incoming)
Not downloaded · Council link
Objection
Observations (incoming)
Not downloaded · Council link
Objection
Observations (incoming)
Not downloaded · Council link
Objection
Observations (incoming)
Not downloaded · Council link
Objection
Observations (incoming)
Not downloaded · Council link
Objection
Observations (incoming)
Not downloaded · Council link
Objection
Observations (incoming)
Not downloaded · Council link
Objection
Observations (incoming)
Not downloaded · Council link
Objection
Observations (incoming)
Not downloaded · Council link
Objection
Observations (incoming)
Not downloaded · Council link
Objection
Observations (incoming)
Not downloaded · Council link
Objection
Observations (incoming)
Not downloaded · Council link
Objection
Observations (incoming)
Not downloaded · Council link
Objection
Observations (incoming)
Not downloaded · Council link
Objection
Observations (incoming)
Not downloaded · Council link
Objection
Observations (incoming)
Not downloaded · Council link
Objection
Observations (incoming)
Not downloaded · Council link
Objection
Observations (incoming)
Not downloaded · Council link
Objection
Observations (incoming)
Not downloaded · Council link
Objection
Observations (incoming)
Not downloaded · Council link
Objection
Observations (incoming)
Not downloaded · Council link
Objection
Observations (incoming)
Not downloaded · Council link
Objection
Observations (incoming)
Not downloaded · Council link
Objection
Observations (incoming)
Not downloaded · Council link
Objection
Observations (incoming)
Not downloaded · Council link
Objection
Observations (incoming)
Not downloaded · Council link
Objection
Observations (incoming)
Not downloaded · Council link
Objection
Observations (incoming)
Not downloaded · Council link
Objection
Observations (incoming)
Not downloaded · Council link
Objection
Observations (incoming)
Not downloaded · Council link
Objection
Observations (incoming)
Not downloaded · Council link
Objection
Observations (incoming)
Not downloaded · Council link
Objection
Observations (incoming)
Not downloaded · Council link
Objection
Observations (incoming)
Not downloaded · Council link
Objection
Observations (incoming)
Not downloaded · Council link
Objection
Observations (incoming)
Not downloaded · Council link
Objection
Observations (incoming)
Not downloaded · Council link
Objection
Observations (incoming)
Not downloaded · Council link
Objection
Observations (incoming)
Not downloaded · Council link
Objection
Observations (incoming)
Not downloaded · Council link
Objection
Observations (incoming)
Not downloaded · Council link
Objection
Observations (incoming)
Not downloaded · Council link
Objection
Observations (incoming)
Not downloaded · Council link
Objection with photos
Observations (incoming)
Not downloaded · Council link
OBJECTS
Observations (incoming)
Not downloaded · Council link
OBJECTS
Observations (incoming)
Not downloaded · Council link
OBJECTS
Observations (incoming)
Not downloaded · Council link
OBJECTS
Observations (incoming)
Not downloaded · Council link
OBJECTS
Observations (incoming)
Not downloaded · Council link
OBJECTS
Observations (incoming)
Not downloaded · Council link
OBJECTS
Observations (incoming)
Not downloaded · Council link
OBJECTS
Observations (incoming)
Not downloaded · Council link
OBJECTS
Observations (incoming)
Not downloaded · Council link
OBJECTS
Observations (incoming)
Not downloaded · Council link
OBJECTS
Observations (incoming)
Not downloaded · Council link
OBJECTS
Observations (incoming)
Not downloaded · Council link
OBJECTS
Observations (incoming)
Not downloaded · Council link
OBJECTS
Observations (incoming)
Not downloaded · Council link
OBJECTS
Observations (incoming)
Not downloaded · Council link
OBJECTS
Observations (incoming)
Not downloaded · Council link
OBJECTS
Observations (incoming)
Not downloaded · Council link
OBJECTS
Observations (incoming)
Not downloaded · Council link
OBJECTS
Observations (incoming)
Not downloaded · Council link
OBJECTS
Observations (incoming)
Not downloaded · Council link
OBJECTS
Observations (incoming)
Not downloaded · Council link
OBJECTS
Observations (incoming)
Not downloaded · Council link
OBJECTS
Observations (incoming)
Not downloaded · Council link
OBJECTS
Observations (incoming)
Not downloaded · Council link
OBJECTS
Observations (incoming)
Not downloaded · Council link
OBJECTS
Observations (incoming)
Not downloaded · Council link
OBJECTS
Observations (incoming)
Not downloaded · Council link
OBJECTS
Observations (incoming)
Not downloaded · Council link
OBJECTS
Observations (incoming)
Not downloaded · Council link
OBJECTS
Observations (incoming)
Not downloaded · Council link
OBJECTS
Observations (incoming)
Not downloaded · Council link
OBJECTS
Observations (incoming)
Not downloaded · Council link
OBJECTS
Observations (incoming)
Not downloaded · Council link
OBJECTS
Observations (incoming)
Not downloaded · Council link
OBJECTS
Observations (incoming)
Not downloaded · Council link
OBJECTS
Observations (incoming)
Not downloaded · Council link
OBJECTS
Observations (incoming)
Not downloaded · Council link
OBJECTS
Observations (incoming)
Not downloaded · Council link
OBJECTS
Observations (incoming)
Not downloaded · Council link
OBJECTS
Observations (incoming)
Not downloaded · Council link
OBJECTS
Observations (incoming)
Not downloaded · Council link
OBJECTS
Observations (incoming)
Not downloaded · Council link
OBJECTS
Observations (incoming)
Not downloaded · Council link
OBJECTS
Observations (incoming)
Not downloaded · Council link
OBJECTS
Observations (incoming)
Not downloaded · Council link
OBJECTS
Observations (incoming)
Not downloaded · Council link
OBJECTS
Observations (incoming)
Not downloaded · Council link
OBJECTS
Observations (incoming)
Not downloaded · Council link
OBJECTS
Observations (incoming)
Not downloaded · Council link
OBJECTS
Observations (incoming)
Not downloaded · Council link
OBJECTS
Observations (incoming)
Not downloaded · Council link
OBJECTS
Observations (incoming)
Not downloaded · Council link
OBJECTS
Observations (incoming)
Not downloaded · Council link
OBJECTS
Observations (incoming)
Not downloaded · Council link
OBJECTS
Observations (incoming)
Not downloaded · Council link
OBJECTS
Observations (incoming)
Not downloaded · Council link
OBJECTS
Observations (incoming)
Not downloaded · Council link
OBJECTS
Observations (incoming)
Not downloaded · Council link
OBJECTS
Observations (incoming)
Not downloaded · Council link
OBJECTS
Observations (incoming)
Not downloaded · Council link
OBJECTS
Observations (incoming)
Not downloaded · Council link
OBJECTS
Observations (incoming)
Not downloaded · Council link
OBJECTS
Observations (incoming)
Not downloaded · Council link
OBJECTS
Observations (incoming)
Not downloaded · Council link
OBJECTS
Observations (incoming)
Not downloaded · Council link
OBJECTS
Observations (incoming)
Not downloaded · Council link
OBJECTS
Observations (incoming)
Not downloaded · Council link
OBJECTS
Observations (incoming)
Not downloaded · Council link
OBJECTS
Observations (incoming)
Not downloaded · Council link
OBJECTS
Observations (incoming)
Not downloaded · Council link
OBJECTS
Observations (incoming)
Not downloaded · Council link
OBJECTS
Observations (incoming)
Not downloaded · Council link
OBJECTS
Observations (incoming)
Not downloaded · Council link
OBJECTS
Observations (incoming)
Not downloaded · Council link
OBJECTS
Observations (incoming)
Not downloaded · Council link
OBJECTS
Observations (incoming)
Not downloaded · Council link
OBJECTS
Observations (incoming)
Not downloaded · Council link
OBJECTS
Observations (incoming)
Not downloaded · Council link
OBJECTS
Observations (incoming)
Not downloaded · Council link
OBJECTS
Observations (incoming)
Not downloaded · Council link
OBJECTS
Observations (incoming)
Not downloaded · Council link
OBJECTS
Observations (incoming)
Not downloaded · Council link
OBJECTS
Observations (incoming)
Not downloaded · Council link
OBJECTS
Observations (incoming)
Not downloaded · Council link
OBJECTS
Observations (incoming)
Not downloaded · Council link
OBJECTS
Observations (incoming)
Not downloaded · Council link
OBJECTS
Observations (incoming)
Not downloaded · Council link
OBJECTS
Observations (incoming)
Not downloaded · Council link
OBJECTS
Observations (incoming)
Not downloaded · Council link
OBJECTS
Observations (incoming)
Not downloaded · Council link
OBJECTS
Observations (incoming)
Not downloaded · Council link
OBJECTS
Observations (incoming)
Not downloaded · Council link
OBJECTS
Observations (incoming)
Not downloaded · Council link
OBJECTS
Observations (incoming)
Not downloaded · Council link
OBJECTS
Observations (incoming)
Not downloaded · Council link
OBJECTS
Observations (incoming)
Not downloaded · Council link
OBJECTS
Observations (incoming)
Not downloaded · Council link
OBJECTS
Observations (incoming)
Not downloaded · Council link
OBJECTS
Observations (incoming)
Not downloaded · Council link
OBJECTS
Observations (incoming)
Not downloaded · Council link
OBJECTS
Observations (incoming)
Not downloaded · Council link
OBJECTS
Observations (incoming)
Not downloaded · Council link
OBJECTS
Observations (incoming)
Not downloaded · Council link
OBJECTS
Observations (incoming)
Not downloaded · Council link
OBJECTS
Observations (incoming)
Not downloaded · Council link
OBJECTS
Observations (incoming)
Not downloaded · Council link
OBJECTS
Observations (incoming)
Not downloaded · Council link
OBJECTS
Observations (incoming)
Not downloaded · Council link
OBJECTS
Observations (incoming)
Not downloaded · Council link
OBJECTS
Observations (incoming)
Not downloaded · Council link
OBJECTS
Observations (incoming)
Not downloaded · Council link
OBJECTS
Observations (incoming)
Not downloaded · Council link
OBJECTS
Observations (incoming)
Not downloaded · Council link
OBJECTS
Observations (incoming)
Not downloaded · Council link
OBJECTS
Observations (incoming)
Not downloaded · Council link
OBJECTS
Observations (incoming)
Not downloaded · Council link
OBJECTS
Observations (incoming)
Not downloaded · Council link
OBJECTS
Observations (incoming)
Not downloaded · Council link
OBJECTS
Observations (incoming)
Not downloaded · Council link
OBJECTS
Observations (incoming)
Not downloaded · Council link
OBJECTS
Observations (incoming)
Not downloaded · Council link
OBJECTS
Observations (incoming)
Not downloaded · Council link
OBJECTS
Observations (incoming)
Not downloaded · Council link
OBJECTS
Observations (incoming)
Not downloaded · Council link
OBJECTS
Observations (incoming)
Not downloaded · Council link
OBJECTS
Observations (incoming)
Not downloaded · Council link
OBJECTS
Observations (incoming)
Not downloaded · Council link
OBJECTS
Observations (incoming)
Not downloaded · Council link
OBJECTS
Observations (incoming)
Not downloaded · Council link
OBJECTS
Observations (incoming)
Not downloaded · Council link
OBJECTS
Observations (incoming)
Not downloaded · Council link
OBJECTS
Observations (incoming)
Not downloaded · Council link
OBJECTS
Observations (incoming)
Not downloaded · Council link
OBJECTS
Observations (incoming)
Not downloaded · Council link
OBJECTS
Observations (incoming)
Not downloaded · Council link
OBJECTS
Observations (incoming)
Not downloaded · Council link
OBJECTS
Observations (incoming)
Not downloaded · Council link
OBJECTS
Observations (incoming)
Not downloaded · Council link
OBJECTS
Observations (incoming)
Not downloaded · Council link
OBJECTS
Observations (incoming)
Not downloaded · Council link
OBJECTS
Observations (incoming)
Not downloaded · Council link
OBJECTS
Observations (incoming)
Not downloaded · Council link
OBJECTS
Observations (incoming)
Not downloaded · Council link
OBJECTS
Observations (incoming)
Not downloaded · Council link
OBJECTS
Observations (incoming)
Not downloaded · Council link
OBJECTS
Observations (incoming)
Not downloaded · Council link
OBJECTS
Observations (incoming)
Not downloaded · Council link
OBJECTS
Observations (incoming)
Not downloaded · Council link
OBJECTS
Observations (incoming)
Not downloaded · Council link
OBJECTS
Observations (incoming)
Not downloaded · Council link
OBJECTS
Observations (incoming)
Not downloaded · Council link
OBJECTS
Observations (incoming)
Not downloaded · Council link
OBJECTS
Observations (incoming)
Not downloaded · Council link
OBJECTS
Observations (incoming)
Not downloaded · Council link
OBJECTS
Observations (incoming)
Not downloaded · Council link
OBJECTS
Observations (incoming)
Not downloaded · Council link
OBJECTS
Observations (incoming)
Not downloaded · Council link
OBJECTS
Observations (incoming)
Not downloaded · Council link
OBJECTS
Observations (incoming)
Not downloaded · Council link
OBJECTS
Observations (incoming)
Not downloaded · Council link
OBJECTS
Observations (incoming)
Not downloaded · Council link
OBJECTS
Observations (incoming)
Not downloaded · Council link
OBJECTS
Observations (incoming)
Not downloaded · Council link
OBJECTS
Observations (incoming)
Not downloaded · Council link
OBJECTS
Observations (incoming)
Not downloaded · Council link
OBJECTS
Observations (incoming)
Not downloaded · Council link
OBJECTS
Observations (incoming)
Not downloaded · Council link
OBJECTS
Observations (incoming)
Not downloaded · Council link
OBJECTS
Observations (incoming)
Not downloaded · Council link
OBJECTS
Observations (incoming)
Not downloaded · Council link
OBJECTS
Observations (incoming)
Not downloaded · Council link
OBJECTS
Observations (incoming)
Not downloaded · Council link
OBJECTS
Observations (incoming)
Not downloaded · Council link
OBJECTS
Observations (incoming)
Not downloaded · Council link
OBJECTS
Observations (incoming)
Not downloaded · Council link
OBJECTS
Observations (incoming)
Not downloaded · Council link
OBJECTS
Observations (incoming)
Not downloaded · Council link
OBJECTS
Observations (incoming)
Not downloaded · Council link
OBJECTS
Observations (incoming)
Not downloaded · Council link
OBJECTS
Observations (incoming)
Not downloaded · Council link
OBJECTS
Observations (incoming)
Not downloaded · Council link
OBJECTS
Observations (incoming)
Not downloaded · Council link
OBJECTS
Observations (incoming)
Not downloaded · Council link
OBJECTS
Observations (incoming)
Not downloaded · Council link
OBJECTS
Observations (incoming)
Not downloaded · Council link
OBJECTS
Observations (incoming)
Not downloaded · Council link
OBJECTS
Observations (incoming)
Not downloaded · Council link
OBJECTS
Observations (incoming)
Not downloaded · Council link
OBJECTS
Observations (incoming)
Not downloaded · Council link
OBJECTS
Observations (incoming)
Not downloaded · Council link
OBJECTS
Observations (incoming)
Not downloaded · Council link
OBJECTS
Observations (incoming)
Not downloaded · Council link
OBJECTS
Observations (incoming)
Not downloaded · Council link
OBJECTS
Observations (incoming)
Not downloaded · Council link
OBJECTS
Observations (incoming)
Not downloaded · Council link
OBJECTS
Observations (incoming)
Not downloaded · Council link
OBJECTS
Observations (incoming)
Not downloaded · Council link
OBJECTS
Observations (incoming)
Not downloaded · Council link
OBJECTS
Observations (incoming)
Not downloaded · Council link
OBJECTS
Observations (incoming)
Not downloaded · Council link
OBJECTS
Observations (incoming)
Not downloaded · Council link
OBJECTS
Observations (incoming)
Not downloaded · Council link
OBJECTS
Observations (incoming)
Not downloaded · Council link
OBJECTS
Observations (incoming)
Not downloaded · Council link
OBJECTS
Observations (incoming)
Not downloaded · Council link
OBJECTS
Observations (incoming)
Not downloaded · Council link
OBJECTS
Observations (incoming)
Not downloaded · Council link
OBJECTS
Observations (incoming)
Not downloaded · Council link
OBJECTS
Observations (incoming)
Not downloaded · Council link
OBJECTS
Observations (incoming)
Not downloaded · Council link
OBJECTS
Observations (incoming)
Not downloaded · Council link
OBJECTS
Observations (incoming)
Not downloaded · Council link
OBJECTS
Observations (incoming)
Not downloaded · Council link
OBJECTS
Observations (incoming)
Not downloaded · Council link
OBJECTS
Observations (incoming)
Not downloaded · Council link
OBJECTS
Observations (incoming)
Not downloaded · Council link
OBJECTS
Observations (incoming)
Not downloaded · Council link
OBJECTS
Observations (incoming)
Not downloaded · Council link
OBJECTS
Observations (incoming)
Not downloaded · Council link
OBJECTS
Observations (incoming)
Not downloaded · Council link
OBJECTS
Observations (incoming)
Not downloaded · Council link
OBJECTS
Observations (incoming)
Not downloaded · Council link
OBJECTS
Observations (incoming)
Not downloaded · Council link
OBJECTS
Observations (incoming)
Not downloaded · Council link
OBJECTS
Observations (incoming)
Not downloaded · Council link
OBJECTS
Observations (incoming)
Not downloaded · Council link
OBJECTS
Observations (incoming)
Not downloaded · Council link
OBJECTS
Observations (incoming)
Not downloaded · Council link
OBJECTS
Observations (incoming)
Not downloaded · Council link
OBJECTS
Observations (incoming)
Not downloaded · Council link
OBJECTS
Observations (incoming)
Not downloaded · Council link
OBJECTS
Observations (incoming)
Not downloaded · Council link
OBJECTS
Observations (incoming)
Not downloaded · Council link
OBJECTS
Observations (incoming)
Not downloaded · Council link
OBJECTS
Observations (incoming)
Not downloaded · Council link
OBJECTS
Observations (incoming)
Not downloaded · Council link
OBJECTS
Observations (incoming)
Not downloaded · Council link
OBJECTS
Observations (incoming)
Not downloaded · Council link
OBJECTS
Observations (incoming)
Not downloaded · Council link
OBJECTS
Observations (incoming)
Not downloaded · Council link
OBJECTS
Observations (incoming)
Not downloaded · Council link
OBJECTS
Observations (incoming)
Not downloaded · Council link
OBJECTS
Observations (incoming)
Not downloaded · Council link
OBJECTS
Observations (incoming)
Not downloaded · Council link
OBJECTS
Observations (incoming)
Not downloaded · Council link
OBJECTS
Observations (incoming)
Not downloaded · Council link
OBJECTS
Observations (incoming)
Not downloaded · Council link
OBJECTS
Observations (incoming)
Not downloaded · Council link
OBJECTS
Observations (incoming)
Not downloaded · Council link
OBJECTS
Observations (incoming)
Not downloaded · Council link
OBJECTS
Observations (incoming)
Not downloaded · Council link
OBJECTS
Observations (incoming)
Not downloaded · Council link
OBJECTS
Observations (incoming)
Not downloaded · Council link
OBJECTS
Observations (incoming)
Not downloaded · Council link
OBJECTS
Observations (incoming)
Not downloaded · Council link
OBJECTS
Observations (incoming)
Not downloaded · Council link
OBJECTS
Observations (incoming)
Not downloaded · Council link
OBJECTS
Observations (incoming)
Not downloaded · Council link
OBJECTS
Observations (incoming)
Not downloaded · Council link
OBJECTS
Observations (incoming)
Not downloaded · Council link
OBJECTS - " As a green field site, the development of such a scheme should not even have been considered. Surel..."
Observations (incoming)
Not downloaded · Council link
OBJECTS - " I wish to object to the proposed development of a battery storage facility on farmland near Thirsk...."
Observations (incoming)
Not downloaded · Council link
OBJECTS - " My objection to this proposal is that it is in totally the wrong place. I have attended the consult..."
Observations (incoming)
Not downloaded · Council link
OBJECTS - " SAFETY and SECURITY We have all seen evidence of much smaller battery storage developments which as..."
Observations (incoming)
Not downloaded · Council link
OBJECTS - " Subject: Concerns Regarding the Bellmoor Battery Energy Storage System (BESS) I am writing to expr..."
Observations (incoming)
Not downloaded · Council link
OBJECTS - " There are several reasons i object to this battery storage planning applications, and why the site ..."
Observations (incoming)
Not downloaded · Council link
OBJECTS - " There are several reasons why this development should not proceed, each of which raises significant..."
Observations (incoming)
Not downloaded · Council link
OBJECTS - " This BESS threatens agricultural land, which is needed for food production. As we already import 45..."
Observations (incoming)
Not downloaded · Council link
OBJECTS - " We object to the proposed developments on the following grounds; The size and scale of this develop..."
Observations (incoming)
Not downloaded · Council link
OBJECTS - "- a full Environmental Impact Assessment is needed this will be so damaging to the environment and i..."
Observations (incoming)
Not downloaded · Council link
OBJECTS - "- An Environmental Impact Assessment should be undertaken as this could be damaging to the environme..."
Observations (incoming)
Not downloaded · Council link
OBJECTS - "."
Observations (incoming)
Not downloaded · Council link
OBJECTS - "."
Observations (incoming)
Not downloaded · Council link
OBJECTS - "."
Observations (incoming)
Not downloaded · Council link
OBJECTS - "."
Observations (incoming)
Not downloaded · Council link
OBJECTS - "..."
Observations (incoming)
Not downloaded · Council link
OBJECTS - "1)This is agricultural land and should not be industrialised, the rules are there to protect our lan..."
Observations (incoming)
Not downloaded · Council link
OBJECTS - "1. Landscape and Environment. Damaging natural beauty of the area. 2. Tourism impacted negatively. D..."
Observations (incoming)
Not downloaded · Council link
OBJECTS - "A storage facility of this size will affect the intrinsic beauty of this area. I am a member of a wa..."
Observations (incoming)
Not downloaded · Council link
OBJECTS - "Absolute disgrace to consider this. A view enjoyed by many will be ruined - totally unacceptable. Go..."
Observations (incoming)
Not downloaded · Council link
OBJECTS - "Absolutely disgusted at this proposed monstrosity Proposed Bellmoor BESS is 1GW. If built, it will ..."
Observations (incoming)
Not downloaded · Council link
OBJECTS - "Absolutely no need to ruin the area. The farmland and countryside cannot be sacrificed to this devel..."
Observations (incoming)
Not downloaded · Council link
OBJECTS - "Application No: ZB24/02454/HYB Location and Description: Hag Lane South Kilvington (Hybrid BESS, su..."
Observations (incoming)
Not downloaded · Council link
OBJECTS - "Application No: ZB24/02454/HYB Location and Description: Hag Lane South Kilvington (Hybrid BESS, su..."
Observations (incoming)
Not downloaded · Council link
OBJECTS - "Application Number ZB24/02454/HYB Battery Energy Storage at Hag Lane South Kilvington and Transmissi..."
Observations (incoming)
Not downloaded · Council link
OBJECTS - "Application Number ZB24/02454HYB Battery Energy Storage at Hag lane South Kilvington and Transmissio..."
Observations (incoming)
Not downloaded · Council link
OBJECTS - "As a close neighbour to the proposed development, I strongly object. I can clearly see the site from..."
Observations (incoming)
Not downloaded · Council link
OBJECTS - "As a lifelong resident of Thirsk, and more recently, a homeowner within the town, I have major conce..."
Observations (incoming)
Not downloaded · Council link
OBJECTS - "As a resident of east Thirsk, having lived in Thirsk for approaching 25 years I object to the propos..."
Observations (incoming)
Not downloaded · Council link
OBJECTS - "As a resident of Thirlby near Thirsk I am writing to express my deep concerns and unequivocal opposi..."
Observations (incoming)
Not downloaded · Council link
OBJECTS - "As a resident of Thirsk I strongly object to this planning application which will destroy habitats a..."
Observations (incoming)
Not downloaded · Council link
OBJECTS - "As a resident of Thirsk, I have enjoyed the natural beauty of this small countryside market town my ..."
Observations (incoming)
Not downloaded · Council link
OBJECTS - "As a walker I feel that this development is inappropriate for this location. It will deter visitors,..."
Observations (incoming)
Not downloaded · Council link
OBJECTS - "As an owner of a renewables company based in Thirsk I could not disagree more with the proposed plan..."
Observations (incoming)
Not downloaded · Council link
OBJECTS - "As per my last objection. I strongly object to the proposed battery plant near our scenic countrysid..."
Observations (incoming)
Not downloaded · Council link
OBJECTS - "As per previous comments i strongly object. Why destroy a green field site known for its outstanding..."
Observations (incoming)
Not downloaded · Council link
OBJECTS - "Basically, it is not needed nor wanted by the vast majority of people who actually live here, in thi..."
Observations (incoming)
Not downloaded · Council link
OBJECTS - "Batteries As a resident, I am hugely concerned about the proposed BESS plant. I object to it to be c..."
Observations (incoming)
Not downloaded · Council link
OBJECTS - "Battery Energy Storage System (BESS) - Lithium Ion Battery Storage - Thirsk 1. North Yorkshire wate..."
Observations (incoming)
Not downloaded · Council link
OBJECTS - "Battery Energy Storage System (BESS) - Lithium Ion Battery Storage - Thirsk 1. The Bellmoor BESS is ..."
Observations (incoming)
Not downloaded · Council link
OBJECTS - "Battery Energy Storage System (BESS) - Lithium Ion Battery Storage - Thirsk The Health and Safety of..."
Observations (incoming)
Not downloaded · Council link
OBJECTS - "Battery storage facilities can be large and visually intrusive, negatively impacting the character o..."
Observations (incoming)
Not downloaded · Council link
OBJECTS - "Bellmoor BESS is 1GW. If built, it will be one of the largest lithium battery plants worldwide. Lith..."
Observations (incoming)
Not downloaded · Council link
OBJECTS - "BELLMOOR ENERGY STORAGE Battery storage systems should be built on industrial land not sustainable c..."
Observations (incoming)
Not downloaded · Council link
OBJECTS - "Besides all the dangers of lithium and it's horrible dangers to the environment, why on earth are yo..."
Observations (incoming)
Not downloaded · Council link
OBJECTS - "BESS at Thirsk will pose significant negative consequences to the community including: - loss of am..."
Observations (incoming)
Not downloaded · Council link
OBJECTS - "BESS projects must be encouraged, but this is the wrong site : Use old airfield runways or brown fie..."
Observations (incoming)
Not downloaded · Council link
OBJECTS - "Blot on the gorgeous landscape. Ruining countryside which we live near to and visit often"
Observations (incoming)
Not downloaded · Council link
OBJECTS - "Couldn't object anymore than I do..."
Observations (incoming)
Not downloaded · Council link
OBJECTS - "Dear Ms O'Driscoll and Members of the Planning Committee I would like to object to the application I..."
Observations (incoming)
Not downloaded · Council link
OBJECTS - "Dear Ms O'Driscoll, I wish to object to this proposal for the following reasons:- - Loss of, and ind..."
Observations (incoming)
Not downloaded · Council link
OBJECTS - "Dear North Yorkshire Council, I am writing to object to the battery storage planning proposal. As a..."
Observations (incoming)
Not downloaded · Council link
OBJECTS - "Dear Sir/Madam I would like to oppose the building of the battery storage facility on this site. The..."
Observations (incoming)
Not downloaded · Council link
OBJECTS - "Dear Sir/Madam, I am writing to formally object to the above-mentioned planning application for the ..."
Observations (incoming)
Not downloaded · Council link
OBJECTS - "Definitely no to this"
Observations (incoming)
Not downloaded · Council link
OBJECTS - "Does not fit with character of area. Does not benefit the community. Fire hazard and hazard to commu..."
Observations (incoming)
Not downloaded · Council link
OBJECTS - "Drastically unsafe and the infrastructure in the area is not suitable for the transport that would b..."
Observations (incoming)
Not downloaded · Council link
OBJECTS - "Environmental Concerns: - Visual Impact: Large-scale solar farms can significantly alter the landsca..."
Observations (incoming)
Not downloaded · Council link
OBJECTS - "Environmental Concerns: Loss of Green Belt Land - The development would erode protected countryside,..."
Observations (incoming)
Not downloaded · Council link
OBJECTS - "Fire risk: Lithium-ion batteries can be a serious fire risk if they malfunction. The more batteries ..."
Observations (incoming)
Not downloaded · Council link
OBJECTS - "Fire risk: Lithium-ion batteries can be a serious fire risk if they malfunction. The more batteries ..."
Observations (incoming)
Not downloaded · Council link
OBJECTS - "Firstly may I welcome you to one of the most beautiful areas of outstanding natural beauty amid roll..."
Observations (incoming)
Not downloaded · Council link
OBJECTS - "Following the devastating LA fire and given that our densely populated town is only a stones throw f..."
Observations (incoming)
Not downloaded · Council link
OBJECTS - "For the past 20yrs my family and I have lived in Old Thirsk on the most eastern side of Thirsk with ..."
Observations (incoming)
Not downloaded · Council link
OBJECTS - "For thirsk ] Dear Sir/Madam, Re: Objection to Hybrid Planning Application ZB24/02454/HYB - Energy S..."
Observations (incoming)
Not downloaded · Council link
OBJECTS - "Formal Objection to Planning Application I strongly oppose this planning application due to its sign..."
Observations (incoming)
Not downloaded · Council link
OBJECTS - "From: Donald Crawford. The Granary, Upsall Lane, Thornbrough, North Kilvington, Thirsk YO72NT Subjec..."
Observations (incoming)
Not downloaded · Council link
OBJECTS - "From: Genevieve Darbar Crawford. The Granary, Upsall Lane, Thornbrough, North Kilvington, Thirsk YO7..."
Observations (incoming)
Not downloaded · Council link
OBJECTS - "From: Name , Address Subject: Planning reference ZB24/02454/HYB. Hybrid Application consisting of f..."
Observations (incoming)
Not downloaded · Council link
OBJECTS - "From: Palkesh Darbar Crawford. The Granary, Upsall Lane, Thornbrough, North Kilvington, Thirsk YO72N..."
Observations (incoming)
Not downloaded · Council link
OBJECTS - "From: Sharon Crawford. The Granary, Upsall Lane, Thornbrough, North Kilvington, Thirsk YO72NT Subjec..."
Observations (incoming)
Not downloaded · Council link
OBJECTS - "Further to my previous objection, I would like to add a couple of notes. In the last three days ther..."
Observations (incoming)
Not downloaded · Council link
OBJECTS - "Gemma Quinn 41 Blenheim Road South, Longlands, Middlesbrough ts4 2gb Subject: Planning reference ZB2..."
Observations (incoming)
Not downloaded · Council link
OBJECTS - "Go ruin someone else's countryside please."
Observations (incoming)
Not downloaded · Council link
OBJECTS - "Hag Lane is a narrow rural lane used by regularly walkers. Increased traffic for recreation and educ..."
Observations (incoming)
Not downloaded · Council link
OBJECTS - "Huge No."
Observations (incoming)
Not downloaded · Council link
OBJECTS - "I am concerned about the impact on Sutton bank and the North York moors national park. Tourism is a ..."
Observations (incoming)
Not downloaded · Council link
OBJECTS - "I am concerned about the location of the BESS with regard to the effects a fire would have on the ne..."
Observations (incoming)
Not downloaded · Council link
OBJECTS - "I am not unilaterally against new ways of generating and storing energy, however I do object to indi..."
Observations (incoming)
Not downloaded · Council link
OBJECTS - "I am objecting as this area is a wildlife habitat and home to many species of birds and animals. Als..."
Observations (incoming)
Not downloaded · Council link
OBJECTS - "I am Objecting due to the location"
Observations (incoming)
Not downloaded · Council link
OBJECTS - "I am objecting for the following reasons, but in a one sentence nutshell it is absolutely 100% the w..."
Observations (incoming)
Not downloaded · Council link
OBJECTS - "I am objecting for the following reasons, it is absolutely 100% the wrong place for an industrial de..."
Observations (incoming)
Not downloaded · Council link
OBJECTS - "I am objecting to this application as I feel that the area it is proposed to be in would be damaging..."
Observations (incoming)
Not downloaded · Council link
OBJECTS - "I am objecting to this plan it is takeing up farm land for food and would be scar on the landscape p..."
Observations (incoming)
Not downloaded · Council link
OBJECTS - "I am speaking on behalf of Mrs E Brown of Nevison House, Hag Lane South Kilvington. " My Grade 2 lis..."
Observations (incoming)
Not downloaded · Council link
OBJECTS - "I am strongly against this proposal to build a massive battery installation down Hag Lane. The requi..."
Observations (incoming)
Not downloaded · Council link
OBJECTS - "I am strongly objecting to this application in support of the local people as I understand and agree..."
Observations (incoming)
Not downloaded · Council link
OBJECTS - "I am strongly opposed to the proposed BESS at South Kilvington for a number of reasons; as a local r..."
Observations (incoming)
Not downloaded · Council link
OBJECTS - "I am writing regarding the proposed battery storage facility on Hagg Lane. Ref ZB24/02454/HYB I st..."
Observations (incoming)
Not downloaded · Council link
OBJECTS - "I am writing to express my serious concerns and firm opposition to the proposed Bellmoor Energy Stor..."
Observations (incoming)
Not downloaded · Council link
OBJECTS - "I am writing to express my strong objection to NATPOWER's attempt to proceed with their proposed 1GW..."
Observations (incoming)
Not downloaded · Council link
OBJECTS - "I am writing to formally object to planning application Number ZB24/02454/HY for the development at ..."
Observations (incoming)
Not downloaded · Council link
OBJECTS - "I am writing to formally object to planning application Number ZB24/02454/HY for the development at ..."
Observations (incoming)
Not downloaded · Council link
OBJECTS - "I am writing to formally object to the planning application for the construction of a battery storag..."
Observations (incoming)
Not downloaded · Council link
OBJECTS - "I am writing to formally object to the proposed battery storage facility at South Kilvington. My obj..."
Observations (incoming)
Not downloaded · Council link
OBJECTS - "I am writing to formally object to the proposed battery storage system near Hag Lane. As a long-time..."
Observations (incoming)
Not downloaded · Council link
OBJECTS - "I am writing to formally object to the proposed hybrid planning application, which includes the erec..."
Observations (incoming)
Not downloaded · Council link
OBJECTS - "I am writing to formally object to the proposed planning application (ZB24/02454/HYB) for the constr..."
Observations (incoming)
Not downloaded · Council link
OBJECTS - "I am writing to formally object to the proposed planning application for a Battery Energy Storage Si..."
Observations (incoming)
Not downloaded · Council link
OBJECTS - "I am writing to object in the strongest terms to this planning application. This is in the middle of..."
Observations (incoming)
Not downloaded · Council link
OBJECTS - "I am writing to object to the application for a Battery Energy Storage Scheme on the land off Hag La..."
Observations (incoming)
Not downloaded · Council link
OBJECTS - "I am writing to OBJECT to the BESS proposal at South Kilvington. I live in the village of South Kil..."
Observations (incoming)
Not downloaded · Council link
OBJECTS - "I am writing to object to the proposal to create a BESS facility on this land. This development is t..."
Observations (incoming)
Not downloaded · Council link
OBJECTS - "I am writing to oppose the proposed Battery Energy Storage System (BESS) at Hag Lane, South Kilvingt..."
Observations (incoming)
Not downloaded · Council link
OBJECTS - "I am writing to oppose the proposed Battery Energy Storage System (BESS) at Hag Lane, South Kilvingt..."
Observations (incoming)
Not downloaded · Council link
OBJECTS - "I am writing to strongly object to the proposed application to erect and operate an energy storage s..."
Observations (incoming)
Not downloaded · Council link
OBJECTS - "I am writing to strongly object to the proposed battery storage farm near Hag Lane. As a frequent vi..."
Observations (incoming)
Not downloaded · Council link
OBJECTS - "I am writing to strongly object to the proposed battery storage site at Sutton Bank. Firstly, Sutton..."
Observations (incoming)
Not downloaded · Council link
OBJECTS - "I am writing to strongly oppose the proposed Battery Energy Storage System (BESS) at Hag Lane, South..."
Observations (incoming)
Not downloaded · Council link
OBJECTS - "I appreciate that there may be a need to erect the type of storage facility that has been applied fo..."
Observations (incoming)
Not downloaded · Council link
OBJECTS - "I believe a full Environmental Impact Assessment (EIA) is essential for the proposed battery storage..."
Observations (incoming)
Not downloaded · Council link
OBJECTS - "I can only believe that this site has been selected so that when the inevitable fires and explosions..."
Observations (incoming)
Not downloaded · Council link
OBJECTS - "I cannot believe this is even being considered. The position of this enormous proposed site is far ..."
Observations (incoming)
Not downloaded · Council link
OBJECTS - "I cannot see any positives to the local area from this planning application. Turning an area this si..."
Observations (incoming)
Not downloaded · Council link
OBJECTS - "I completely object to this proposal happening in our lovely countryside! Our view from Sutton bank ..."
Observations (incoming)
Not downloaded · Council link
OBJECTS - "I definitely object to this monstrosity being on our beautiful landscape"
Observations (incoming)
Not downloaded · Council link
OBJECTS - "I do not believe this development will benefit the local community or the countryside and wildlife o..."
Observations (incoming)
Not downloaded · Council link
OBJECTS - "I do not think this proposed battery storage facility is in the right place. It will be viewed from ..."
Observations (incoming)
Not downloaded · Council link
OBJECTS - "I do not understand why existing farmland on the edge of a national park is considered best for this..."
Observations (incoming)
Not downloaded · Council link
OBJECTS - "I don't agree with the idea of a large battery plant next to my home town. This is ridiculous. The n..."
Observations (incoming)
Not downloaded · Council link
OBJECTS - "I don't feel South Kilvington is the right location for a battery storage facility. It would destroy..."
Observations (incoming)
Not downloaded · Council link
OBJECTS - "I fail to understand why a greenfield site so close to a built up area can be considered suitable fo..."
Observations (incoming)
Not downloaded · Council link
OBJECTS - "I feel strongly this is the WRONG location for this industrial development of over 800 lithium batte..."
Observations (incoming)
Not downloaded · Council link
OBJECTS - "I feel this is a massive project and site extending into what is farming, wildlife habitat and close..."
Observations (incoming)
Not downloaded · Council link
OBJECTS - "I feel this will be devastating for the area, bad for the environment, the wildlife and an eye sore ..."
Observations (incoming)
Not downloaded · Council link
OBJECTS - "I find that I must write my objection to the planning application made by NATPOWER for the Battery S..."
Observations (incoming)
Not downloaded · Council link
OBJECTS - "I fully object to the BESS Storage Battery Farm. I am extremely concerned for the safety of all resi..."
Observations (incoming)
Not downloaded · Council link
OBJECTS - "I fully object to this application, it is an eyesore that would be visible from the hills in the sur..."
Observations (incoming)
Not downloaded · Council link
OBJECTS - "I fundamentally oppose this proposed development due to the location of the facility. There are plen..."
Observations (incoming)
Not downloaded · Council link
OBJECTS - "I grew up in the Hag Lane area, and although I currently work in London as a doctor, it remains my f..."
Observations (incoming)
Not downloaded · Council link
OBJECTS - "I have concerns about the high risk of a serious fire and the lack of emergency services in the loca..."
Observations (incoming)
Not downloaded · Council link
OBJECTS - "I have lived in Felixkirk for 30 years and it is a quiet and rural village without any heavy industr..."
Observations (incoming)
Not downloaded · Council link
OBJECTS - "I have many objections and in no particular order the main ones are ...... 1. Huge size will almost ..."
Observations (incoming)
Not downloaded · Council link
OBJECTS - "I have set comments previously stating how much I object to this planning application"
Observations (incoming)
Not downloaded · Council link
OBJECTS - "I live in South Kilvington and like to walk and run with my toddler up hag lane. This site and assoc..."
Observations (incoming)
Not downloaded · Council link
OBJECTS - "I live in South Kilvington with my young family and I think the scale of the development will be det..."
Observations (incoming)
Not downloaded · Council link
OBJECTS - "I live in South Kilvington, I strongly object to this planning proposal. I enjoy walking my dogs an..."
Observations (incoming)
Not downloaded · Council link
OBJECTS - "I live in the east side of Thirsk and have done for the last 21 years. Myself, husband, children and..."
Observations (incoming)
Not downloaded · Council link
OBJECTS - "I live in the USA but my sister lives on Hag Lane so I have been a fairly frequent visitor over the ..."
Observations (incoming)
Not downloaded · Council link
OBJECTS - "I live in Thirsk and can easily walk to the site over the pedestrian bridge and enjoy walking my dog..."
Observations (incoming)
Not downloaded · Council link
OBJECTS - "I live locally and like to walk my dogs in this area, I cannot understand why the battery storage fa..."
Observations (incoming)
Not downloaded · Council link
OBJECTS - "I live not far from the proposed site and have walked this area many times, enjoying the landscape a..."
Observations (incoming)
Not downloaded · Council link
OBJECTS - "I live on Stockton road and object to this. If it gets enough support for a go ahead there is other ..."
Observations (incoming)
Not downloaded · Council link
OBJECTS - "I OBECT to this development on the following grounds. A) It should be on grey field site not Agricul..."
Observations (incoming)
Not downloaded · Council link
OBJECTS - "I object as a concerned local, I strongly object to this proposal. I can only see detrimental effect..."
Observations (incoming)
Not downloaded · Council link
OBJECTS - "I object as this site is far too close to residential areas and adjoins a minor road that I, my fami..."
Observations (incoming)
Not downloaded · Council link
OBJECTS - "I object as this will be one of the largest lithium battery plants in the world. The site is product..."
Observations (incoming)
Not downloaded · Council link
OBJECTS - "I object due to my concerns over fire risk! Risk of releasing toxins. Eye sore and ear sore for the ..."
Observations (incoming)
Not downloaded · Council link
OBJECTS - "I object in the strongest possible terms to this development. There will be no discernible benefit t..."
Observations (incoming)
Not downloaded · Council link
OBJECTS - "I object in the strongest possible terms to this planning application. This proposal affects me beca..."
Observations (incoming)
Not downloaded · Council link
OBJECTS - "I object in the strongest possible terms to this proposed development. General reasons for objection..."
Observations (incoming)
Not downloaded · Council link
OBJECTS - "I object in the strongest terms to planning application ref ZB24/02454/HYB. This is not green energy..."
Observations (incoming)
Not downloaded · Council link
OBJECTS - "I OBJECT IN THE STRONGEST WAY POSSIBLE. THIS PROJECT IS NOT SUITABLE FOR A RURAL TOWN WITH SUCH A RI..."
Observations (incoming)
Not downloaded · Council link
OBJECTS - "I object most strongly to this application and demand that the council look at alternative Brown fie..."
Observations (incoming)
Not downloaded · Council link
OBJECTS - "I object on the following grounds. The fire risk is very high and fire safety standards have not bee..."
Observations (incoming)
Not downloaded · Council link
OBJECTS - "I object on the following grounds: This excellent quality land being taken out of production for foo..."
Observations (incoming)
Not downloaded · Council link
OBJECTS - "I object strongly to having a Battery storage system built on our open countryside. A brownfield sit..."
Observations (incoming)
Not downloaded · Council link
OBJECTS - "I object strongly to this application it has no advantage to the area and surrounding countryside. T..."
Observations (incoming)
Not downloaded · Council link
OBJECTS - "I object to any development in an area which is generally accepted as being of exceptional natural b..."
Observations (incoming)
Not downloaded · Council link
OBJECTS - "I object to NatPower's application for a battery storage site off Hag Lane, South Kilvington. This a..."
Observations (incoming)
Not downloaded · Council link
OBJECTS - "I object to NatPower's application for a battery storage site off Hag Lane, South Kilvington. This a..."
Observations (incoming)
Not downloaded · Council link
OBJECTS - "I object to planning application consisting of, full planning application for the erection and opera..."
Observations (incoming)
Not downloaded · Council link
OBJECTS - "I object to planning being granted for the battery storage / electrical substation plant at this sit..."
Observations (incoming)
Not downloaded · Council link
OBJECTS - "I object to the application and consider it a desecration of the Yorkshire countryside."
Observations (incoming)
Not downloaded · Council link
OBJECTS - "I object to the application of the erection and operation of an energy storage system at the propose..."
Observations (incoming)
Not downloaded · Council link
OBJECTS - "I object to the battery storage plant proposal for the following reasons. 1. The development is prop..."
Observations (incoming)
Not downloaded · Council link
OBJECTS - "I object to the building of this facility in this location. The location in farmland is inappropriat..."
Observations (incoming)
Not downloaded · Council link
OBJECTS - "I object to the grant of planning permission on the following grounds (in no particular order) : 1. ..."
Observations (incoming)
Not downloaded · Council link
OBJECTS - "I object to the planning application ZB24/02454/HYB for the development of a Battery Energy Storage ..."
Observations (incoming)
Not downloaded · Council link
OBJECTS - "I OBJECT to the planning application. My objections are particularly around : Safety and Risk Mitiga..."
Observations (incoming)
Not downloaded · Council link
OBJECTS - "I object to the planning of a battery storage which will ruin the beautiful landscape and countrysid..."
Observations (incoming)
Not downloaded · Council link
OBJECTS - "I object to the proposed battery storage site near Thirsk on the grounds of environmental impact, sa..."
Observations (incoming)
Not downloaded · Council link
OBJECTS - "I object to the proposed Bellmoor battery storage site. Firstly, I am very worried about the safety ..."
Observations (incoming)
Not downloaded · Council link
OBJECTS - "I object to the proposed Bellmoor BESS facility. 1. NatPower continues to use a 1GW designation for ..."
Observations (incoming)
Not downloaded · Council link
OBJECTS - "I object to the proposed development for the following reasons: 1. The nature and extent of what is ..."
Observations (incoming)
Not downloaded · Council link
OBJECTS - "I object to the proposed development on the basis that it is inappropriately situated Thirsk is an ..."
Observations (incoming)
Not downloaded · Council link
OBJECTS - "I object to the proposed development, reference number ZB24/02455/HYB due to its non-compliance with..."
Observations (incoming)
Not downloaded · Council link
OBJECTS - "I object to the proposed installation on the grounds that it will have a negative impact on both the..."
Observations (incoming)
Not downloaded · Council link
OBJECTS - "I object to the proposed NatPower battery storage facility at Bellmoor near Thirsk for the following..."
Observations (incoming)
Not downloaded · Council link
OBJECTS - "I object to the proposed storage facility due to concern I have for noise pollution. The sound from ..."
Observations (incoming)
Not downloaded · Council link
OBJECTS - "I object to the South Kilvington Hag Lane Bellmoor BESS near Thirsk, a proposed 1GW, the largest lit..."
Observations (incoming)
Not downloaded · Council link
OBJECTS - "I object to this application as follows:- This proposed site is in the countryside and clearly an in..."
Observations (incoming)
Not downloaded · Council link
OBJECTS - "I object to this application because although I recognise there may be a need for Energy Storage sys..."
Observations (incoming)
Not downloaded · Council link
OBJECTS - "I object to this application due to loss of and effect on the landscape in an area renowned for its ..."
Observations (incoming)
Not downloaded · Council link
OBJECTS - "I object to this application for various reasons: 1.safety and fire risk to locals 2.spoiling lovely..."
Observations (incoming)
Not downloaded · Council link
OBJECTS - "I object to this application mainly due to the unacceptable harm to the National Park and its settin..."
Observations (incoming)
Not downloaded · Council link
OBJECTS - "I object to this application on grounds that it is an unjustified inappropriate use of the countrysi..."
Observations (incoming)
Not downloaded · Council link
OBJECTS - "I object to this application. The site is not appropriate for an energy storage system and substatio..."
Observations (incoming)
Not downloaded · Council link
OBJECTS - "I Object to this application. This proposed industrial site is completely against the local Plan in ..."
Observations (incoming)
Not downloaded · Council link
OBJECTS - "I object to this been built in this location, because when there is a fire, which will happen,all th..."
Observations (incoming)
Not downloaded · Council link
OBJECTS - "I object to this development for the following reasons: 1. Location The size of this development, on..."
Observations (incoming)
Not downloaded · Council link
OBJECTS - "I object to this development going ahead on this agricultural land because it will be a loss of a va..."
Observations (incoming)
Not downloaded · Council link
OBJECTS - "I object to this planning application as I live in the area and I feel horrified and very upset that..."
Observations (incoming)
Not downloaded · Council link
OBJECTS - "I OBJECT to this planning application as it would severely impact land that is used for agriculture,..."
Observations (incoming)
Not downloaded · Council link
OBJECTS - "I object to this planning application as the development will contravene planning legislation. This ..."
Observations (incoming)
Not downloaded · Council link
OBJECTS - "I object to this planning application in the strongest possible terms and sincerely urge the NYC Pla..."
Observations (incoming)
Not downloaded · Council link
OBJECTS - "I object to this planning application on the grounds that the proposed development will be an unsigh..."
Observations (incoming)
Not downloaded · Council link
OBJECTS - "I object to this planning application. This area of land should not be used for a huge industrial de..."
Observations (incoming)
Not downloaded · Council link
OBJECTS - "I OBJECT to this planning application. This proposal affects me because: - I've lived in the area fo..."
Observations (incoming)
Not downloaded · Council link
OBJECTS - "I object to this planning on the basis that: The proposed site sits in an area which attracts visito..."
Observations (incoming)
Not downloaded · Council link
OBJECTS - "I object to this proposal as it shouldn't be considered on green belt land and so close to residenti..."
Observations (incoming)
Not downloaded · Council link
OBJECTS - "I object to this proposal as the lovely views of the countryside from Sutton bank will be ruined for..."
Observations (incoming)
Not downloaded · Council link
OBJECTS - "I object to this proposal. The land is agricultural and should be kept so. The overall impact of thi..."
Observations (incoming)
Not downloaded · Council link
OBJECTS - "I object to this proposed development due to its negative impact on our beautiful landscape. Complet..."
Observations (incoming)
Not downloaded · Council link
OBJECTS - "I object wholeheartedly to this application Lithium-ion batteries are a serious fire risk when they ..."
Observations (incoming)
Not downloaded · Council link
OBJECTS - "I object!"
Observations (incoming)
Not downloaded · Council link
OBJECTS - "I object"
Observations (incoming)
Not downloaded · Council link
OBJECTS - "I passionately object to the further destruction of the British countryside. Once green, agricultura..."
Observations (incoming)
Not downloaded · Council link
OBJECTS - "I regularly visit Thirsk and Felixkirk for walks and to visit family. The site proposed for this is ..."
Observations (incoming)
Not downloaded · Council link
OBJECTS - "I strongly and whole heartedly object to the planning proposed that will destroy everything so many ..."
Observations (incoming)
Not downloaded · Council link
OBJECTS - "I strongly object the location proposed for this development; GREEN FIELD LAND It is understood from..."
Observations (incoming)
Not downloaded · Council link
OBJECTS - "I strongly object to Application Number ZB24/02454/HYB Battery Energy Storage at Hag Lane, South Kil..."
Observations (incoming)
Not downloaded · Council link
OBJECTS - "I strongly object to beautiful open farmland to be used for a battery storage facility or indeed for..."
Observations (incoming)
Not downloaded · Council link
OBJECTS - "I strongly object to NatPower's application to build a BESS on the farm land on the outskirts of Sou..."
Observations (incoming)
Not downloaded · Council link
OBJECTS - "I strongly object to planning application ZB24/02454/HYB. Hag Lane is used frequently on a daily bas..."
Observations (incoming)
Not downloaded · Council link
OBJECTS - "I strongly object to the application as I believe it is the wrong area for such development. It will..."
Observations (incoming)
Not downloaded · Council link
OBJECTS - "I strongly object to the application on grounds of its scale and inappropriate location in an open a..."
Observations (incoming)
Not downloaded · Council link
OBJECTS - "I strongly object to the application Whilst we all want to help save our planet this is not the plac..."
Observations (incoming)
Not downloaded · Council link
OBJECTS - "I strongly object to the Bellmoor Bess Battery storage. When a fire breaks out at the battery storag..."
Observations (incoming)
Not downloaded · Council link
OBJECTS - "I strongly object to the Bellmoor storage sit , the risk of fire is a very strong possibility and th..."
Observations (incoming)
Not downloaded · Council link
OBJECTS - "I strongly object to the Construction of the BESS site. This project would have a massive impact on ..."
Observations (incoming)
Not downloaded · Council link
OBJECTS - "I strongly object to the planning application as I am of the opinion that it would cause serious har..."
Observations (incoming)
Not downloaded · Council link
OBJECTS - "I strongly object to the Planning Application As the owner of the nearest residential property to th..."
Observations (incoming)
Not downloaded · Council link
OBJECTS - "I strongly object to the proposal The installation of large battery storage units will alter the ru..."
Observations (incoming)
Not downloaded · Council link
OBJECTS - "I strongly object to the proposal to site a battery storage facility near to South Kilvington. This ..."
Observations (incoming)
Not downloaded · Council link
OBJECTS - "I STRONGLY OBJECT to the proposed application. As someone who lives in South Kilvington I am deeply ..."
Observations (incoming)
Not downloaded · Council link
OBJECTS - "I strongly object to the proposed battery storage at South Kilvington. Despite the promises of a nat..."
Observations (incoming)
Not downloaded · Council link
OBJECTS - "I strongly object to the proposed battery storage facility near South Kilvington/Felixkirk Thirsk. I..."
Observations (incoming)
Not downloaded · Council link
OBJECTS - "I strongly object to the proposed battery storage site due to the fact that it will ruin the natural..."
Observations (incoming)
Not downloaded · Council link
OBJECTS - "I strongly object to the proposed battery storage system near Thirsk, North Yorkshire, for the follo..."
Observations (incoming)
Not downloaded · Council link
OBJECTS - "I strongly object to the proposed BESS industrial development on farm land near South Kilvington. Ag..."
Observations (incoming)
Not downloaded · Council link
OBJECTS - "I strongly object to the proposed energy storage site. This is a beautiful tourist area, and the pla..."
Observations (incoming)
Not downloaded · Council link
OBJECTS - "I STRONGLY OBJECT to the proposed planning application and believe that it would seriously harm the ..."
Observations (incoming)
Not downloaded · Council link
OBJECTS - "I STRONGLY OBJECT to the proposed planning application and I firmly believe that it would cause seri..."
Observations (incoming)
Not downloaded · Council link
OBJECTS - "I strongly object to the siting of this industrial unit on agricultural land. As a resident of an ad..."
Observations (incoming)
Not downloaded · Council link
OBJECTS - "I strongly object to these plans. Firstly this is farmed land producing food for our country, food t..."
Observations (incoming)
Not downloaded · Council link
OBJECTS - "I strongly object to this application as I am a new resident to Thirsk. Living in Thirsk has it's ru..."
Observations (incoming)
Not downloaded · Council link
OBJECTS - "I strongly object to this application as I would hate to see a green field site (one of the finest v..."
Observations (incoming)
Not downloaded · Council link
OBJECTS - "I strongly object to this application the development would alter the character and appearance of th..."
Observations (incoming)
Not downloaded · Council link
OBJECTS - "I strongly object to this application this is extreme industrialisation of our unique Hambleton land..."
Observations (incoming)
Not downloaded · Council link
OBJECTS - "I strongly object to this application. Food security is a priority and this installation will remove..."
Observations (incoming)
Not downloaded · Council link
OBJECTS - "I strongly object to this Battery Storage plant on a greenfield site so close to our town and housin..."
Observations (incoming)
Not downloaded · Council link
OBJECTS - "I strongly object to this destruction of the countryside under application number ZB24/02454/HYB. T..."
Observations (incoming)
Not downloaded · Council link
OBJECTS - "I strongly object to this development which if granted would be the first step towards the industria..."
Observations (incoming)
Not downloaded · Council link
OBJECTS - "I strongly object to this development. I live in South Kilvington and believe this will bring NOTHI..."
Observations (incoming)
Not downloaded · Council link
OBJECTS - "I strongly object to this facility being built on farmland near Thirsk. It's an absolute disgrace th..."
Observations (incoming)
Not downloaded · Council link
OBJECTS - "I strongly object to this planning application and the over-development of this land. My reasons bei..."
Observations (incoming)
Not downloaded · Council link
OBJECTS - "I strongly object to this planning application and the over-development of this land. My reasons bei..."
Observations (incoming)
Not downloaded · Council link
OBJECTS - "I strongly object to this planning application. I live in Thirsk and have close family in South Kil..."
Observations (incoming)
Not downloaded · Council link
OBJECTS - "I strongly OBJECT to this planning application. I live in Felixkirk and my garden will have direct v..."
Observations (incoming)
Not downloaded · Council link
OBJECTS - "I strongly OBJECT to this planning application. I live in the local village of Felixkirk and my prop..."
Observations (incoming)
Not downloaded · Council link
OBJECTS - "I strongly object to this planning application. The fire risk of a battery plant this size is huge. ..."
Observations (incoming)
Not downloaded · Council link
OBJECTS - "I strongly object to this proposal and some of the main reasons are highlighted below: - This propos..."
Observations (incoming)
Not downloaded · Council link
OBJECTS - "I strongly object to this proposal as it will have a detrimental affect on the local community and w..."
Observations (incoming)
Not downloaded · Council link
OBJECTS - "I strongly object to this proposal for the following reasons (in no particular order): 1. Much of th..."
Observations (incoming)
Not downloaded · Council link
OBJECTS - "I strongly object to this proposal on the following grounds: - Fire risk. There have been a series o..."
Observations (incoming)
Not downloaded · Council link
OBJECTS - "I strongly object to this proposal on the grounds of its Environmental impact, on its construction, ..."
Observations (incoming)
Not downloaded · Council link
OBJECTS - "I strongly object to this proposal The are inaccuracies and omissions in documents For example the d..."
Observations (incoming)
Not downloaded · Council link
OBJECTS - "I strongly object to this proposal!"
Observations (incoming)
Not downloaded · Council link
OBJECTS - "I strongly object to this proposal. I strongly object to this planning application for the following..."
Observations (incoming)
Not downloaded · Council link
OBJECTS - "I strongly object to this proposal. The scale of the proposed energy storage system is vast and it i..."
Observations (incoming)
Not downloaded · Council link
OBJECTS - "I strongly oppose this development and believe it is the wrong location and will be the start of the..."
Observations (incoming)
Not downloaded · Council link
OBJECTS - "I strongly oppose this development. This is not the site for such a vast development. This is inappr..."
Observations (incoming)
Not downloaded · Council link
OBJECTS - "I think the location is ill chosen and this should be on a brownfield site, with less impact on the ..."
Observations (incoming)
Not downloaded · Council link
OBJECTS - "I think this site is totally unsuitable as it is too close to Thirsk and is a fire risk without the ..."
Observations (incoming)
Not downloaded · Council link
OBJECTS - "I totally and wholeheartedly object to Planning Permission being given for this ill-conceived scheme..."
Observations (incoming)
Not downloaded · Council link
OBJECTS - "I very strongly OBJECT What sort of professional company submits further details of their planning a..."
Observations (incoming)
Not downloaded · Council link
OBJECTS - "I wholeheartedly object to this proposal. I am 100% in support of green energy but battery storage i..."
Observations (incoming)
Not downloaded · Council link
OBJECTS - "I wholly support the need for the UK to transition to net zero carbon emissions, but I believe that ..."
Observations (incoming)
Not downloaded · Council link
OBJECTS - "I wish to express my strong objection to the proposal of constructing the largest UK battery storage..."
Observations (incoming)
Not downloaded · Council link
OBJECTS - "I wish to object to letting to this planning application as it is in the wrong site. It is a picture..."
Observations (incoming)
Not downloaded · Council link
OBJECTS - "I wish to object to the installation of a BESS facility on Hag Lane Thirsk and my reasons are as fol..."
Observations (incoming)
Not downloaded · Council link
OBJECTS - "I wish to object to the proposal on the following grounds. It will permanently sterilise acreages of..."
Observations (incoming)
Not downloaded · Council link
OBJECTS - "I wish to object to the proposed development. Apart from the proximity to electrical infrastructure ..."
Observations (incoming)
Not downloaded · Council link
OBJECTS - "I wish to object to this planning application on the following grounds. The size of the development ..."
Observations (incoming)
Not downloaded · Council link
OBJECTS - "I wish to raise an OBJECTION to the above application to proceed with the proposed BESS site develop..."
Observations (incoming)
Not downloaded · Council link
OBJECTS - "I wish to register my objections to the planning application for the Bellmoor Energy Storage System ..."
Observations (incoming)
Not downloaded · Council link
OBJECTS - "I wish to strongly object to the above proposed development. This application covering 173 acres (10..."
Observations (incoming)
Not downloaded · Council link
OBJECTS - "I wish to strongly OBJECT to the battery storage site as proposed in the above mentioned planning ap..."
Observations (incoming)
Not downloaded · Council link
OBJECTS - "I wish to strongly OBJECT to the Nat Power battery storage site as proposed in the above-mentioned p..."
Observations (incoming)
Not downloaded · Council link
OBJECTS - "I worry about the impact on the environment with the batteries. The impact if there is a fire on the..."
Observations (incoming)
Not downloaded · Council link
OBJECTS - "I would like to object on the this planning application. It is not good use of productive agricultur..."
Observations (incoming)
Not downloaded · Council link
OBJECTS - "I would like to Object to the battery storage that is proposed being built in East Thirsk Reference ..."
Observations (incoming)
Not downloaded · Council link
OBJECTS - "I would like to object to the location of a battery farm of high quality arable farmland. Can such a..."
Observations (incoming)
Not downloaded · Council link
OBJECTS - "I would like to object to the plan, based on enviromental issues on a green field site, overlooked b..."
Observations (incoming)
Not downloaded · Council link
OBJECTS - "I would like to object to this planning application. The site is located in beautiful rural country..."
Observations (incoming)
Not downloaded · Council link
OBJECTS - "I would like to register my objection to the proposed Battery Energy Storage System in the Thirsk ar..."
Observations (incoming)
Not downloaded · Council link
OBJECTS - "I would like to register my strong objection to the application for the erection and operation of an..."
Observations (incoming)
Not downloaded · Council link
OBJECTS - "I would like to strongly object to this planning application as it will greatly degrade the natural ..."
Observations (incoming)
Not downloaded · Council link
OBJECTS - "I would like to strongly object to this planning application. As a direct neighbour at The Granacy, ..."
Observations (incoming)
Not downloaded · Council link
OBJECTS - "I'd like to register my strong objection to the development of the battery storage facility near Sou..."
Observations (incoming)
Not downloaded · Council link
OBJECTS - "I'm writing to object about the plans for a battery storage plant as outlined. Firstly the plans are..."
Observations (incoming)
Not downloaded · Council link
OBJECTS - "If this development is allowed to proceed, it will have a catastrophic effect on local wildlife, flo..."
Observations (incoming)
Not downloaded · Council link
OBJECTS - "If this was one of just a few, I would not object. But with current battery technology there would b..."
Observations (incoming)
Not downloaded · Council link
OBJECTS - "If we are to move to net zero carbon, developments such as this are essential. If the technology is ..."
Observations (incoming)
Not downloaded · Council link
OBJECTS - "In addition to my objections below the site chosen is on productive farmland and close to a resident..."
Observations (incoming)
Not downloaded · Council link
OBJECTS - "Inappropriate usage of this site which has the potential to irreversibly spoil the appearance of an ..."
Observations (incoming)
Not downloaded · Council link
OBJECTS - "It amazes me why a green field site would be considered for this development. With a wealth of histo..."
Observations (incoming)
Not downloaded · Council link
OBJECTS - "It is essential that the planning officer making recommendation on this planning application recogni..."
Observations (incoming)
Not downloaded · Council link
OBJECTS - "It is my understanding that this current application is an amendment to the initial planning applica..."
Observations (incoming)
Not downloaded · Council link
OBJECTS - "It is not appropriate for this very industrial project to be sited in such a rural area."
Observations (incoming)
Not downloaded · Council link
OBJECTS - "It will be a huge shame to lose such beautiful greenbelt land for a facility that could be built on ..."
Observations (incoming)
Not downloaded · Council link
OBJECTS - "It will ruin beautiful rural land, wildlife habitats and much needed agricultural land. In years to ..."
Observations (incoming)
Not downloaded · Council link
OBJECTS - "It's an absolute disgrace that this has got this far. Why are we building such a place on valuable a..."
Observations (incoming)
Not downloaded · Council link
OBJECTS - "It's greenbelt land and I believe it will be very damaging to the surrounding wildlife, groundwater ..."
Observations (incoming)
Not downloaded · Council link
OBJECTS - "its disgusting that the area should be spoilt in this way"
Observations (incoming)
Not downloaded · Council link
OBJECTS - "Iv been a visitor to Thirsk all my life and four years ago I finally managed to move here. I moved a..."
Observations (incoming)
Not downloaded · Council link
OBJECTS - "Lithium batteries are a fire risk if they malfunction, The more batteries the greater the risk to th..."
Observations (incoming)
Not downloaded · Council link
OBJECTS - "Lithium Iron batteries can constitute a significant fire hazard. In the event of overcharging, under..."
Observations (incoming)
Not downloaded · Council link
OBJECTS - "Lithium-ion batteries are prone to fire and thermal runaway causing untold risk to human life, the l..."
Observations (incoming)
Not downloaded · Council link
OBJECTS - "Lived here all my life, played in these fields when I was little and love walking our dogs around he..."
Observations (incoming)
Not downloaded · Council link
OBJECTS - "My concerns are as follows: 1. This planning application proposes an industrial 'island' site in cur..."
Observations (incoming)
Not downloaded · Council link
OBJECTS - "My concerns are: Negative impact on the local environment - nature Safety adequacy of local water su..."
Observations (incoming)
Not downloaded · Council link
OBJECTS - "My major concern is the potential impact of fire, explosion and the after effects of toxic gas relea..."
Observations (incoming)
Not downloaded · Council link
OBJECTS - "My object is with regard the location of the proposed facility. This is agricultural land right on t..."
Observations (incoming)
Not downloaded · Council link
OBJECTS - "My objection centres around two main issues; 1. Safety and the local environment 2. Impact on area ..."
Observations (incoming)
Not downloaded · Council link
OBJECTS - "My objection is based on two factors. 1) The site is unsuitable for a development of this nature. Bu..."
Observations (incoming)
Not downloaded · Council link
OBJECTS - "My parents live in this area and would be devastating for them if some thing happened. Also we enjoy..."
Observations (incoming)
Not downloaded · Council link
OBJECTS - "My reasons for objection are as follows... 1. This is a speculative application which contravenes th..."
Observations (incoming)
Not downloaded · Council link
OBJECTS - "Ne big reason for Visiting this area of Yorkshire is the views, the amazing scenery. Please don't de..."
Observations (incoming)
Not downloaded · Council link
OBJECTS - "No good at all."
Observations (incoming)
Not downloaded · Council link
OBJECTS - "North Yorkshire Council have yet to develop a local plan therefore currently this application under ..."
Observations (incoming)
Not downloaded · Council link
OBJECTS - "Not appropriate use of agricultural land in tourist dependent area of rural North Yorkshire. There a..."
Observations (incoming)
Not downloaded · Council link
OBJECTS - "Not part of the landscape. Dangerous. Thoughtless planning."
Observations (incoming)
Not downloaded · Council link
OBJECTS - "Not required in the area."
Observations (incoming)
Not downloaded · Council link
OBJECTS - "Not the right place for a battery storage site : Huge vehicles travelling on rural roads not made fo..."
Observations (incoming)
Not downloaded · Council link
OBJECTS - "Object - for all the reasons already given"
Observations (incoming)
Not downloaded · Council link
OBJECTS - "Object due to location and size of development"
Observations (incoming)
Not downloaded · Council link
OBJECTS - "Object due to the impact to the environment, the tourism that Sutton Bank National Park being affect..."
Observations (incoming)
Not downloaded · Council link
OBJECTS - "Object to building the project on utilised farmland in an area of open countryside and if passed the..."
Observations (incoming)
Not downloaded · Council link
OBJECTS - "Object to siting the storage facility on utilised farmland in open countryside and if passed the alt..."
Observations (incoming)
Not downloaded · Council link
OBJECTS - "Object to this proposal! We do not want this planned energy storage plant to ruin our beautiful coun..."
Observations (incoming)
Not downloaded · Council link
OBJECTS - "Object!"
Observations (incoming)
Not downloaded · Council link
OBJECTS - "Object"
Observations (incoming)
Not downloaded · Council link
OBJECTS - "Object"
Observations (incoming)
Not downloaded · Council link
OBJECTS - "Object"
Observations (incoming)
Not downloaded · Council link
OBJECTS - "Object"
Observations (incoming)
Not downloaded · Council link
OBJECTS - "OBJECT"
Observations (incoming)
Not downloaded · Council link
OBJECTS - "Object"
Observations (incoming)
Not downloaded · Council link
OBJECTS - "Object"
Observations (incoming)
Not downloaded · Council link
OBJECTS - "Object"
Observations (incoming)
Not downloaded · Council link
OBJECTS - "Object"
Observations (incoming)
Not downloaded · Council link
OBJECTS - "object"
Observations (incoming)
Not downloaded · Council link
OBJECTS - "Object"
Observations (incoming)
Not downloaded · Council link
OBJECTS - "Object"
Observations (incoming)
Not downloaded · Council link
OBJECTS - "Object"
Observations (incoming)
Not downloaded · Council link
OBJECTS - "Object"
Observations (incoming)
Not downloaded · Council link
OBJECTS - "Object"
Observations (incoming)
Not downloaded · Council link
OBJECTS - "Object"
Observations (incoming)
Not downloaded · Council link
OBJECTS - "object, this is industrialisation of the countryside and short sighted idea when there are other typ..."
Observations (incoming)
Not downloaded · Council link
OBJECTS - "Object."
Observations (incoming)
Not downloaded · Council link
OBJECTS - "Objecting on the grounds of safety, environmental impact and for the integrity of the NY national pa..."
Observations (incoming)
Not downloaded · Council link
OBJECTS - "Objection due to proposed change of use from residential to type of business use in this small villa..."
Observations (incoming)
Not downloaded · Council link
OBJECTS - "Objection to the 'hybrid planning application for ZB24/02454/HYB Objectees: Kelly Teagle and Chris T..."
Observations (incoming)
Not downloaded · Council link
OBJECTS - "Objections Battery Energy Storage Site Fire risks and mitigation Human health risks, physical and me..."
Observations (incoming)
Not downloaded · Council link
OBJECTS - "OBJECTIONS This is an industrial large scale operation totally out of line with the neighbouring are..."
Observations (incoming)
Not downloaded · Council link
OBJECTS - "Of major concern is the potential impact of fire, explosion and the after effects of toxic gas relea..."
Observations (incoming)
Not downloaded · Council link
OBJECTS - "On behalf of the British Horse Society as regards the bridleways. One bridleway is incorrectly shown..."
Observations (incoming)
Not downloaded · Council link
OBJECTS - "ON BEHALF OF THE BRITISH HORSE SOCIETY I am making this comment on behalf of the British Horse Socie..."
Observations (incoming)
Not downloaded · Council link
OBJECTS - "Once again we are forced to justify our right to a safe, natural, rural existence. Thirsk is a small..."
Observations (incoming)
Not downloaded · Council link
OBJECTS - "One of the countries ancient landscape and beauty spot is worth to be preserved. I can't think how a..."
Observations (incoming)
Not downloaded · Council link
OBJECTS - "Personal Impact The proposed plant will significantly affect the quality of life for my family and m..."
Observations (incoming)
Not downloaded · Council link
OBJECTS - "Please do not alow the destruction of rural land for industrial purposes when there are many other b..."
Observations (incoming)
Not downloaded · Council link
OBJECTS - "Please stop trying to modernise this beautiful town. It's already a rare sight and that's why it att..."
Observations (incoming)
Not downloaded · Council link
OBJECTS - "Previous objection logged as 'supports' due to difficulties in submitting my objection."
Observations (incoming)
Not downloaded · Council link
OBJECTS - "Re: Planning Application No: ZB24/02454/HYB Proposed Battery Energy Storage System Hag Lane, South K..."
Observations (incoming)
Not downloaded · Council link
OBJECTS - "Reasons I object 1. The proposed site is in the countryside and would clearly contravene Strategy 7 ..."
Observations (incoming)
Not downloaded · Council link
OBJECTS - "Ref: Planning Application ZB24/02454/HYB I wish to formally express my strong objection to this prop..."
Observations (incoming)
Not downloaded · Council link
OBJECTS - "Reference ZB24/02454/HY To whom it may concern, I am writing today in OBJECTION to the proposed BES..."
Observations (incoming)
Not downloaded · Council link
OBJECTS - "Ruining a scenic and tranquil area."
Observations (incoming)
Not downloaded · Council link
OBJECTS - "Ruining our scenery of Thirsk"
Observations (incoming)
Not downloaded · Council link
OBJECTS - "Ruins the countryside of our home town."
Observations (incoming)
Not downloaded · Council link
OBJECTS - "Seems a totally unsuitable site for such a facility. The infrastructure and safety to local resident..."
Observations (incoming)
Not downloaded · Council link
OBJECTS - "Several reasons I am objecting:- Fire risk: Lithium-ion batteries can be a serious fire risk if they..."
Observations (incoming)
Not downloaded · Council link
OBJECTS - "Several reasons I am objecting:- Fire risk: Lithium-ion batteries can be a serious fire risk if they..."
Observations (incoming)
Not downloaded · Council link
OBJECTS - "Shouldn't even be considered."
Observations (incoming)
Not downloaded · Council link
OBJECTS - "Sirs, May I strongly object to this proposal on the grounds of: Inappropriate development in a very ..."
Observations (incoming)
Not downloaded · Council link
OBJECTS - "So it starts again. This is a disgrace. The proposed area is one of England's best known beauty spot..."
Observations (incoming)
Not downloaded · Council link
OBJECTS - "South Kilvington Thirsk North Yorkshire. Vicky Perkin - Chief Planner North Yorkshire Council County..."
Observations (incoming)
Not downloaded · Council link
OBJECTS - "Strongly object as attractive countryside will be ruined as well as severe environmental consequence..."
Observations (incoming)
Not downloaded · Council link
OBJECTS - "strongly object on all grounds that something on this scale being built in a place of outstanding be..."
Observations (incoming)
Not downloaded · Council link
OBJECTS - "Strongly object to the building of this hideous monstrosity in our beautiful countryside. There are ..."
Observations (incoming)
Not downloaded · Council link
OBJECTS - "Strongly object to this application. There would be an astounding amount of repercussions and furthe..."
Observations (incoming)
Not downloaded · Council link
OBJECTS - "Strongly object!"
Observations (incoming)
Not downloaded · Council link
OBJECTS - "Strongly object. Proposed area is farmland, home to wildlife and of natural beauty. Plenty of brownf..."
Observations (incoming)
Not downloaded · Council link
OBJECTS - "Subject: Objection to Hybrid Planning Application for Energy Storage System Dear Planning Authority/..."
Observations (incoming)
Not downloaded · Council link
OBJECTS - "Subject: Objection to Planning Application Reference ZB24/02454/HY Address of site OS Fields Land A..."
Observations (incoming)
Not downloaded · Council link
OBJECTS - "Subject: Objection to Planning Application Reference ZB24/02454/HY Address of site: OS Fields Land ..."
Observations (incoming)
Not downloaded · Council link
OBJECTS - "Such a large battery storage site would be a massive fire and explosion risk and needs to be sited m..."
Observations (incoming)
Not downloaded · Council link
OBJECTS - "Support green energy but object as this very large scale industrial installation will be visible fro..."
Observations (incoming)
Not downloaded · Council link
OBJECTS - "The area is recognised as providing one of the best views in England, attracting people from outside..."
Observations (incoming)
Not downloaded · Council link
OBJECTS - "The battery storage unit proposed on Hagg lane , between South Kilvington and Felixkirk is totally i..."
Observations (incoming)
Not downloaded · Council link
OBJECTS - "The beautiful countryside is extremely valuable to the all the residents who live, work and commute ..."
Observations (incoming)
Not downloaded · Council link
OBJECTS - "The destruction of farmland is completely unnecessary when there are plenty of alternative and forme..."
Observations (incoming)
Not downloaded · Council link
OBJECTS - "The development will unnecessarily remove critical agricultural land and replace it with a developme..."
Observations (incoming)
Not downloaded · Council link
OBJECTS - "The development would have a serious environmental impact on a large area of what is a green field s..."
Observations (incoming)
Not downloaded · Council link
OBJECTS - "The farmland and wildlife will be hugely affected and damaged. Many homes and businesses will be neg..."
Observations (incoming)
Not downloaded · Council link
OBJECTS - "The Fire risk: Lithium-ion batteries can be a serious fire risk if they malfunction. The more batter..."
Observations (incoming)
Not downloaded · Council link
OBJECTS - "The North Yorkshire Moors and Cleveland away look over onto this area. The area itself is of natural..."
Observations (incoming)
Not downloaded · Council link
OBJECTS - "The positioning of this facility would be a blight on our landscape. We have already been railroaded..."
Observations (incoming)
Not downloaded · Council link
OBJECTS - "The proposal is going to detrimental to the local countryside spoiling the views of James Herriot co..."
Observations (incoming)
Not downloaded · Council link
OBJECTS - "The proposed Battery storage facility has a detrimental impact on the historic market town of Thirsk..."
Observations (incoming)
Not downloaded · Council link
OBJECTS - "The proposed battery storage facility would have a detrimental impact on the historic market town of..."
Observations (incoming)
Not downloaded · Council link
OBJECTS - "the reasons I am objecting:- Fire risk: Lithium-ion batteries can be a serious fire risk if they mal..."
Observations (incoming)
Not downloaded · Council link
OBJECTS - "The reasons why this should never go ahead outweigh the reasons why it should. They are: 1. If this ..."
Observations (incoming)
Not downloaded · Council link
OBJECTS - "the sight would be dangerous, a huge loss of wildlife and significant damage to the ecosystem in an ..."
Observations (incoming)
Not downloaded · Council link
OBJECTS - "The site chosen at Thirsk is in a green belt, on productive farmland and close to a large residentia..."
Observations (incoming)
Not downloaded · Council link
OBJECTS - "The site is of No Benefit to the Local Community - The site does not benefit the local community onl..."
Observations (incoming)
Not downloaded · Council link
OBJECTS - "The site is of No Benefit to the Local Community. It will decrease house prices and we will loose ou..."
Observations (incoming)
Not downloaded · Council link
OBJECTS - "The use of brown sites is far more appropriate for this type of construction not green farming land...."
Observations (incoming)
Not downloaded · Council link
OBJECTS - "The view from the bank would be desimated by this ridiculous plan the concept f electric and renewab..."
Observations (incoming)
Not downloaded · Council link
OBJECTS - "There are many reasons why this development is completely unsuitable for the site proposed. - The si..."
Observations (incoming)
Not downloaded · Council link
OBJECTS - "There are several reasons as to why I like many others, object to battery storage planning applicati..."
Observations (incoming)
Not downloaded · Council link
OBJECTS - "There are several reasons I object to this battery storage planning application, and why the site ad..."
Observations (incoming)
Not downloaded · Council link
OBJECTS - "There are several reasons to object to battery storage planning applications, including: Fire risk:..."
Observations (incoming)
Not downloaded · Council link
OBJECTS - "There are several reasons why I object to battery storage planning applications. This is just a few ..."
Observations (incoming)
Not downloaded · Council link
OBJECTS - "There are several reasons why I object to battery storage planning applications. This is just a few...."
Observations (incoming)
Not downloaded · Council link
OBJECTS - "There have been plenty of documented cases of how battery storage sites of this type are exceedingly..."
Observations (incoming)
Not downloaded · Council link
OBJECTS - "There is no ecological impact assessment (EcIA) for the development addressing any impacts on protec..."
Observations (incoming)
Not downloaded · Council link
OBJECTS - "There is very little known about these facilities and the risk to the environment and health of loca..."
Observations (incoming)
Not downloaded · Council link
OBJECTS - "These huge BESS facilities have no place destroying countryside and posing fire risks with toxic fum..."
Observations (incoming)
Not downloaded · Council link
OBJECTS - "They are running a place of natural beauty and a tourist spot"
Observations (incoming)
Not downloaded · Council link
OBJECTS - "They will ruin the country side and are dangerous. Access will be difficult"
Observations (incoming)
Not downloaded · Council link
OBJECTS - "Thirsk a lovely rural town is totally the wrong place for this kind of development surrounded by won..."
Observations (incoming)
Not downloaded · Council link
OBJECTS - "This application impacts me and my family as we live in Thirsk and the local countryside is really i..."
Observations (incoming)
Not downloaded · Council link
OBJECTS - "This application impacts me because i have two young sons and as a family we like to cycle in the ar..."
Observations (incoming)
Not downloaded · Council link
OBJECTS - "This application should be rejected - it is on the wrong site - it is nearly the size of the town of..."
Observations (incoming)
Not downloaded · Council link
OBJECTS - "This area of beautiful unspoiled rural North Yorkshire is a well known tourist destination made famo..."
Observations (incoming)
Not downloaded · Council link
OBJECTS - "This development is completely against guidance to use brownfield sites for such works. Thirsk is a ..."
Observations (incoming)
Not downloaded · Council link
OBJECTS - "This development is completely in contrast to the beautiful scenery of the area. It impacts resident..."
Observations (incoming)
Not downloaded · Council link
OBJECTS - "This development is totally inappropriate for the area and will create pointless disturbance during ..."
Observations (incoming)
Not downloaded · Council link
OBJECTS - "This development is totally unsuitable for this area. Given the comments made by their representativ..."
Observations (incoming)
Not downloaded · Council link
OBJECTS - "This development will have a lasting impact on the natural environment and the rural businesses of t..."
Observations (incoming)
Not downloaded · Council link
OBJECTS - "THIS DEVELOPMENT WILL OBVIOUSLY HAVE A HUGE DETRIMENTAL EFFECT ON THIS BEAUTIFUL, RURAL AREA, AFFECT..."
Observations (incoming)
Not downloaded · Council link
OBJECTS - "This enormous site will destroy the outstanding views from the top of the moors, one of few unspoilt..."
Observations (incoming)
Not downloaded · Council link
OBJECTS - "This is a beautiful area of countryside, such a shame to ruin it with this kind of development. We s..."
Observations (incoming)
Not downloaded · Council link
OBJECTS - "This is a large area of natural beauty. Not to mention the extra traffic for such a small village. S..."
Observations (incoming)
Not downloaded · Council link
OBJECTS - "This is a ridiculous proposal. Thirsk is a beautiful town and this will spoil tourism and our nature..."
Observations (incoming)
Not downloaded · Council link
OBJECTS - "This is a rural area of outstanding beauty totally unsuitable for this application. There is a huge ..."
Observations (incoming)
Not downloaded · Council link
OBJECTS - "This is a short-term solution to a long term problem, where the risk to life and environment far out..."
Observations (incoming)
Not downloaded · Council link
OBJECTS - "This is a totally inappropriate place for battery storage. It is in a very beautiful area of rural N..."
Observations (incoming)
Not downloaded · Council link
OBJECTS - "This is a totally inappropriate site for this eyesore in an area of outstanding natural beauty. Whil..."
Observations (incoming)
Not downloaded · Council link
OBJECTS - "This is a very significant and inappropriate use for farmland, which should be retained for food pro..."
Observations (incoming)
Not downloaded · Council link
OBJECTS - "This is an absurd idea. Loss of natural beauty. No infrastructure. Fire service not equipped to deal..."
Observations (incoming)
Not downloaded · Council link
OBJECTS - "This is an area of outstanding beauty. Only a fool would choose this as a spot for total destruction..."
Observations (incoming)
Not downloaded · Council link
OBJECTS - "This is an intrusive and degrading industrial development in a rural area. It is too close to local ..."
Observations (incoming)
Not downloaded · Council link
OBJECTS - "This is definitely the wrong place for this. A beautiful countryside will be lost for ever. Please d..."
Observations (incoming)
Not downloaded · Council link
OBJECTS - "This is in the wrong area on land required for food production. The character of the local landscape..."
Observations (incoming)
Not downloaded · Council link
OBJECTS - "This is insane"
Observations (incoming)
Not downloaded · Council link
OBJECTS - "This is not a matter of "not in my back yard" it is a matter of "not in anybody's backyard".Such a h..."
Observations (incoming)
Not downloaded · Council link
OBJECTS - "This is not a suitable area. It is an area of outstanding beauty and the site will destroy this. It ..."
Observations (incoming)
Not downloaded · Council link
OBJECTS - "This is not an appropriate location for this! There are plenty of more suitable sites along the powe..."
Observations (incoming)
Not downloaded · Council link
OBJECTS - "This is not in the best interest of Thirsk , it is not in keeping with the town, which is largely of..."
Observations (incoming)
Not downloaded · Council link
OBJECTS - "This is proposed for an area of prime farmland that already has established woodland, hedgerows and ..."
Observations (incoming)
Not downloaded · Council link
OBJECTS - "This is such a BAD idea for the surroundings of Thirsk. The beautiful scenic views will be destroyed..."
Observations (incoming)
Not downloaded · Council link
OBJECTS - "This is such a beautiful area of the countryside that people travel far and wide to come and visit. ..."
Observations (incoming)
Not downloaded · Council link
OBJECTS - "This is walk and a place I visit often. I have very fond memories here and do not believe a battery ..."
Observations (incoming)
Not downloaded · Council link
OBJECTS - "This project is going to replace an enormous amount of farmland and effect public access to footpath..."
Observations (incoming)
Not downloaded · Council link
OBJECTS - "This project is in the wrong place. It will have a detrimental effect on the landscape and ecosystem..."
Observations (incoming)
Not downloaded · Council link
OBJECTS - "This project is in the wrong place. It will have a detrimental effect on the landscape and ecosystem..."
Observations (incoming)
Not downloaded · Council link
OBJECTS - "This project will impact the residence of surrounding area negatively; between the pollution, traffi..."
Observations (incoming)
Not downloaded · Council link
OBJECTS - "This proposal is very close to the NYMNP . Our villages and local town are largely dependent on tour..."
Observations (incoming)
Not downloaded · Council link
OBJECTS - "This proposal is wrong on every single possible level and anyone coming to the proposed site would s..."
Observations (incoming)
Not downloaded · Council link
OBJECTS - "This proposal will ruin the landscape, views and will not be in keeping with the local area. There a..."
Observations (incoming)
Not downloaded · Council link
OBJECTS - "This proposed development has no place in our community. It will have no benefit to Thirsk or any re..."
Observations (incoming)
Not downloaded · Council link
OBJECTS - "This proposed development will be a blight on this beautiful piece of countryside forever. No amount..."
Observations (incoming)
Not downloaded · Council link
OBJECTS - "This should be done on green land so close to other residential areas when more suitable, less popul..."
Observations (incoming)
Not downloaded · Council link
OBJECTS - "This site will be 25% larger then the moss landing BESS plant in California that has caught fire 4 t..."
Observations (incoming)
Not downloaded · Council link
OBJECTS - "This will be an unsightly and poor use of land in an otherwise agricultural area."
Observations (incoming)
Not downloaded · Council link
OBJECTS - "This will destroy local bridle paths that we use to stay off the roads and away from danger, to me t..."
Observations (incoming)
Not downloaded · Council link
OBJECTS - "This will ruin the beautiful area of Yorkshire that we live in. It will also ruin some wildlife's ha..."
Observations (incoming)
Not downloaded · Council link
OBJECTS - "This will spoil so many things about Thirsk."
Observations (incoming)
Not downloaded · Council link
OBJECTS - "To consider building this in an area which has flooded in the past would be folly. The potential los..."
Observations (incoming)
Not downloaded · Council link
OBJECTS - "To even consider an application for this proposal is an absolute farce. The impact this would have o..."
Observations (incoming)
Not downloaded · Council link
OBJECTS - "Totally wrong location to put such infrastructure!"
Observations (incoming)
Not downloaded · Council link
OBJECTS - "Unsightly"
Observations (incoming)
Not downloaded · Council link
OBJECTS - "Use a brownfield site, not useful farmland in a visually appealing part of Yorkshire."
Observations (incoming)
Not downloaded · Council link
OBJECTS - "Walk here often with my dog and it will be ruined for everyone if this goes ahead."
Observations (incoming)
Not downloaded · Council link
OBJECTS - "Way to ruin an area of outstanding natural beauty."
Observations (incoming)
Not downloaded · Council link
OBJECTS - "We are trying to buy a property in this area"
Observations (incoming)
Not downloaded · Council link
OBJECTS - "We do not require anything of this nature so close to Thirsk."
Observations (incoming)
Not downloaded · Council link
OBJECTS - "We do not want our beautiful views ruined by this!"
Observations (incoming)
Not downloaded · Council link
OBJECTS - "We do not wish to spoil the beautiful land that we have around us, when there are so many other plac..."
Observations (incoming)
Not downloaded · Council link
OBJECTS - "We live in Felixkirk and the views we have from our property are the envy of everyone who comes to v..."
Observations (incoming)
Not downloaded · Council link
OBJECTS - "We object to a substantial industrial installation on good productive agricultural land in a beautif..."
Observations (incoming)
Not downloaded · Council link
OBJECTS - "We Object to this planning application for the following reasons. 1. This Land is productive arable ..."
Observations (incoming)
Not downloaded · Council link
OBJECTS - "We wish to object to the above application on the following grounds... The sheer scale of the propos..."
Observations (incoming)
Not downloaded · Council link
OBJECTS - "What an absolute eyesore this will be seen from the top of Sutton Bank. One of our local most popula..."
Observations (incoming)
Not downloaded · Council link
OBJECTS - "Whatever short-term economic gain is anticipated from this proposal the long term detriment to the e..."
Observations (incoming)
Not downloaded · Council link
OBJECTS - "While I completely support the UK's net zero target, the need for green energy and the requirement f..."
Observations (incoming)
Not downloaded · Council link
OBJECTS - "Whilst I support green energy I object to this proposal on a number of levels. This land is good qua..."
Observations (incoming)
Not downloaded · Council link
OBJECTS - "Whilst I understand the need for battery storage this is simply the wrong place to build it. There a..."
Observations (incoming)
Not downloaded · Council link
OBJECTS - "Whilst there may be a need for such an installation, this is absolutely the wrong location. There ar..."
Observations (incoming)
Not downloaded · Council link
OBJECTS - "Why are we building energy storage systems on farm land, surely there are decommissioned industrial ..."
Observations (incoming)
Not downloaded · Council link
OBJECTS - "Why on earth would anyone think that this was a good idea? We live in a rural area known for its pri..."
Observations (incoming)
Not downloaded · Council link
OBJECTS - "Will destroy the wildlife , the views and overall the natural beauty of Thirsk and its surrounding a..."
Observations (incoming)
Not downloaded · Council link
OBJECTS - "Will ruin landscape and the wonderful treasured view from Sutton Bank ! A massive threat to wildlife..."
Observations (incoming)
Not downloaded · Council link
OBJECTS - "With Reference to application ZB24/02454/HYB I object to this plan for a number of reasons, NOT in a..."
Observations (incoming)
Not downloaded · Council link
OBJECTS - "With Reference to application ZB24/02454/HYB The PCC of St. Wilfrid's Church, South Kilvington, woul..."
Observations (incoming)
Not downloaded · Council link
OBJECTS - "With reference to Application: - ZB24/02454/HYB Bellmoor BESS storage. I object to this planning app..."
Observations (incoming)
Not downloaded · Council link
OBJECTS - "With reference to Application: - ZB24/02454/HYB Bellmoor BESS storage. I object to this planning app..."
Observations (incoming)
Not downloaded · Council link
OBJECTS - "Wrong location for this. Health and safety concerns. Spoiling an area of natural beauty"
Observations (incoming)
Not downloaded · Council link
OBJECTS - "Your having a laugh. Go find a different site closer to an industrial area. Have a look 30 mins away..."
Observations (incoming)
Not downloaded · Council link
OBJECTS -with comment
Observations (incoming)
Not downloaded · Council link
Objects.
Observations (incoming)
Not downloaded · Council link
P241949/ALC Version No: 3
Word Document
Not downloaded · Council link
Parish Bagby
Statutory Consultation Reply
Not downloaded · Council link
PEA report_Bellmoor BESS_Hag Lane_South Kilvington_16_12_2024.pdf
Survey
Not downloaded · Council link
Peter Sargeant
Observations (incoming)
Not downloaded · Council link
Planning Advice Web App
Statutory Consultation Reply
Not downloaded · Council link
R01 24 January 2025 Revision 1
Landscape Proposals
Not downloaded · Council link
RAF MoD amended reply
Statutory Consultation Reply
Not downloaded · Council link
Recommend refusal
Statutory Consultation Reply
Not downloaded · Council link
Representation
Observations (incoming)
Not downloaded · Council link
Representation
Observations (incoming)
Not downloaded · Council link
Representation
Observations (incoming)
Not downloaded · Council link
Representation - FOI response to Mr Sargeant from NY Fire and Rescue Service
Observations (incoming)
Not downloaded · Council link
Representations 13 and 14
Observations (incoming)
Not downloaded · Council link
Screening Decision
Screening Opinion Form
Not downloaded · Council link
South Kilvington Parish Council
Statutory Consultation Reply
Not downloaded · Council link
South Kilvington Parish Supplementary
Statutory Consultation Reply
Not downloaded · Council link
Sowerby parish council
Statutory Consultation Reply
Not downloaded · Council link
Supplementary Comment
Observations (incoming)
Not downloaded · Council link
Supplementary Comment
Statutory Consultation Reply
Not downloaded · Council link
Supplementary objection
Observations (incoming)
Not downloaded · Council link
Supplementary objection
Observations (incoming)
Not downloaded · Council link
SUPPLEMENTARY OBJECTION
Observations (incoming)
Not downloaded · Council link
Supplementary objection
Observations (incoming)
Not downloaded · Council link
Supplementary objection
Observations (incoming)
Not downloaded · Council link
Supplementary objection
Observations (incoming)
Not downloaded · Council link
Supplementary objection
Observations (incoming)
Not downloaded · Council link
Supplementary Observation 16
Observations (incoming)
Not downloaded · Council link
Supplementary observations
Observations (incoming)
Not downloaded · Council link
Supplementary Representation
Observations (incoming)
Not downloaded · Council link
Supplementary Representation
Observations (incoming)
Not downloaded · Council link
Supplementary Representation
Observations (incoming)
Not downloaded · Council link
Supplementary Representation
Observations (incoming)
Not downloaded · Council link
Supplementary representation
Observations (incoming)
Not downloaded · Council link
Supplementary Representation related to NY Fire and Rescue FOI (4 Mar 25)
Observations (incoming)
Not downloaded · Council link
Supports
Observations (incoming)
Not downloaded · Council link
Supports
Observations (incoming)
Not downloaded · Council link
SUPPORTS
Observations (incoming)
Not downloaded · Council link
SUPPORTS - "Despite the vociferous local campaign against the project, I fully support the development. It is cl..."
Observations (incoming)
Not downloaded · Council link
SUPPORTS - "This is an area of beautiful countryside. There must be brown site areas better suited. Creating an ..."
Observations (incoming)
Not downloaded · Council link
SUPPORTS - "This would have a detrimental impact on the village and the surrounding community, wildlife and farm..."
Supercedded Documents
Not downloaded · Council link
Sutton under Whitestonecliffe
Statutory Consultation Reply
Not downloaded · Council link
U1211-HIM-ZZ-RP-AQ-0001_Bellmoor construction air and dust assessment_P02.pdf
Survey
Not downloaded · Council link
V01.0 Report Ref 23232 November 2024
Survey
Not downloaded · Council link
Verification Compliance Report Bellmore_vers1.0.pdf
Word Document
Not downloaded · Council link
With Comment
Statutory Consultation Reply
Not downloaded · Council link
With Comment
Statutory Consultation Reply
Not downloaded · Council link
Yorkshire Water
Statutory Consultation Reply
Not downloaded · Council link