← Hambleton District Council (Legacy)

Status

Awaiting decision Change of use
Received
29 Apr 2025
New homes
1

Full proposal

Change of use of building to dwelling

Documents

2515 Ayton Firs Landscape Appraisal Rev A ISSUE.pdf
Landscape Proposals
Not yet archived · Original link
2515.02 Ayton Firs Context Plan ISSUE.pdf
Site Layout Plan
Not yet archived · Original link
2515.03 Ayton Firs Landscape Plan ISSUE.pdf
Landscape Proposals
Not yet archived · Original link
2515.04 Ayton Firs Location Plan ISSUE.pdf
Location Plan
Not yet archived · Original link
ApplicationFormRedacted.pdf
Planning Application (public viewing)
Not yet archived · Original link
Biodiversity Net Gain Assessment
Biodiversity Net Gain Assessment
Not yet archived · Original link
Biodiversity Net Gain Assessment
Biodiversity Net Gain Assessment
Not yet archived · Original link
Biodiversity Net Gain Assessment
Biodiversity Net Gain Assessment
Not yet archived · Original link
Biodiversity Net Gain Assessment
Biodiversity Net Gain Assessment
Not yet archived · Original link
BNG Analysis certificate.pdf
Word Document
Not yet archived · Original link
BNG Assessment Ecus.pdf
Word Document
Not yet archived · Original link
BNG Assessment.pdf
Word Document
Not yet archived · Original link
Drainage
Drainage
Not yet archived · Original link
Drainage.pdf
Drainage
Not yet archived · Original link
Existing plans and elevations
Existing plans and elevations
Not yet archived · Original link
Existing Plans and Elevations.pdf
Existing plans and elevations
Not yet archived · Original link
Landscape Proposals
Landscape Proposals
Not yet archived · Original link
Location Plan
Location Plan
Not yet archived · Original link
Natural England
Statutory Consultation Reply
Not yet archived · Original link
Nutrient Credit certificate
Word Document
Not yet archived · Original link
NYC Ecology
Statutory Consultation Reply
Not yet archived · Original link
Plan
Plan
Not yet archived · Original link
Planning Statement for Ayton Firs.pdf
Planning Support Statement
Not yet archived · Original link
Planning Support Statement
Planning Support Statement
Not yet archived · Original link
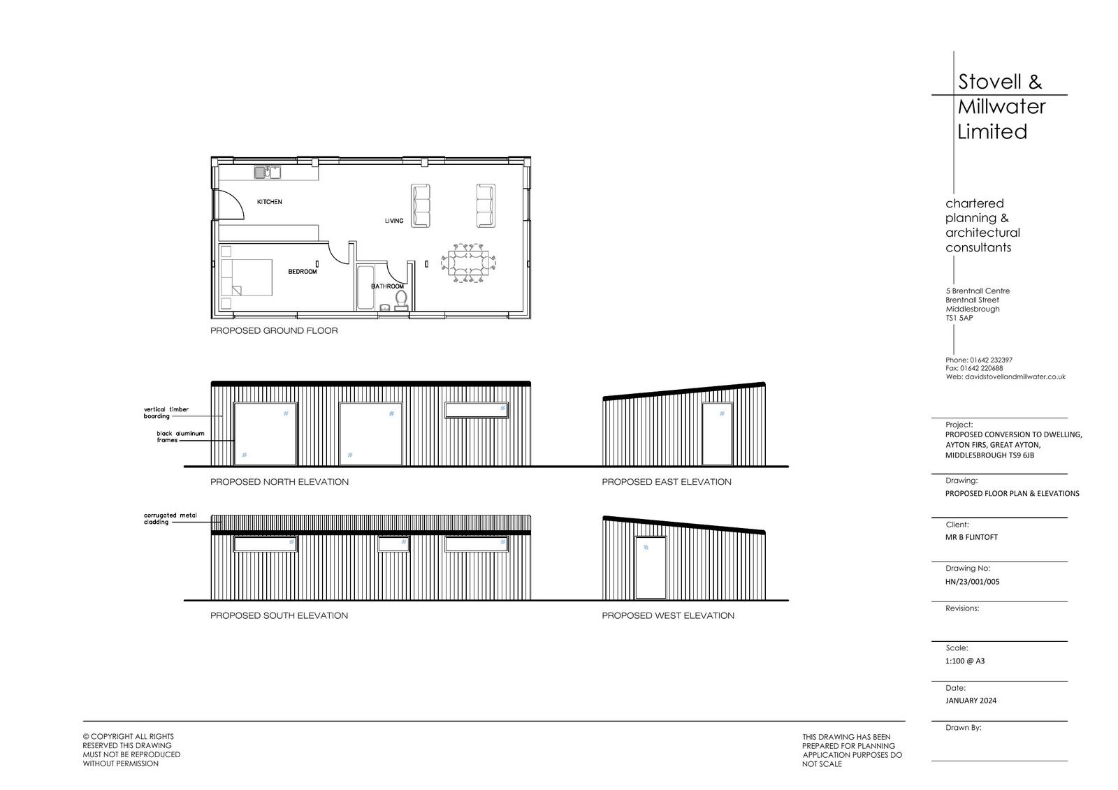
Proposed plans and elevations
Archived · Original link
Proposed plans and elevations
Archived · Original link
Readable PDF - Spreadsheet
Biodiversity Net Gain Assessment
Not yet archived · Original link
Recommends conditions.
Statutory Consultation Reply
Not yet archived · Original link
SNN
Statutory Consultation Reply
Not yet archived · Original link
With Conditions
Statutory Consultation Reply
Not yet archived · Original link
Word Document
Word Document
Not yet archived · Original link
Word Document
Word Document
Not yet archived · Original link
Word Document
Word Document
Not yet archived · Original link

Have your say

Your comment matters. Councils must consider every representation that raises material planning considerations.

Write a comment