← Hambleton District Council (Legacy)

Status

Awaiting decision Change of use
Received
23 Oct 2025
New homes
1

Full proposal

Conversion of former agricultural barn to 1no. dwellinghouse (Use Class C3) and external alterations, and proposed erection of a single-storey extension to the rear and a proposed carport

Documents

2091-COR P-00.01 Location Plan.pdf
Superseded Plan
Not yet archived · Original link
Supercedded Documents
Archived · Original link
2091-COR P-20.01 Ground Floor as Existing.pdf
Existing Floor Plan
Not yet archived · Original link
2091-COR P-20.02 First Floor as Existing.pdf
Existing Floor Plan
Not yet archived · Original link
2091-COR P-20.03 Roof Plan as Existing.pdf
Roof existing
Not yet archived · Original link
2091-COR P-20.04 Ground Floor as Proposed.pdf
Superseded Plan
Not yet archived · Original link
2091-COR P-20.05 First Floor as Proposed.pdf
Superseded Plan
Not yet archived · Original link
2091-COR P-20.06 Roof Plan as Proposed.pdf
Superseded Plan
Not yet archived · Original link
2091-COR P-30.01 Elevations as Existing.pdf
Elevations Existing
Not yet archived · Original link
2091-COR P-30.02 Elevations as Existing.pdf
Elevations Existing
Not yet archived · Original link
2091-COR P-30.03 Elevations as Proposed.pdf
Superseded Plan
Not yet archived · Original link
2091-COR P-30.04 Elevations as Proposed.pdf
Superseded Plan
Not yet archived · Original link
2091-COR P-30.05 Carport Elevations as Proposed.pdf
Elevations Proposed
Not yet archived · Original link
Application will be required
Statutory Consultation Reply
Not yet archived · Original link
ApplicationFormRedacted.pdf
Planning Application (public viewing)
Not yet archived · Original link
ApplicationFormRedacted.pdf
Planning Application (public viewing)
Not yet archived · Original link
BNG metric
Biodiversity Net Gain Assessment
Not yet archived · Original link
Elevations as Proposed
Amended Plans
Not yet archived · Original link
Elevations as Proposed
Amended Plans
Not yet archived · Original link
Environment agency
Statutory Consultation Reply
Not yet archived · Original link
First Floor - Brickwork to be retained
Proposed floor plan
Not yet archived · Original link
First Floor As Proposed
Amended Plans
Not yet archived · Original link
Flood Risk Statement
Flood Assessment
Not yet archived · Original link
Further info required
Statutory Consultation Reply
Not yet archived · Original link
Ground Floor - Brickwork to be retained
Proposed floor plan
Not yet archived · Original link
Ground Floor As Proposed
Superseded Plan
Not yet archived · Original link
Location Plan
Location Plan
Not yet archived · Original link
No objection
Statutory Consultation Reply
Not yet archived · Original link
No objections
Statutory Consultation Reply
Not yet archived · Original link
nutrient budget calculator
Survey
Not yet archived · Original link
Nutrient calculator
Word Document
Not yet archived · Original link
nutrient credit provider
Word Document
Not yet archived · Original link
nutrient neutrality calculator for nutrient credit provider
Survey
Not yet archived · Original link
Planning Support Statement
Planning Support Statement
Not yet archived · Original link
Site Layout Plan
Archived · Original link
Roof Plan As Proposed
Amended Plans
Not yet archived · Original link
Roof Proposed
Roof Proposed
Not yet archived · Original link
Section Plan
Section Plan
Not yet archived · Original link
Section Plan
Section Plan
Not yet archived · Original link
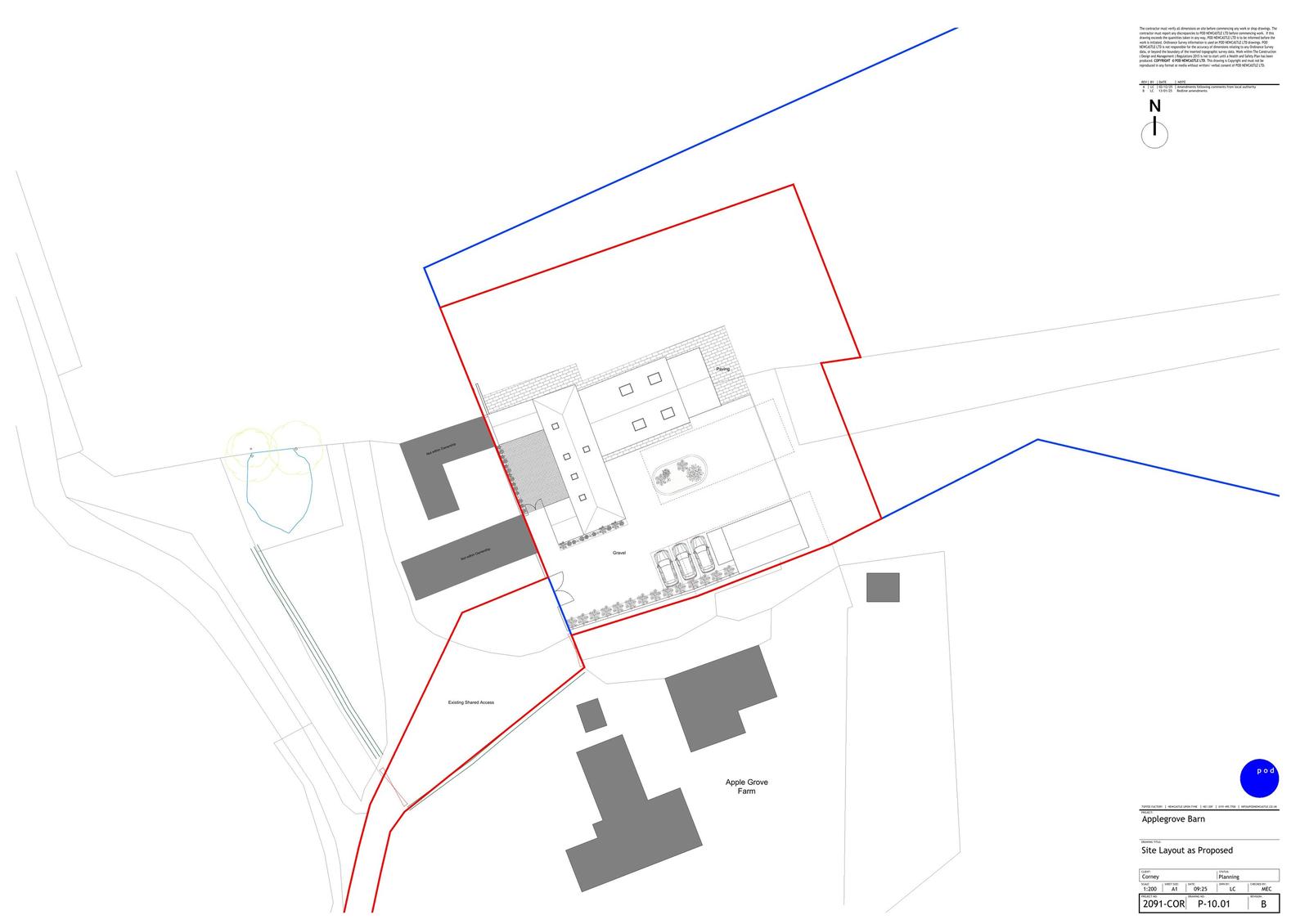
Site Layout as Proposed
Superseded Plan
Not yet archived · Original link
Site Layout Plan
Archived · Original link
Superseded Plan
Superseded Plan
Not yet archived · Original link
Superseded Plan
Superseded Plan
Not yet archived · Original link
Superseded Plan
Superseded Plan
Not yet archived · Original link
Superseded Plan
Superseded Plan
Not yet archived · Original link

Have your say

Your comment matters. Councils must consider every representation that raises material planning considerations.

Write a comment