← Hambleton District Council (Legacy)

Status

Awaiting decision Change of use
Received
22 Jan 2026
New homes
0

Full proposal

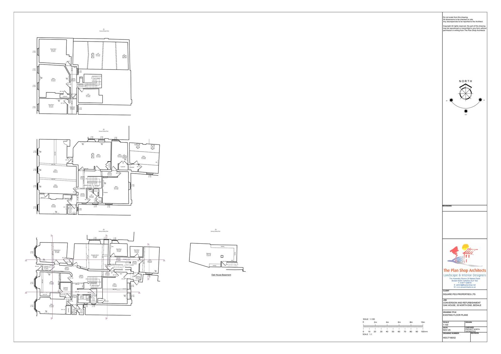
Conversion and change of use from offices to residential apartments

Documents

Existing Block Plan
Archived · Original link
Existing Floor Plan
Archived · Original link
Elevations Existing
Archived · Original link
Section Plan
Archived · Original link
Proposed block plan
Archived · Original link
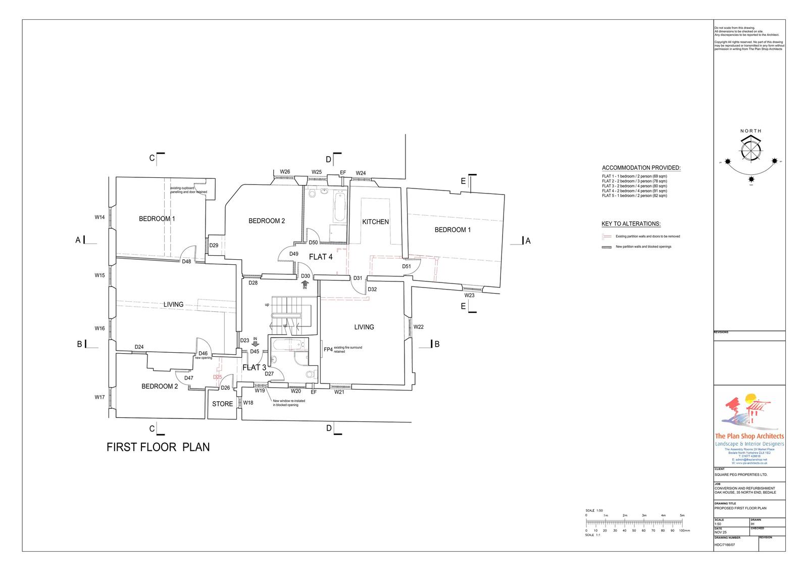
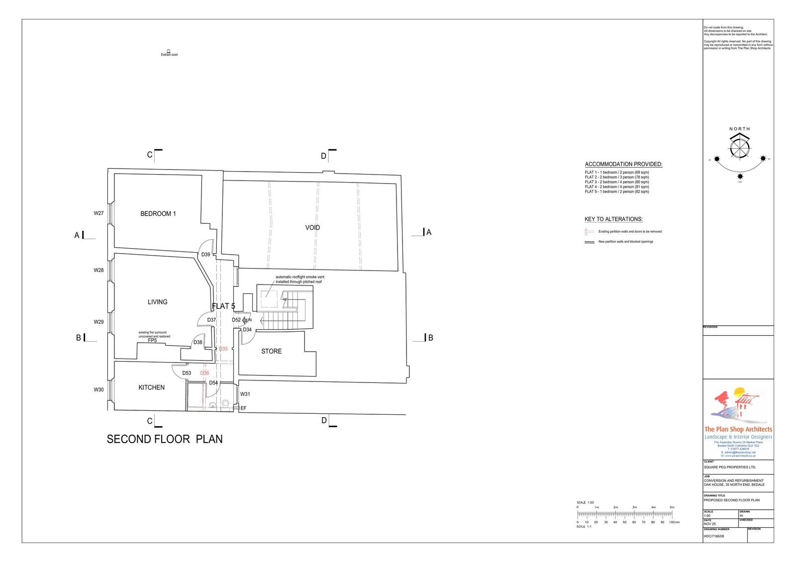
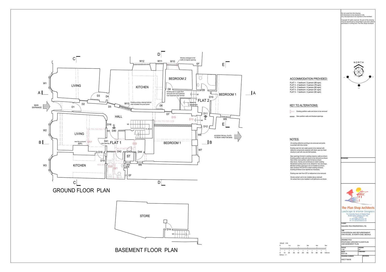
Proposed floor plan
Archived · Original link
Proposed floor plan
Archived · Original link
Elevations Proposed
Archived · Original link
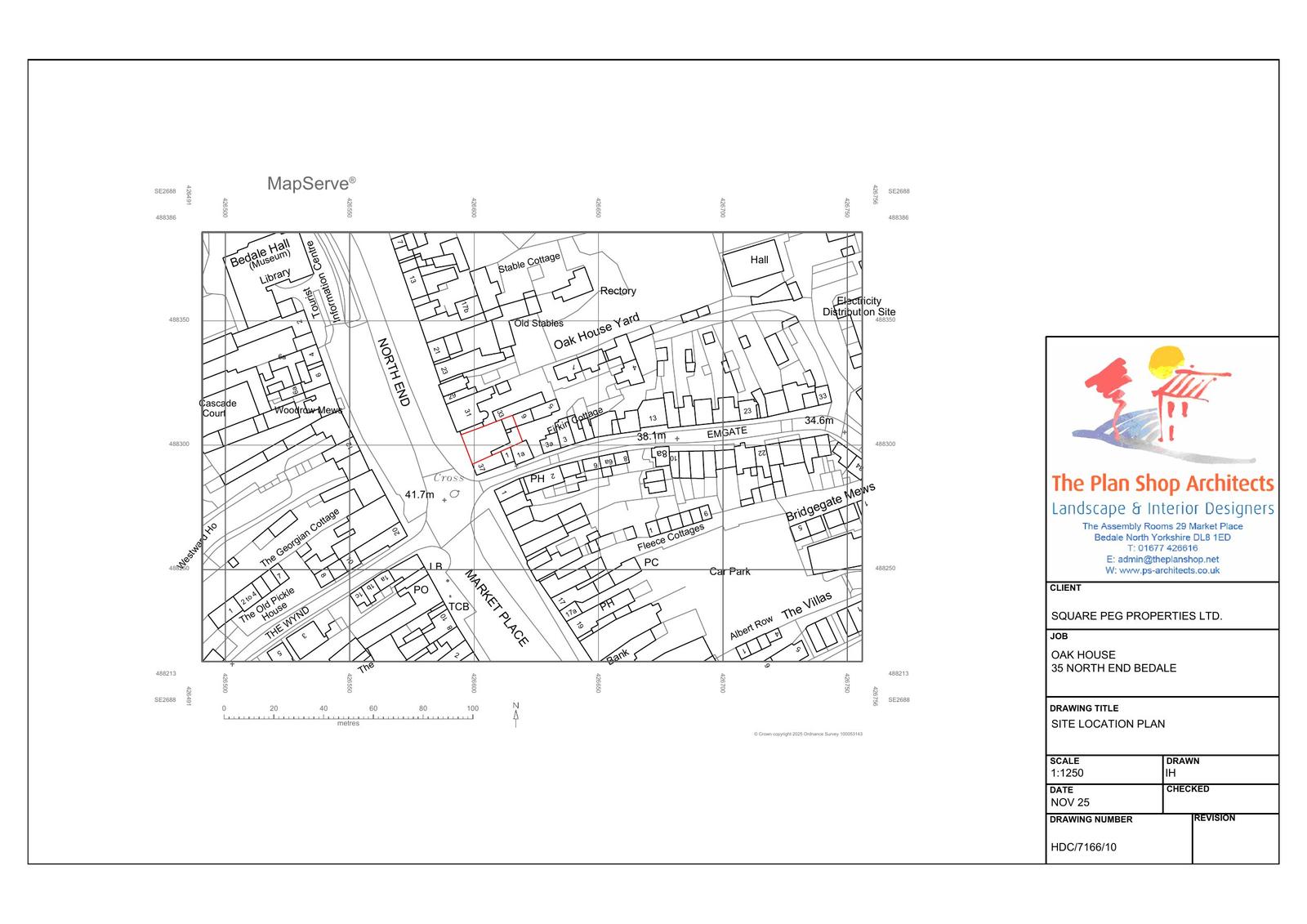
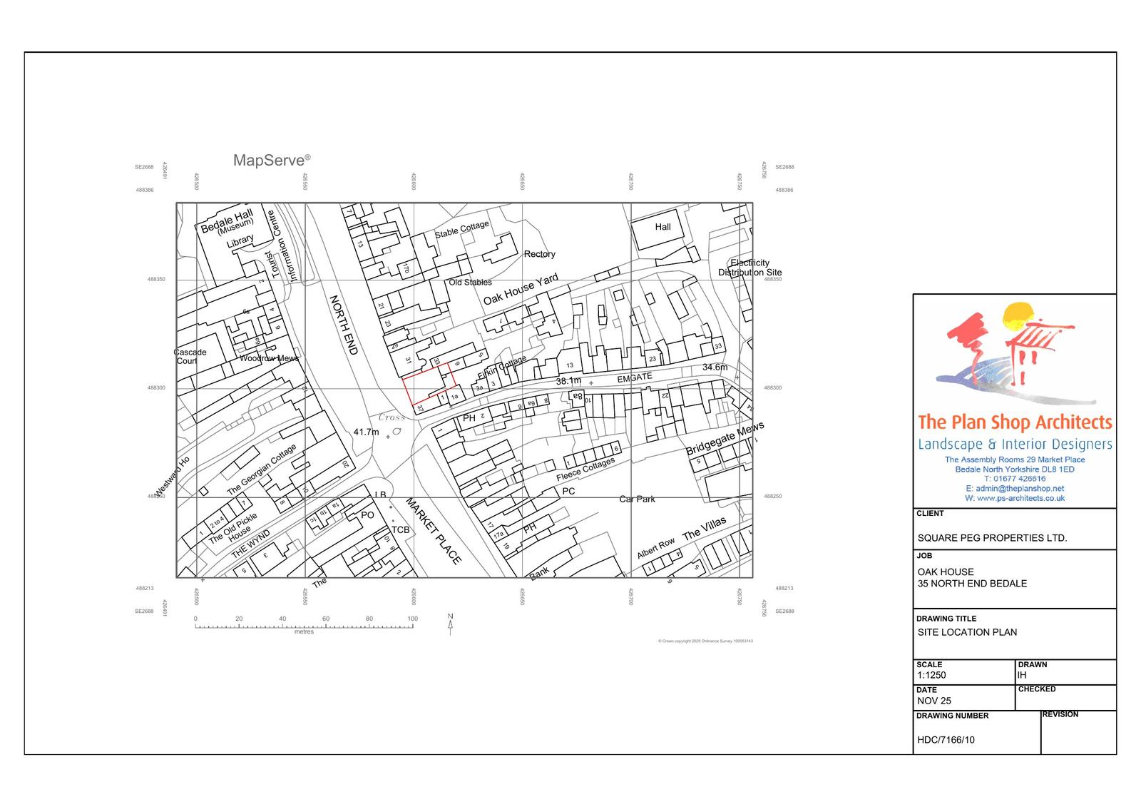
Location Plan
Archived · Original link
Location Plan
Archived · Original link

Have your say

Your comment matters. Councils must consider every representation that raises material planning considerations.

Write a comment