← Hambleton District Council (Legacy)

Status

Awaiting decision New housing
Received
Last month
New homes
1

Full proposal

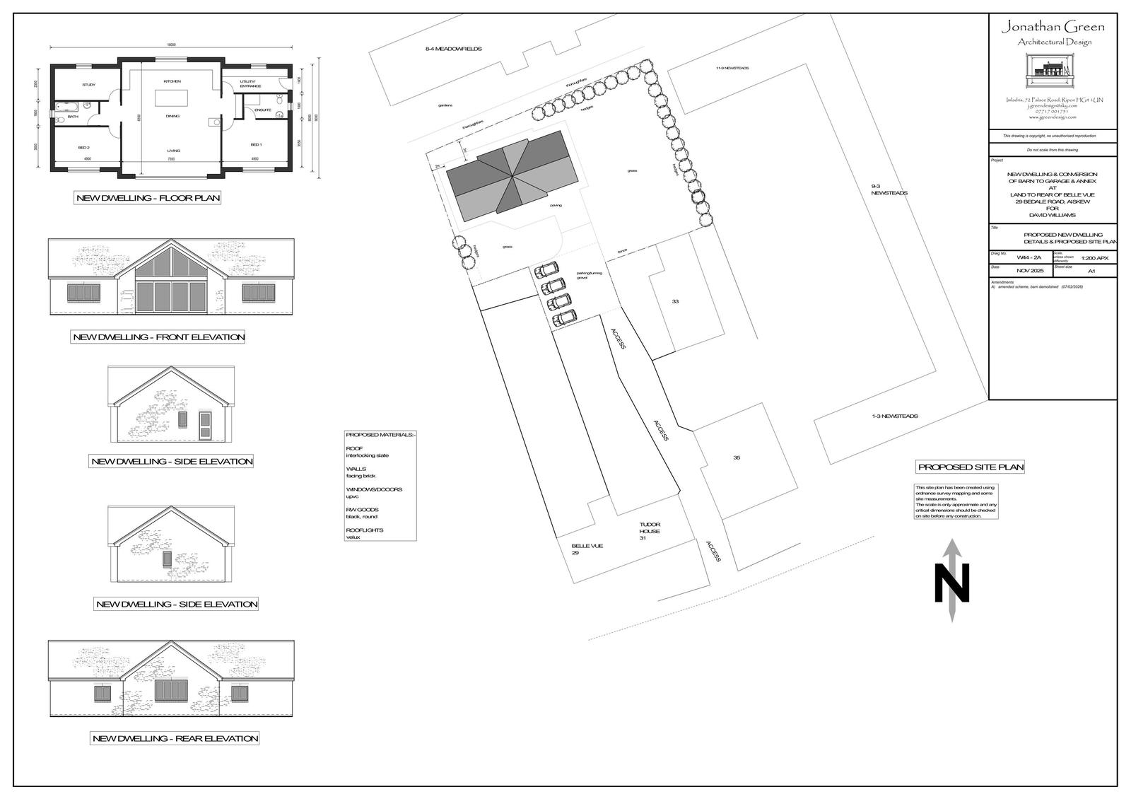
Erection of single storey bungalow on land to the rear of Belle Vue and Demolition of garage and partly collapsed barn.

Documents

Planning Application (public viewing)
Archived · Original link
Word Document
Archived · Original link
Photograph (incoming)
Archived · Original link
Photograph (incoming)
Archived · Original link
Location Plan
Archived · Original link
Planning Support Statement
Archived · Original link
Statutory Consultation Reply
Archived · Original link
Existing Block Plan
Archived · Original link
Proposed plans and elevations
Archived · Original link
Existing plans and elevations
Archived · Original link

Have your say

Your comment matters. Councils must consider every representation that raises material planning considerations.

Write a comment