← Hambleton District Council (Legacy)

Status

Awaiting decision House extension
Received
Last month
New homes
0

Full proposal

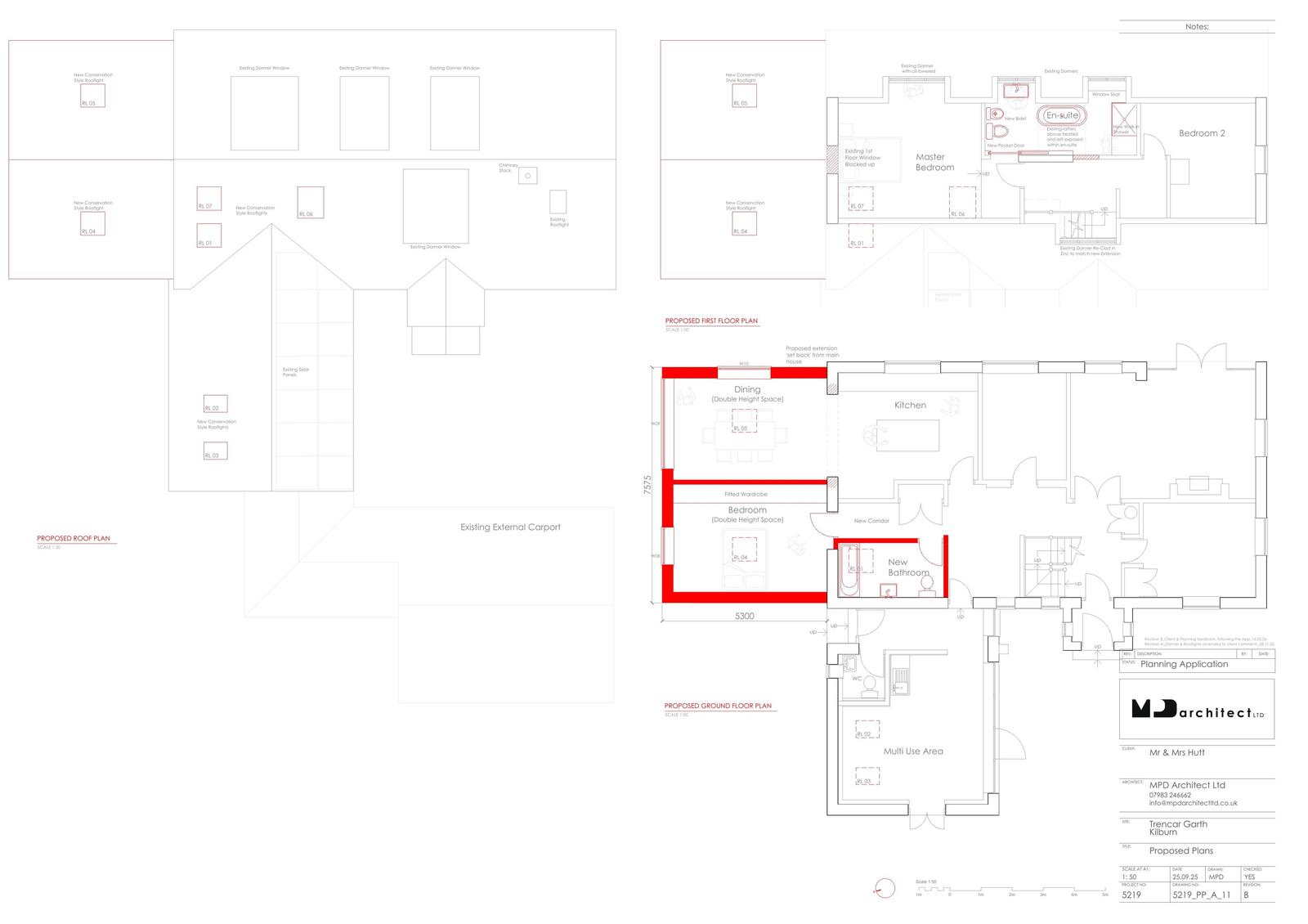
Application for double height gable (side) extension to existing dwelling

Documents

Flood Assessment
Archived · Original link
Design & Access Statement
Archived · Original link
Location Plan
Archived · Original link
Existing Block Plan
Archived · Original link
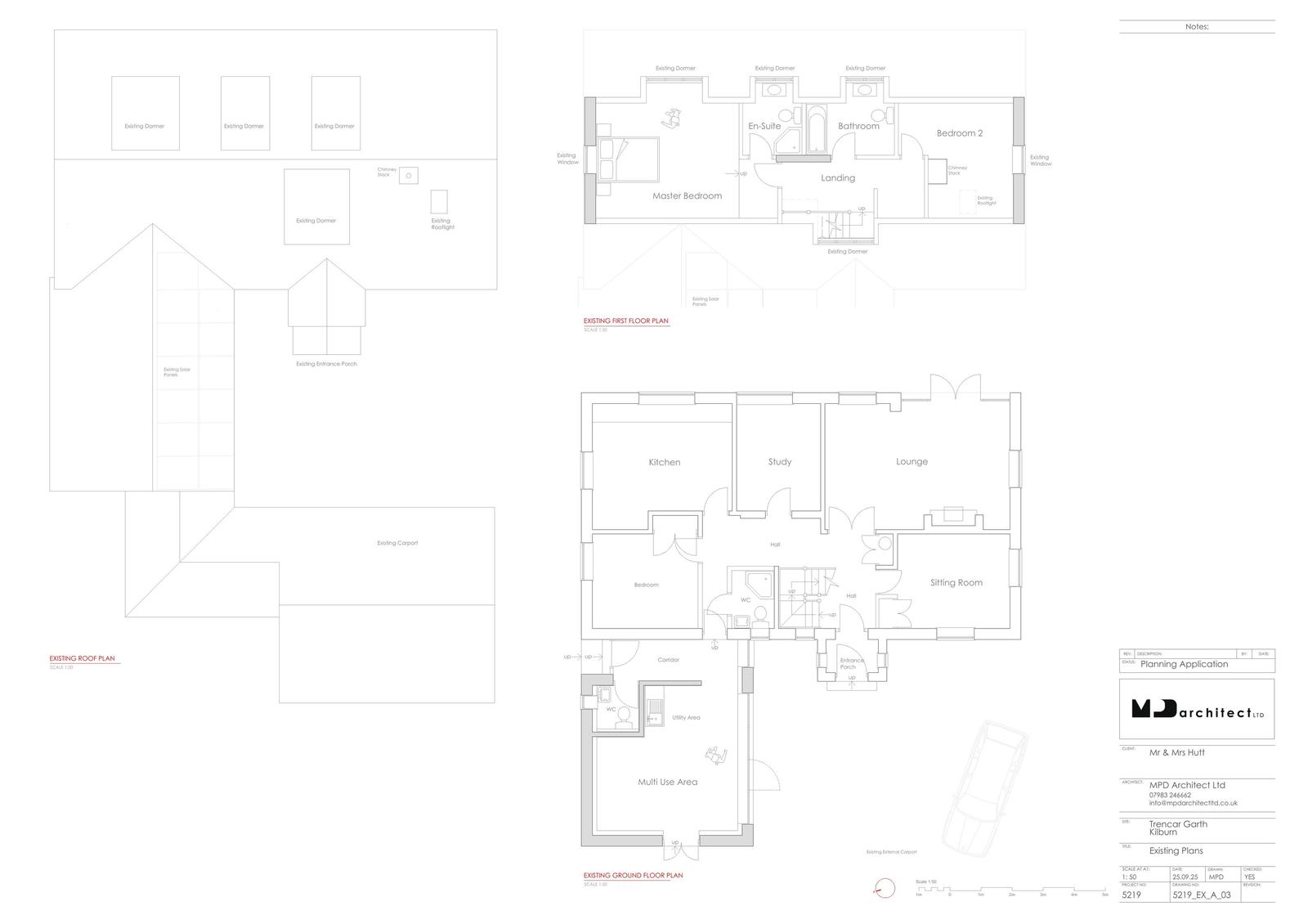
Existing plans and elevations
Archived · Original link
Elevations Existing
Archived · Original link
Proposed block plan
Archived · Original link
Proposed floor plan
Archived · Original link
Elevations Proposed
Archived · Original link
Planning Application (public viewing)
Archived · Original link

Have your say

Your comment matters. Councils must consider every representation that raises material planning considerations.

Write a comment