← Hambleton District Council (Legacy)

Status

Awaiting decision House extension
Received
Last month
New homes
0

Full proposal

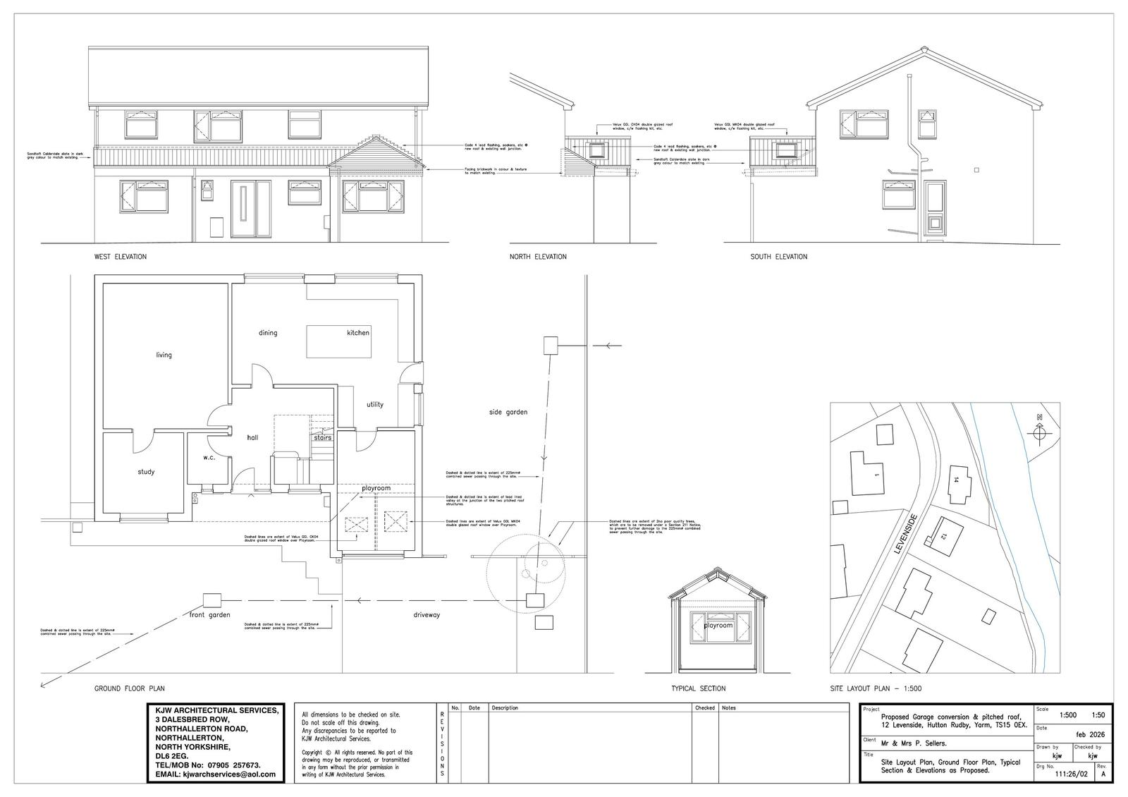
Application to replace existing flat roof with tiled pitched roof and re-roof existing lean-to roof across front of Dwelling. Including notification of the removal of no2 trees.

Documents

23.12.26-P.Sellers-PDA Statement.docx
Design & Access Statement
Not yet archived · Original link
Planning Application (public viewing)
Archived · Original link
Existing plans and elevations
Archived · Original link
Location Plan
Archived · Original link
Proposed plans and elevations
Archived · Original link

Have your say

Your comment matters. Councils must consider every representation that raises material planning considerations.

Write a comment