← Hambleton District Council (Legacy)

Status

Awaiting decision House extension
Received
Last month
New homes
0

Full proposal

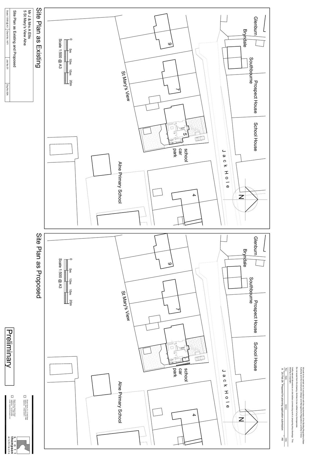
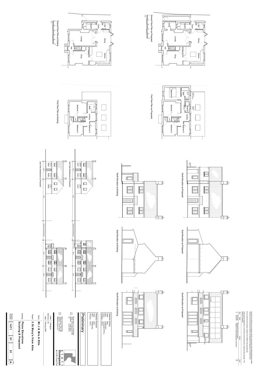
Construction of two storey side extension and the installation of photovoltaic panels to the south facing roof

Documents

Existing & Proposed plans /elevations
Archived · Original link
Existing and Proposed Block Plan
Archived · Original link
Location Plan
Archived · Original link
Planning Application (public viewing)
Archived · Original link

Have your say

Your comment matters. Councils must consider every representation that raises material planning considerations.

Write a comment