← Hammersmith & Fulham

Status

Pending Decision Change of use
Received
Not recorded
New homes
0

Full proposal

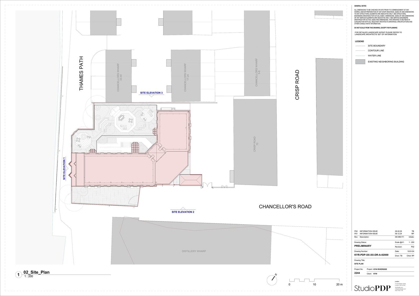
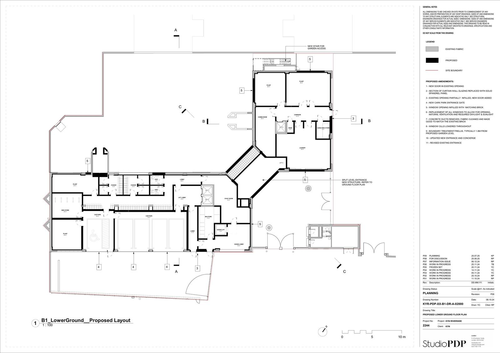
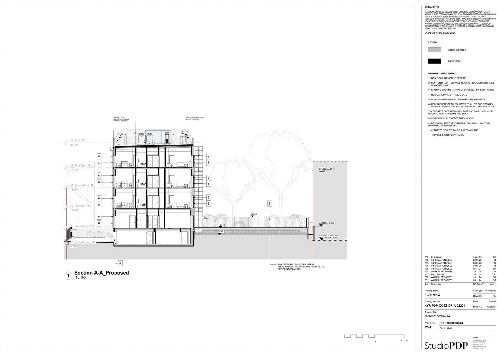
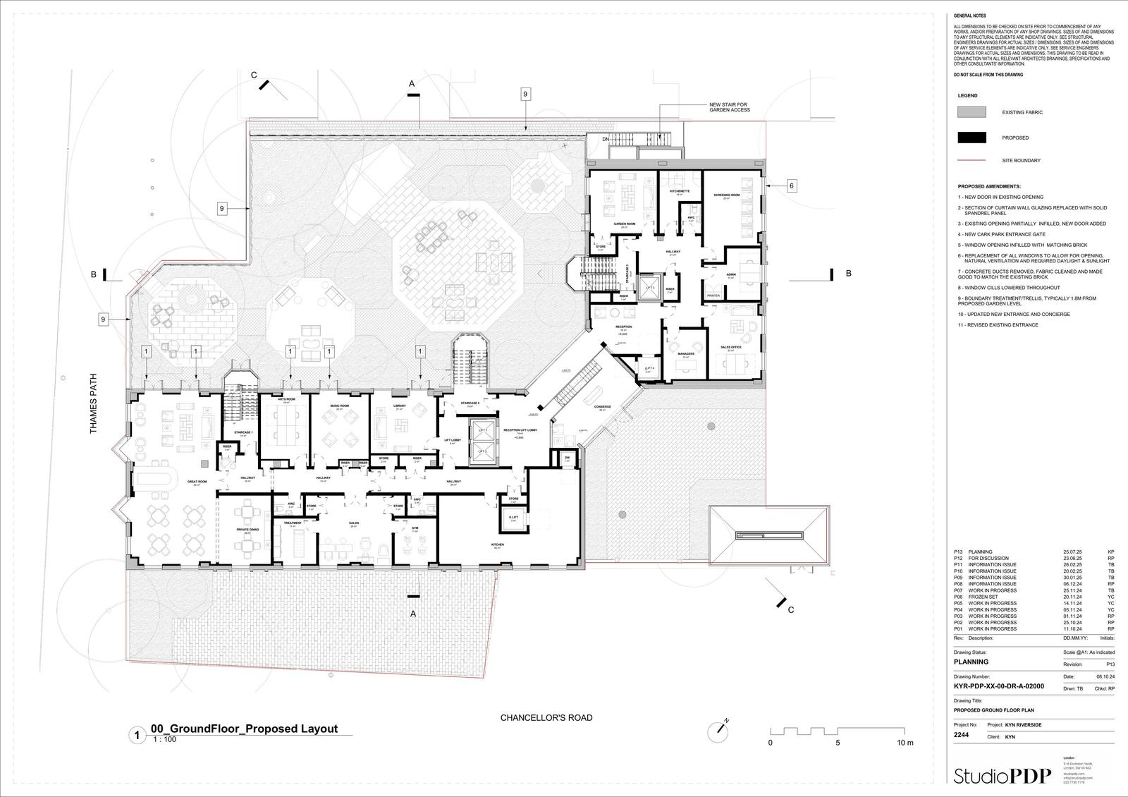
Change of use and refurbishment of existing office building (Class E) to create a 45no. bedroom care home for older people (Class C2); alterations to the facades including removal of ducts on south and east elevations, alterations to openings at ground floor level, alterations to size of windows at first, second and third floor levels, replacement of sections of curtain walling, and provision of replacement roof plant and PV panels; and associated cycle parking, car parking and landscaping.

Documents

2244_02_704_COU_DAS_2412-19_PART 1
Drawing
Not yet archived · Original link
2244_02_704_COU_DAS_2412-19_PART 2
Drawing
Not yet archived · Original link
240788-ED-01B - KYN RIVERSIDE HAMMERSMITH - PRELIMINARY ECOLOGICAL APPRAISAL
Report
Not yet archived · Original link
240788-ED-02A - KYN RIVERSIDE HAMMERSMITH - BIODIVERSITY NET GAIN ASSESSMENT
Report
Not yet archived · Original link
241218 KYN CONSULTATION NOTE V4
Report
Not yet archived · Original link
2668-REP-ES-01 - ENERGY STATEMENT - REV C
Report
Not yet archived · Original link
2668-REP-VS-01 - VENTILATION AND ODOUR STATEMENT REV B
Report
Not yet archived · Original link
28236 -KYN RIVERSIDE(A)9.2 - AIR QUALITY ASSESSMENT - REV 2 - FINAL
Report
Not yet archived · Original link
28236-KYNRIVERSIDE(N).9-REPT-01-V03_20241218 (FINAL)
Report
Not yet archived · Original link
3677 RIVERSIDE DSP DEC 24 FINAL
Report
Not yet archived · Original link
3677 RIVERSIDE REFUSE RECYCLING MP DEC 24 FINAL
Report
Not yet archived · Original link
3677 RIVERSIDE TP DEC 24 FINAL
Report
Not yet archived · Original link
3677 RIVERSIDE TS DEC 24 FINAL
Report
Not yet archived · Original link
72 CHANCELLORS ROAD - PLANNING REPORT PPR ESTATES DRAFT 31.10.24
Report
Not yet archived · Original link
ACKNOWLEDGEMENT VALID APPLICATION
Correspondence
Not yet archived · Original link
ACKNOWLEDGEMENT VALID APPLICATION
Correspondence
Not yet archived · Original link
ACTIVE TRAVEL ZONES
Report
Not yet archived · Original link
ADDITIONAL MARKETING REPORT
Report
Not yet archived · Original link
AGREEMENT TO PAY BNG WATERCOURSE UNITS
Report
Not yet archived · Original link
APPLICATIONFORMREDACTED
Application Form
Not yet archived · Original link
BNG METRIC
BackGround Papers
Not yet archived · Original link
BREEAM ASSESSMENT
Report
Not yet archived · Original link
CHIVAS HOUSE - CIL FORM 1
Drawing
Not yet archived · Original link
CHIVAS.01 CHIVAS HOUSE HERITAGE IMPACT ASSESSMENT DECEMBER 2024
Report
Not yet archived · Original link
D&A
Report
Not yet archived · Original link
D&A
Report
Not yet archived · Original link
D&A PART 1
Revised Drawing
Not yet archived · Original link
D&A PART 2
Revised Drawing
Not yet archived · Original link
DAYLIGHT AND SUNLIGHT REPORT (WITHIN DEVELOPMENT) 201224
Report
Not yet archived · Original link
DECISION NOTICE
Decision
Not yet archived · Original link
DRAINAGE PLAN
Drawing
Not yet archived · Original link
DRAINAGE STRATEGY
Report
Not yet archived · Original link
ELL-KYN -CLP CONSTRUCTION LOGISTICS PLAN - KYN RIVERSIDE
Report
Not yet archived · Original link
ELL-KYN-CMP CONSTRUCTION MANAGEMENT PLAN KYN RIVERSIDE REV 1
Report
Not yet archived · Original link
EXISTING ELEVATION 1, ELEVATION 2
Revised Drawing
Not yet archived · Original link
EXISTING ELEVATION 3, ELEVATION 4
Revised Drawing
Not yet archived · Original link
EXISTING FIRST FLOOR PLAN
Revised Drawing
Not yet archived · Original link
EXISTING GIA PLANS
Revised Drawing
Not yet archived · Original link
EXISTING GROUND FLOOR PLAN
Revised Drawing
Not yet archived · Original link
EXISTING LOWER GROUND FLOOR PLAN
Revised Drawing
Not yet archived · Original link
EXISTING ROOF PLAN
Revised Drawing
Not yet archived · Original link
EXISTING SECOND FLOOR PLAN
Revised Drawing
Not yet archived · Original link
EXISTING SECTION A-A
Revised Drawing
Not yet archived · Original link
EXISTING SECTION B-B, C-C
Revised Drawing
Not yet archived · Original link
EXISTING SITE ELEVATIONS
Revised Drawing
Not yet archived · Original link
EXISTING THIRD FLOOR PLAN
Revised Drawing
Not yet archived · Original link
FABRIC REMOVAL ELEVATION 1, ELEVATION 2
Revised Drawing
Not yet archived · Original link
FABRIC REMOVAL ELEVATION 3, ELEVATION 4
Revised Drawing
Not yet archived · Original link
FABRIC REMOVAL FIRST FLOOR PLAN
Revised Drawing
Not yet archived · Original link
FABRIC REMOVAL GROUND FLOOR PLAN
Revised Drawing
Not yet archived · Original link
FABRIC REMOVAL LOWER GROUND FLOOR PLAN
Revised Drawing
Not yet archived · Original link
FABRIC REMOVAL ROOF PLAN
Revised Drawing
Not yet archived · Original link
FABRIC REMOVAL SECOND FLOOR PLAN
Revised Drawing
Not yet archived · Original link
FABRIC REMOVAL SECTION A-A
Revised Drawing
Not yet archived · Original link
FABRIC REMOVAL SECTION B-B, SECTION C-C
Revised Drawing
Not yet archived · Original link
FABRIC REMOVAL THIRD FLOOR PLAN
Revised Drawing
Not yet archived · Original link
HAMMERSMITH PNA
Report
Not yet archived · Original link
HEALTHY STREETS ASSESSMENT
Report
Not yet archived · Original link
INCLUSIVE ACCESS STATEMENT
Report
Not yet archived · Original link
INVALID LETTER PLANNING APPLICATIONS
Correspondence
Not yet archived · Original link
INVALID LETTER PLANNING APPLICATIONS
Correspondence
Not yet archived · Original link
INVALID LETTER PLANNING APPLICATIONS
Correspondence
Not yet archived · Original link
INVALID LETTER PLANNING APPLICATIONS
Correspondence
Not yet archived · Original link
KYN FRA REPORT V3- 17 12 2024 - COMBINED
Report
Not yet archived · Original link
KYN RIVERSIDE - OPERATIONAL STATEMENT_V2
Report
Not yet archived · Original link
KYN_CHV_AIA_01 (LR)_UNLOCKED
Report
Not yet archived · Original link
LOCATION PLAN
Revised Drawing
Not yet archived · Original link
MARKETING REPORT
Report
Not yet archived · Original link
MUK10374 - KYN RIVERSIDE CARE HOME - FIRE STATEMENT (ISSUE 01)_
Report
Not yet archived · Original link
PLANNING STATEMENT
Report
Not yet archived · Original link
PLANT/PV LOCATIONS
Drawing
Not yet archived · Original link
PLANT/PV LOCATIONS
Drawing
Not yet archived · Original link
PLANT/PV LOCATIONS
Drawing
Not yet archived · Original link
PLANT/PV LOCATIONS
Drawing
Not yet archived · Original link
PROPOSED ELEVATION 1, ELEVATION 2
Revised Drawing
Not yet archived · Original link
PROPOSED ELEVATION 3, ELEVATION 4
Revised Drawing
Not yet archived · Original link
PROPOSED FIRST FLOOR PLAN
Revised Drawing
Not yet archived · Original link
PROPOSED GIA PLANS
Revised Drawing
Not yet archived · Original link
PROPOSED GROUND FLOOR PLAN
Revised Drawing
Not yet archived · Original link
PROPOSED LOWER GROUND FLOOR PLAN
Revised Drawing
Not yet archived · Original link
PROPOSED ROOF PLAN
Revised Drawing
Not yet archived · Original link
PROPOSED SECOND FLOOR PLAN
Revised Drawing
Not yet archived · Original link
PROPOSED SECTION A-A
Revised Drawing
Not yet archived · Original link
PROPOSED SECTION B-B, C-C
Revised Drawing
Not yet archived · Original link
PROPOSED SITE ELEVATIONS
Revised Drawing
Not yet archived · Original link
PROPOSED THIRD FLOOR PLAN
Revised Drawing
Not yet archived · Original link
PUBLIC NOTICES
BackGround Papers
Not yet archived · Original link
REVISED ACCESSIBILITY STATEMENT
Revised Drawing
Not yet archived · Original link
REVISED ACCESSIBILITY STATEMENT
Revised Drawing
Not yet archived · Original link
REVISED BNG ASSESSMENT
Drawing
Not yet archived · Original link
REVISED BNG METRIC
Report
Not yet archived · Original link
REVISED CIL FORM
Drawing
Not yet archived · Original link
REVISED D&A
Revised Drawing
Not yet archived · Original link
Revised Drawing
Revised Drawing
Not yet archived · Original link
Revised Drawing
Revised Drawing
Not yet archived · Original link
Revised Drawing
Revised Drawing
Not yet archived · Original link
Revised Drawing
Revised Drawing
Not yet archived · Original link
Revised Drawing
Revised Drawing
Not yet archived · Original link
Revised Drawing
Revised Drawing
Not yet archived · Original link
Revised Drawing
Revised Drawing
Not yet archived · Original link
Revised Drawing
Revised Drawing
Not yet archived · Original link
Revised Drawing
Revised Drawing
Not yet archived · Original link
REVISED ENERGY STATEMENT
Revised Drawing
Not yet archived · Original link
REVISED FABRIC REMOVAL PLANS
Revised Drawing
Not yet archived · Original link
REVISED FABRIC REMOVAL PLANS
Revised Drawing
Not yet archived · Original link
REVISED FABRIC REMOVAL PLANS
Revised Drawing
Not yet archived · Original link
REVISED FABRIC REMOVAL PLANS
Revised Drawing
Not yet archived · Original link
REVISED FABRIC REMOVAL PLANS
Revised Drawing
Not yet archived · Original link
REVISED FABRIC REMOVAL PLANS
Revised Drawing
Not yet archived · Original link
REVISED FABRIC REMOVAL PLANS
Revised Drawing
Not yet archived · Original link
REVISED FABRIC REMOVAL PLANS
Revised Drawing
Not yet archived · Original link
REVISED FABRIC REMOVAL PLANS
Revised Drawing
Not yet archived · Original link
REVISED FABRIC REMOVAL PLANS
Revised Drawing
Not yet archived · Original link
REVISED FRA
Report
Not yet archived · Original link
Revised Drawing
Archived · Original link
Revised Drawing
Archived · Original link
Revised Drawing
Archived · Original link
Revised Drawing
Archived · Original link
Revised Drawing
Archived · Original link
Revised Drawing
Archived · Original link
Revised Drawing
Archived · Original link
Revised Drawing
Archived · Original link
Revised Drawing
Archived · Original link
Revised Drawing
Archived · Original link
Revised Drawing
Archived · Original link
Revised Drawing
Archived · Original link
REVISED UGF
Drawing
Not yet archived · Original link
RIVER WALL INSPECTION
Report
Not yet archived · Original link
RSL_2336_S2_RP_02_REVA
Report
Not yet archived · Original link
SERVICING NOTE
Report
Not yet archived · Original link
SITE NOTICE (STANDARD ARTICLE 8)
Correspondence
Not yet archived · Original link
SITE NOTICE (STANDARD ARTICLE 8)
Correspondence
Not yet archived · Original link
Revised Drawing
Archived · Original link
Revised Drawing
Archived · Original link
SUSTAINABILITY REPORT
Report
Not yet archived · Original link
TREE REPORTS
Drawing
Not yet archived · Original link
TREE REPORTS
Drawing
Not yet archived · Original link
UGF
Report
Not yet archived · Original link

Have your say

Your comment matters. Councils must consider every representation that raises material planning considerations.

Write a comment