← Harborough District Council

Status

Pending Consideration New housing
Received
06 Jan 2026
New homes
90

Full proposal

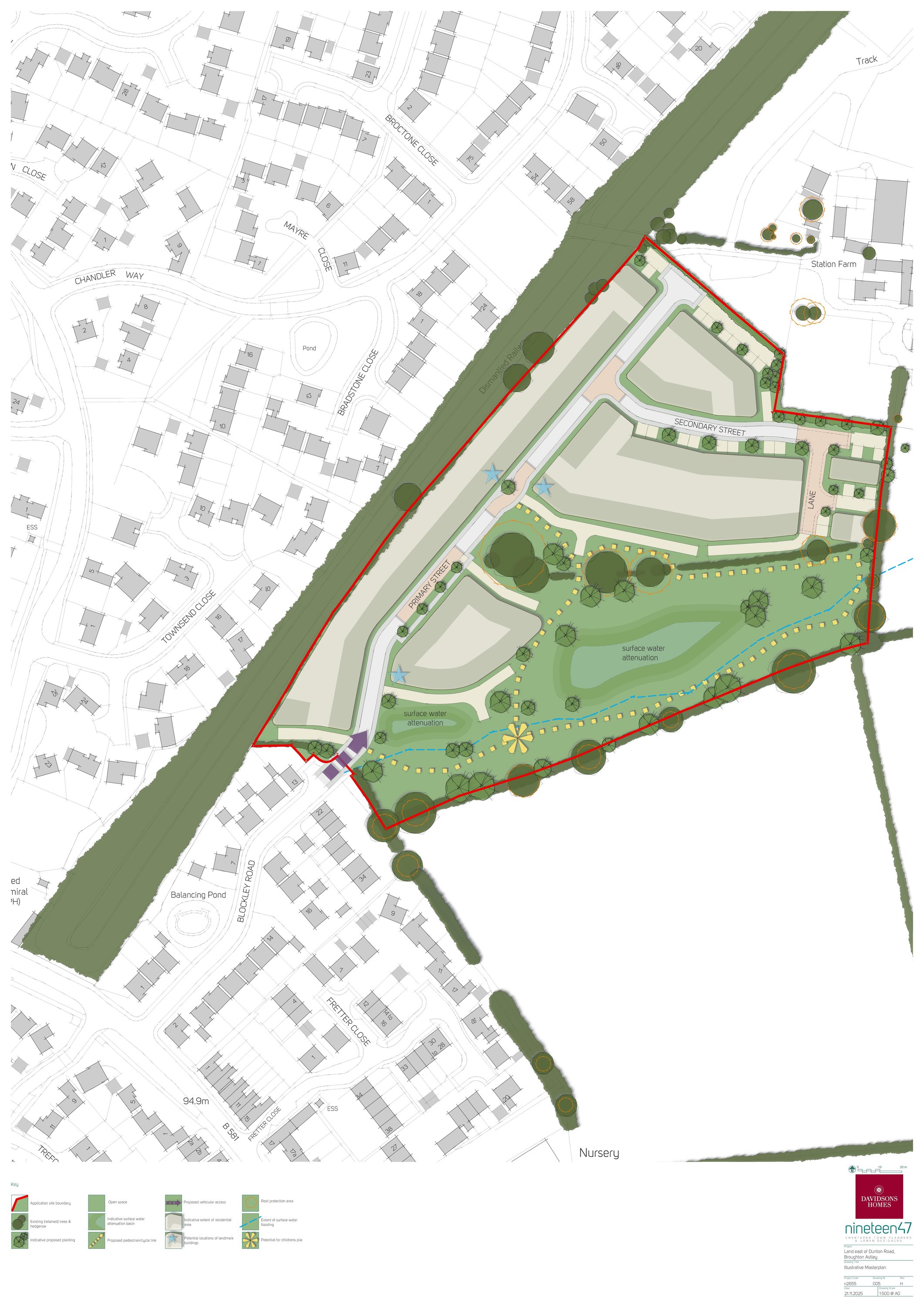
Outline planning application (with all matters reserved except access) for the residential development of up to 90 dwellings, together with associated site infrastructure, open space, and landscaping

Documents

Supporting Information
Archived · Original link
Design & Access Statement
Archived · Original link
Proposed Plan
Archived · Original link
Supporting Information
Archived · Original link
Proposed Plan
Archived · Original link
PLANNING STATEMENT
Supporting Information
Not yet archived · Original link
Supporting Information
Archived · Original link

Have your say

Your comment matters. Councils must consider every representation that raises material planning considerations.

Write a comment