← Harborough District Council

Status

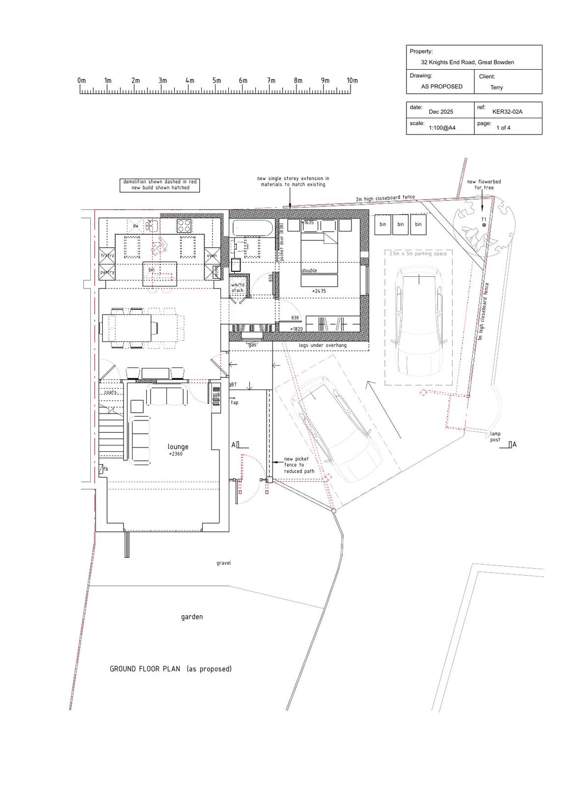
Pending Consideration House extension
Received
14 Jan 2026
New homes
0

Full proposal

Erection of a single storey side extension

Documents

Existing Plans
Archived · Original link
Site Location
Archived · Original link
Proposed Plan
Archived · Original link

Have your say

Your comment matters. Councils must consider every representation that raises material planning considerations.

Write a comment