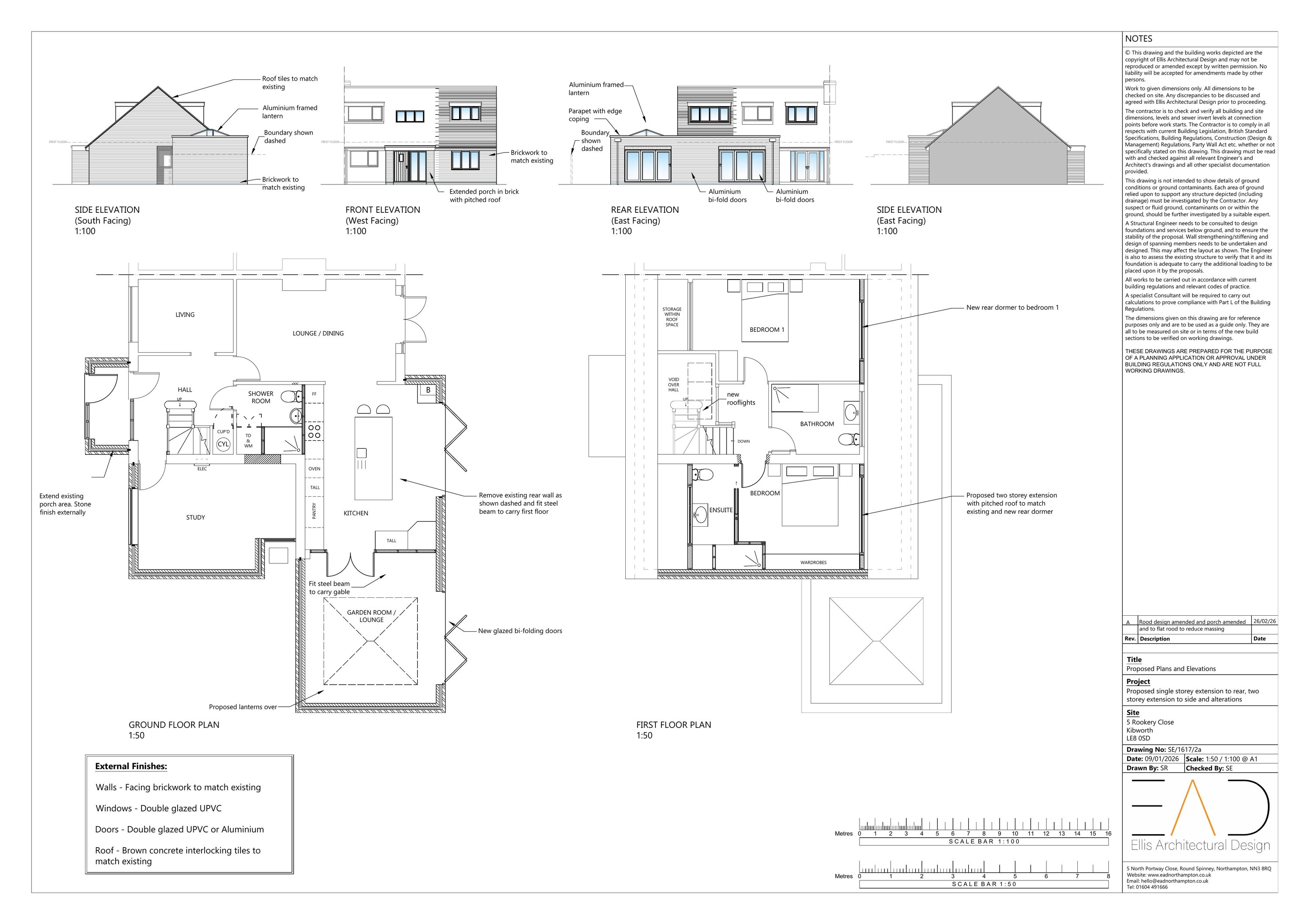
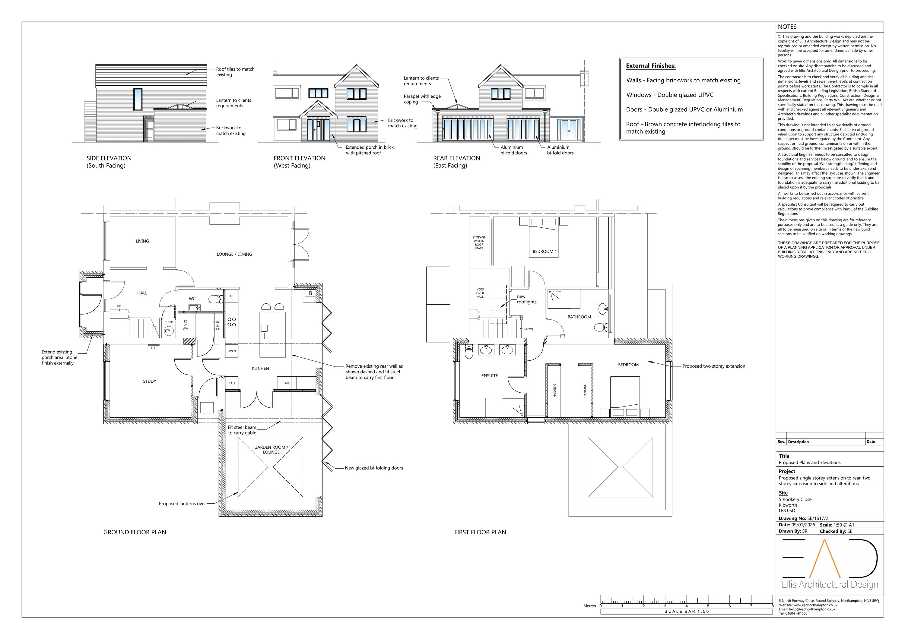
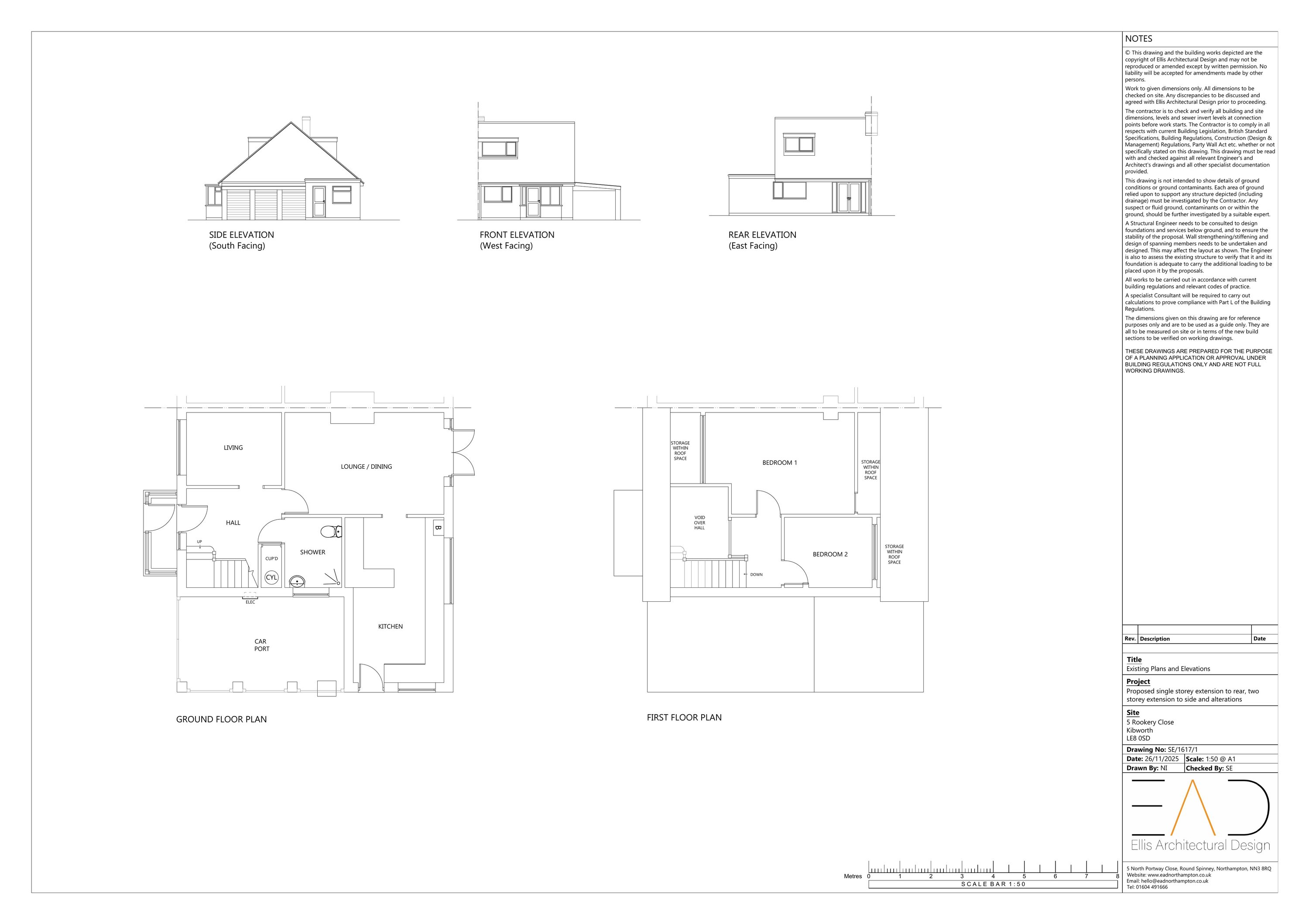
← Harborough District Council

Status

Pending Consideration House extension
Received
15 Jan 2026
New homes
0

Full proposal

Erection of two storey and single storey side and rear extensions, and extended front porch

Documents

Existing Plans
Archived · Original link
Site Location
Archived · Original link
Proposed Plan
Archived · Original link
Proposed Plan
Archived · Original link
Existing Plans
Archived · Original link

Have your say

Your comment matters. Councils must consider every representation that raises material planning considerations.

Write a comment