← Harborough District Council

Status

Pending Consideration House extension
Received
28 Jan 2026
New homes
0

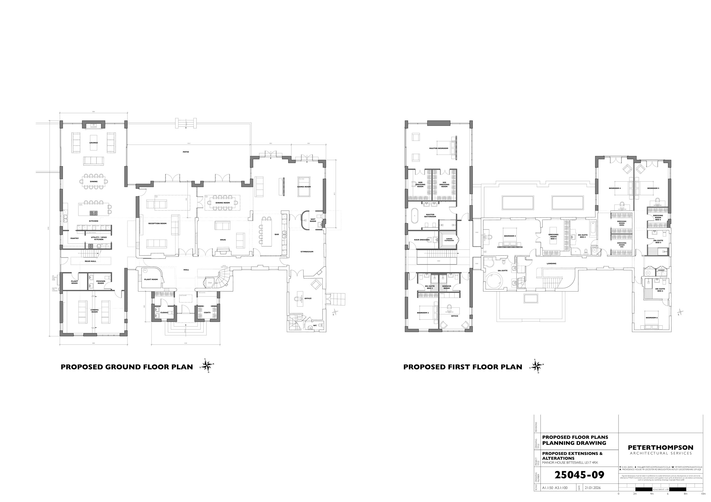
Full proposal

Erection of two storey side extension, single storey and two storey rear extensions, and single storey front porch extension

Documents

Design & Access Statement
Archived · Original link
Existing Plans
Archived · Original link
Block Plan
Archived · Original link
Proposed Elevations
Archived · Original link
Proposed Floor Plans
Archived · Original link
Site Location
Archived · Original link

Have your say

Your comment matters. Councils must consider every representation that raises material planning considerations.

Write a comment