← London Borough of Haringey

Status

Pending House extension
Received
Not recorded
New homes
0

Full proposal

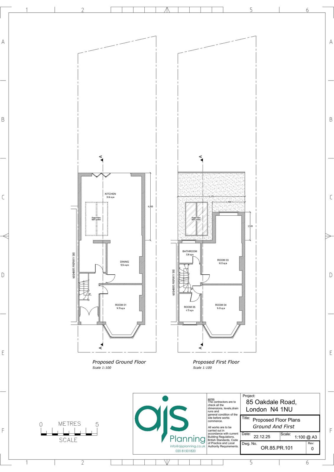
Application Reference HGY/2025/3593 Proposal Construction of ground floor rear extension, part first floor rear extension and a dormer extension Application Status Under Consultation Site Address 85 Oakdale Road Tottenham London N4 1NU Date Valid 05/2/2026 Decision Decision Notice Sent Date

Documents

Uncategorised
Archived · Original link
Uncategorised
Archived · Original link
Uncategorised
Archived · Original link
Uncategorised
Archived · Original link
Uncategorised
Archived · Original link

Have your say

Your comment matters. Councils must consider every representation that raises material planning considerations.

Write a comment