← London Borough of Haringey

Status

Pending New housing
Received
Not recorded
New homes
3

Full proposal

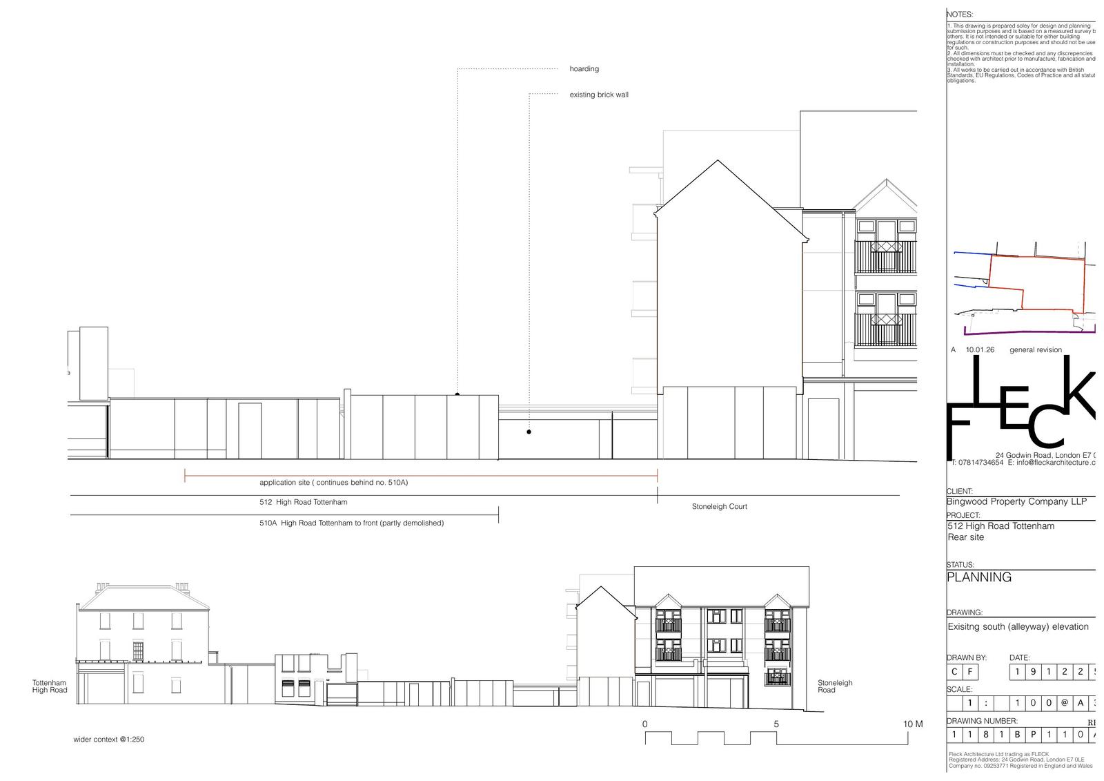
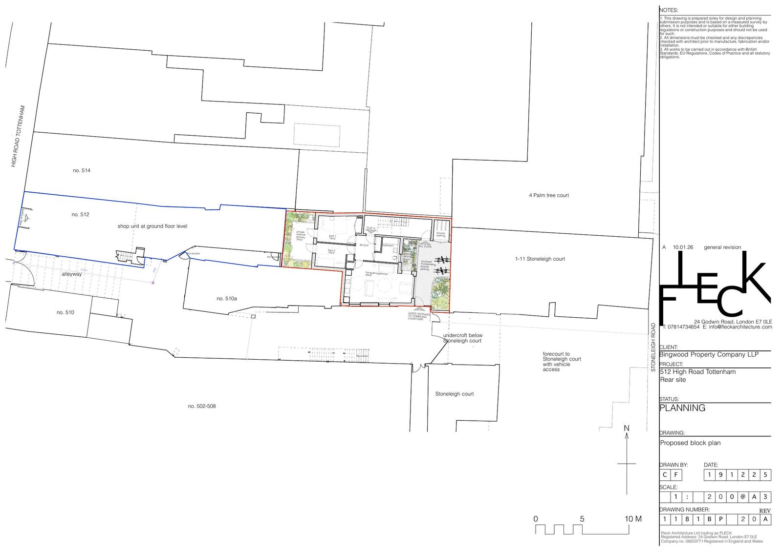
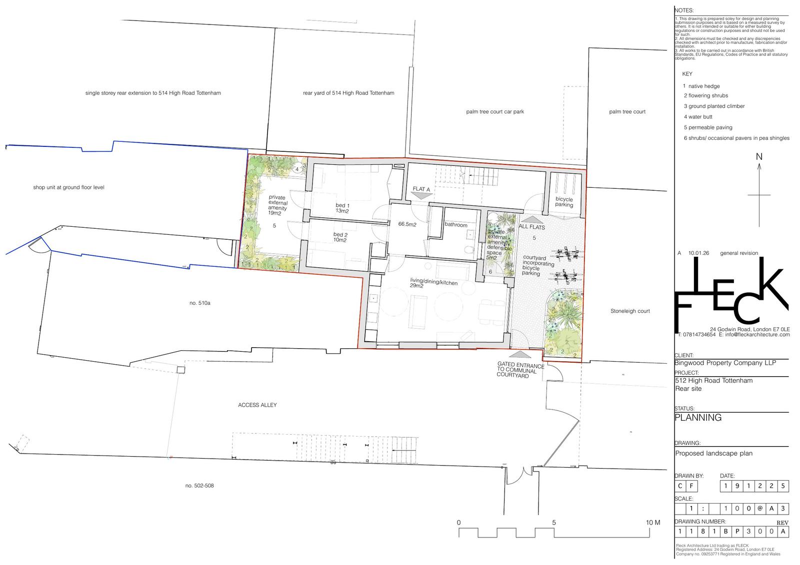
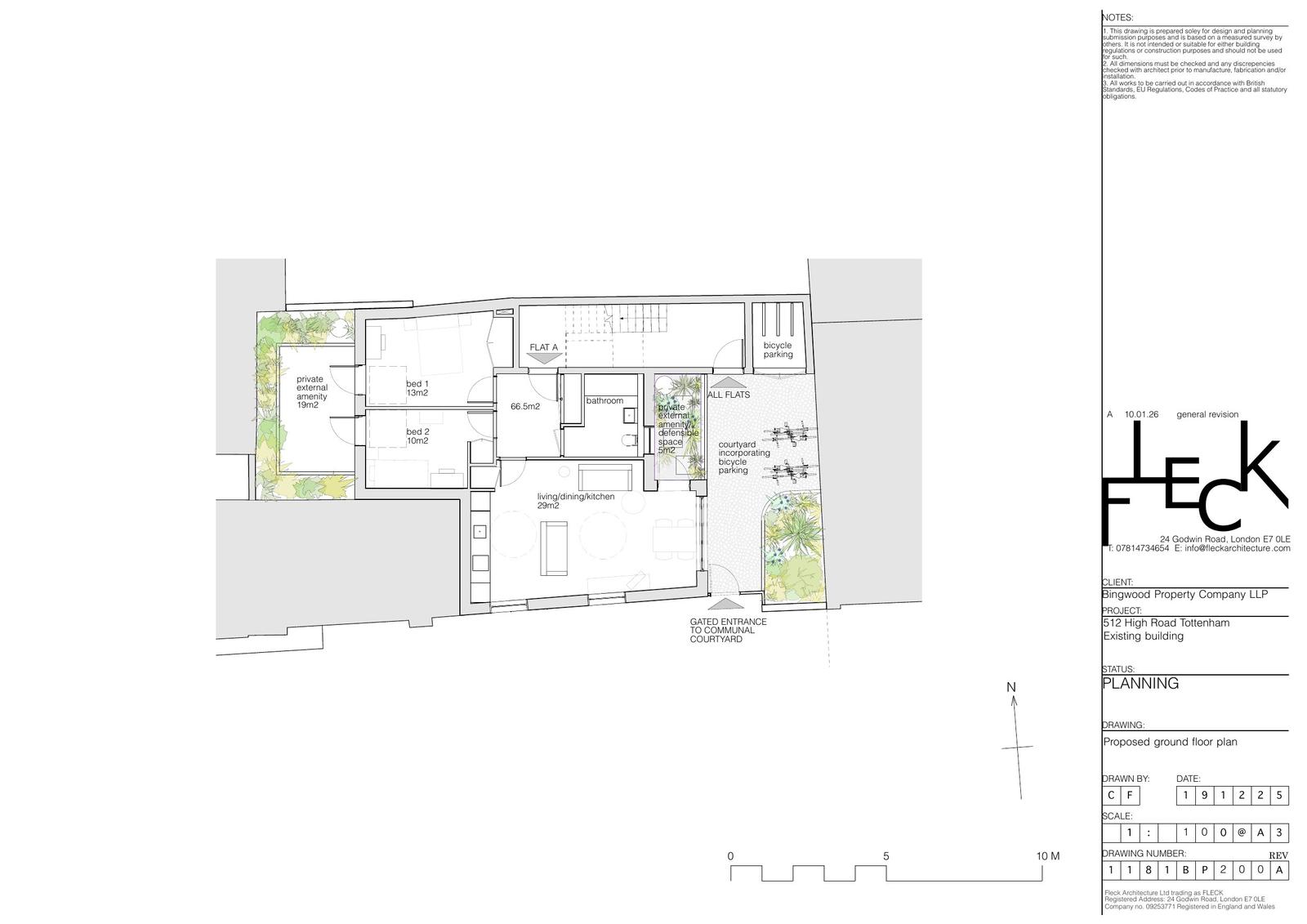
Application Reference HGY/2026/0078 Proposal Erection of three-storey building to create 3 self-contained flats, with associated bicycle storage and landscaping. Application Status Under Consultation Site Address 512 High Road Tottenham London N17 9SX Date Valid 06/2/2026 Decision Decision Notice Sent Date

Documents

Uncategorised
Archived · Original link
Uncategorised
Archived · Original link
Uncategorised
Archived · Original link
Uncategorised
Archived · Original link
Download (PDF, 3.87MB)
Uncategorised
Not yet archived · Original link
Uncategorised
Archived · Original link
Uncategorised
Archived · Original link
Uncategorised
Archived · Original link
Uncategorised
Archived · Original link
Uncategorised
Archived · Original link
Uncategorised
Archived · Original link
Uncategorised
Archived · Original link
Uncategorised
Archived · Original link
Uncategorised
Archived · Original link
Uncategorised
Archived · Original link

Have your say

Your comment matters. Councils must consider every representation that raises material planning considerations.

Write a comment