← London Borough of Haringey

Status

Pending House extension
Received
Not recorded
New homes
0

Full proposal

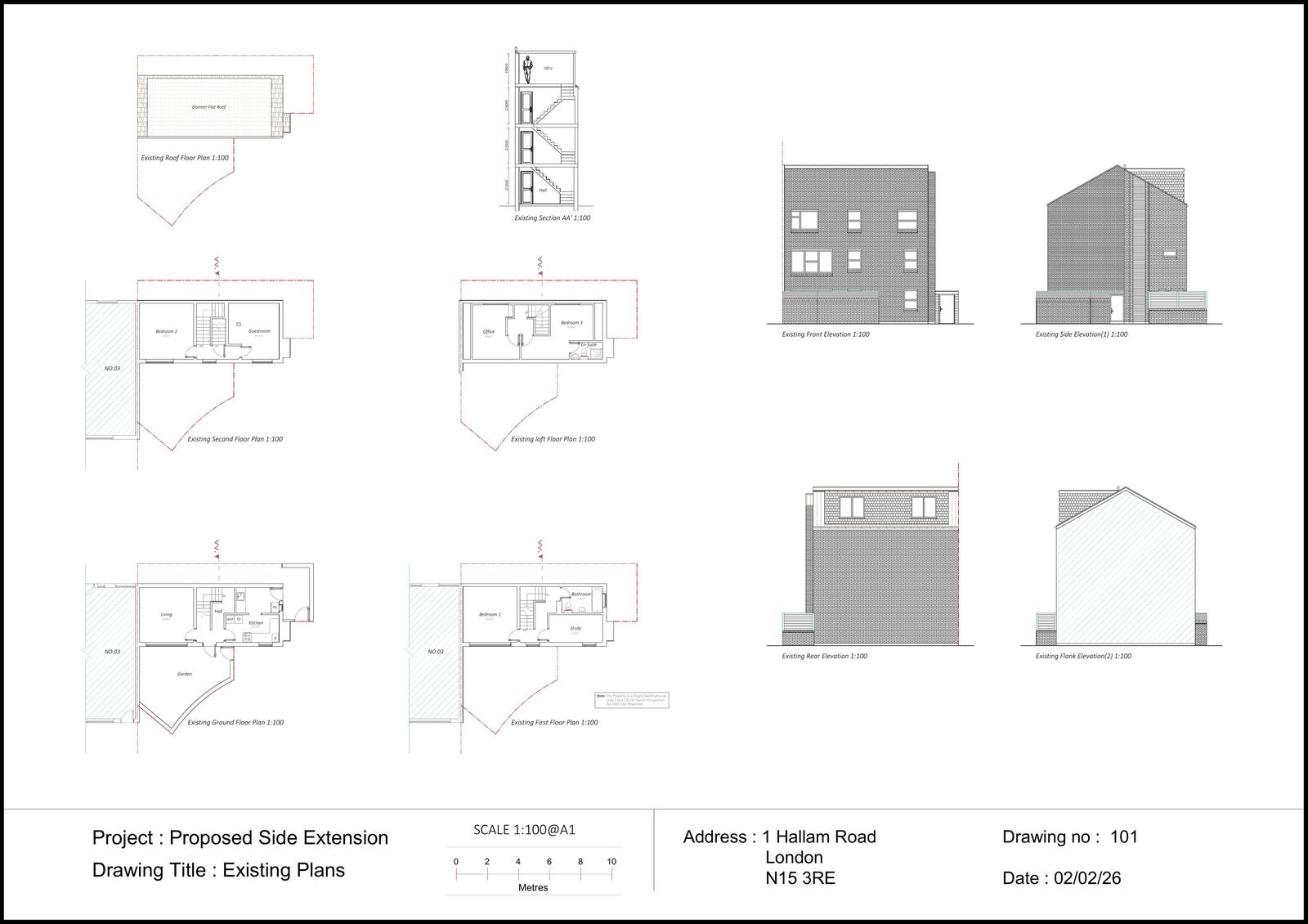
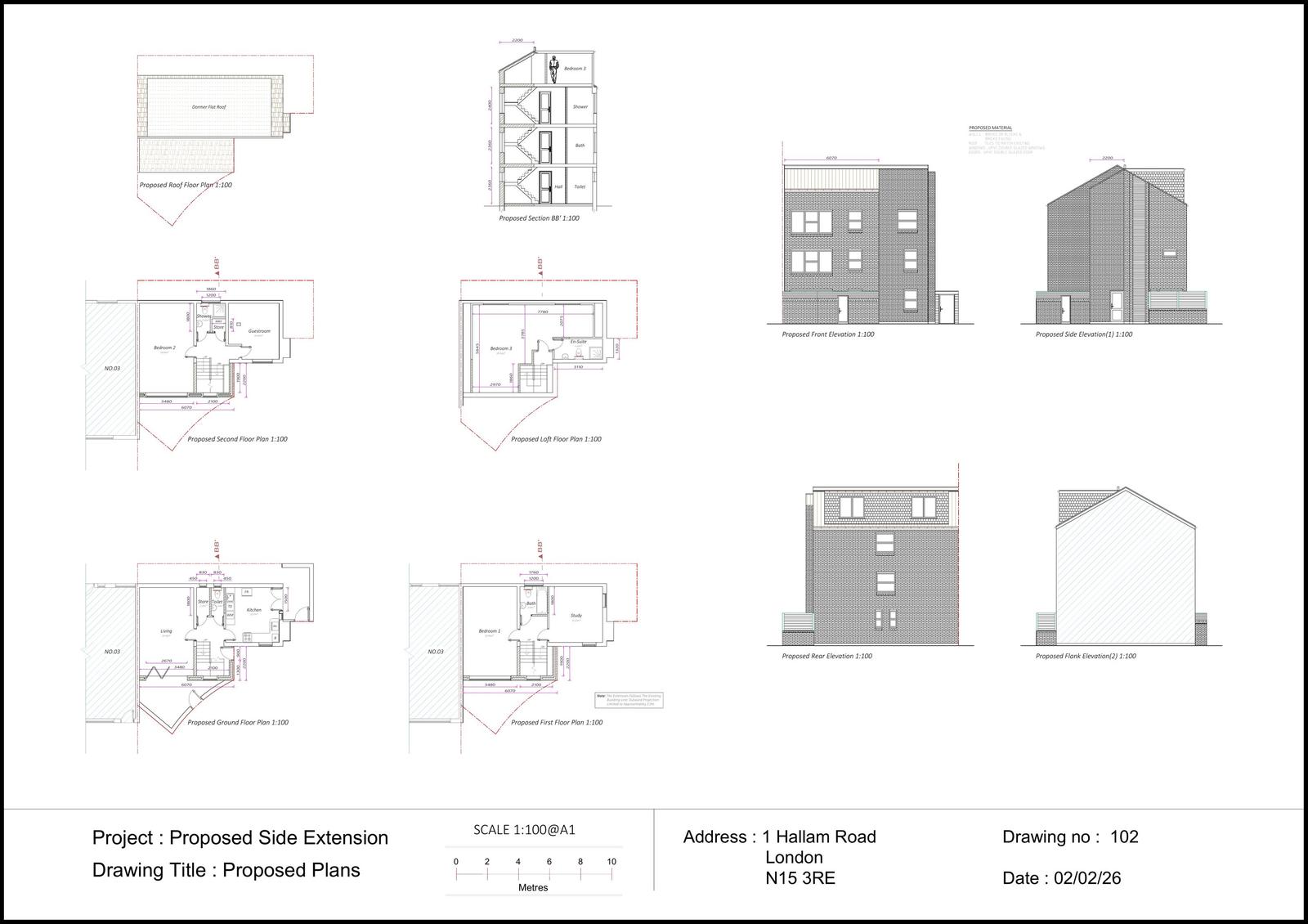
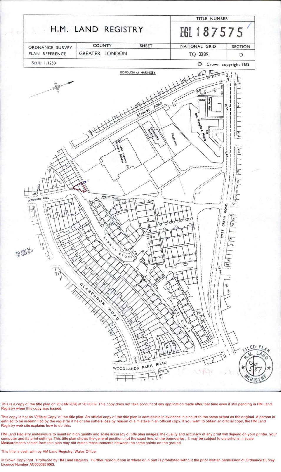
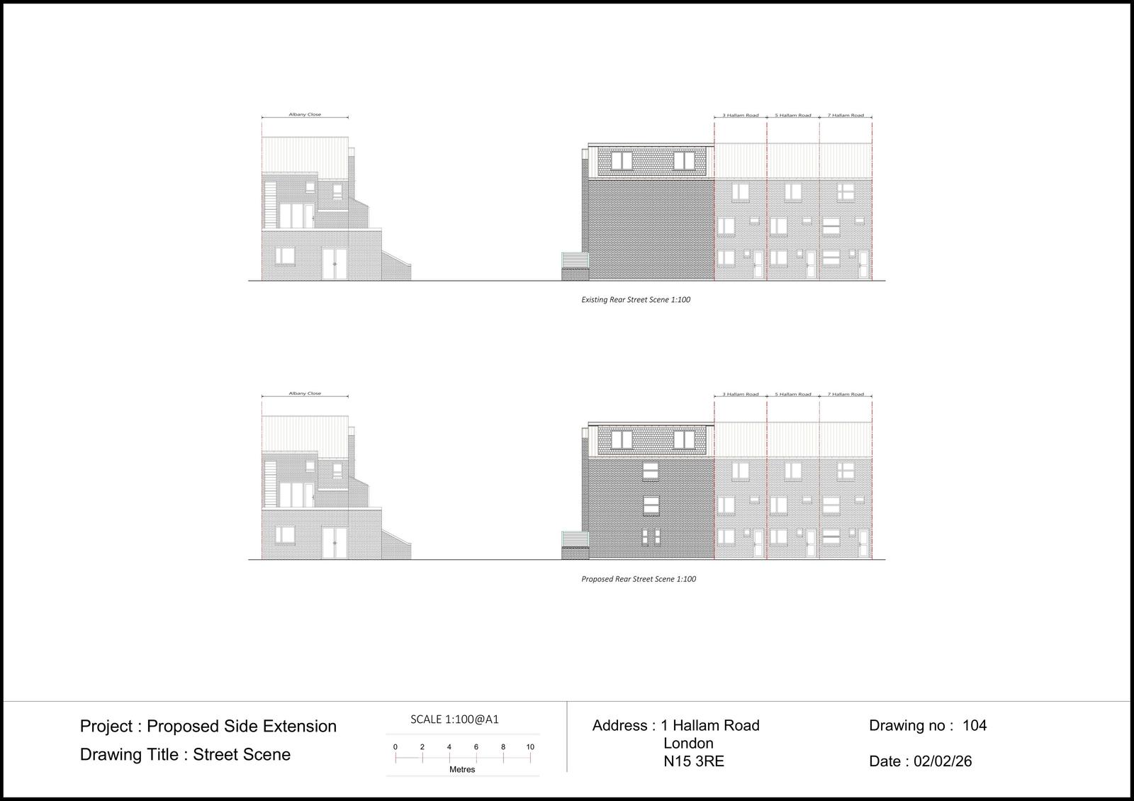
Application Reference HGY/2026/0301 Proposal Proposed two storey side extension to an existing single-family dwelling (Use Class C3), including internal reconfiguration. Application Status Under Consultation Site Address 1 Hallam Road Tottenham London N15 3RE Date Valid 10/2/2026 Decision Decision Notice Sent Date

Documents

Uncategorised
Archived · Original link
Uncategorised
Archived · Original link
Uncategorised
Archived · Original link
Uncategorised
Archived · Original link
Uncategorised
Archived · Original link
Uncategorised
Archived · Original link
Uncategorised
Archived · Original link
Uncategorised
Archived · Original link
Uncategorised
Archived · Original link
Uncategorised
Archived · Original link

Have your say

Your comment matters. Councils must consider every representation that raises material planning considerations.

Write a comment