← London Borough of Haringey

Status

Pending Other
Received
Not recorded
New homes
0

Full proposal

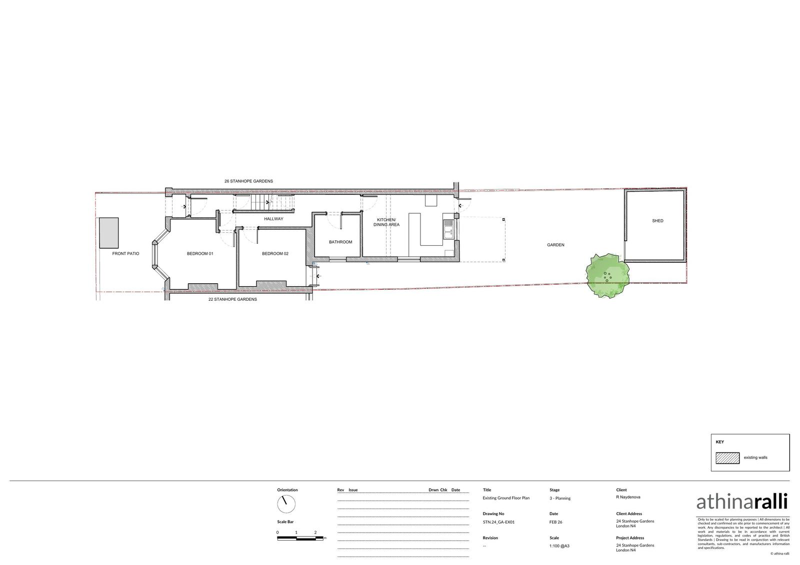
Application Reference HGY/2026/0342 Proposal Construction of a single-storey garden studio for ancillary residential use. Application Status Under Consultation Site Address 24 Stanhope Gardens Tottenham London N4 1HT Date Valid 09/2/2026 Decision Decision Notice Sent Date

Documents

Uncategorised
Archived · Original link
Uncategorised
Archived · Original link
Uncategorised
Archived · Original link
Uncategorised
Archived · Original link
Uncategorised
Archived · Original link
Uncategorised
Archived · Original link
Uncategorised
Archived · Original link
Uncategorised
Archived · Original link
Uncategorised
Archived · Original link
Uncategorised
Archived · Original link

Have your say

Your comment matters. Councils must consider every representation that raises material planning considerations.

Write a comment