← London Borough of Haringey

Status

Pending House extension
Received
Not recorded
New homes
0

Full proposal

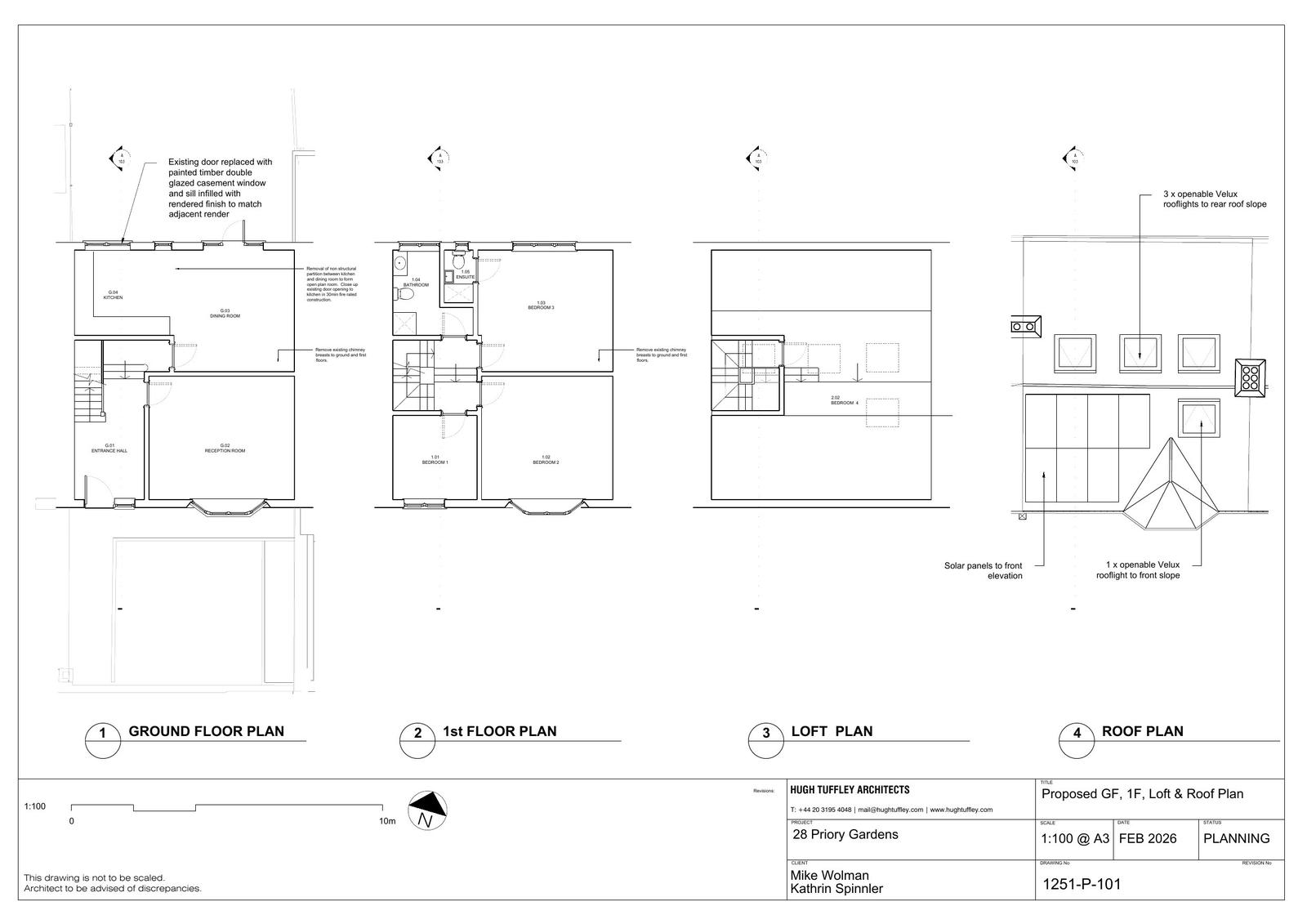
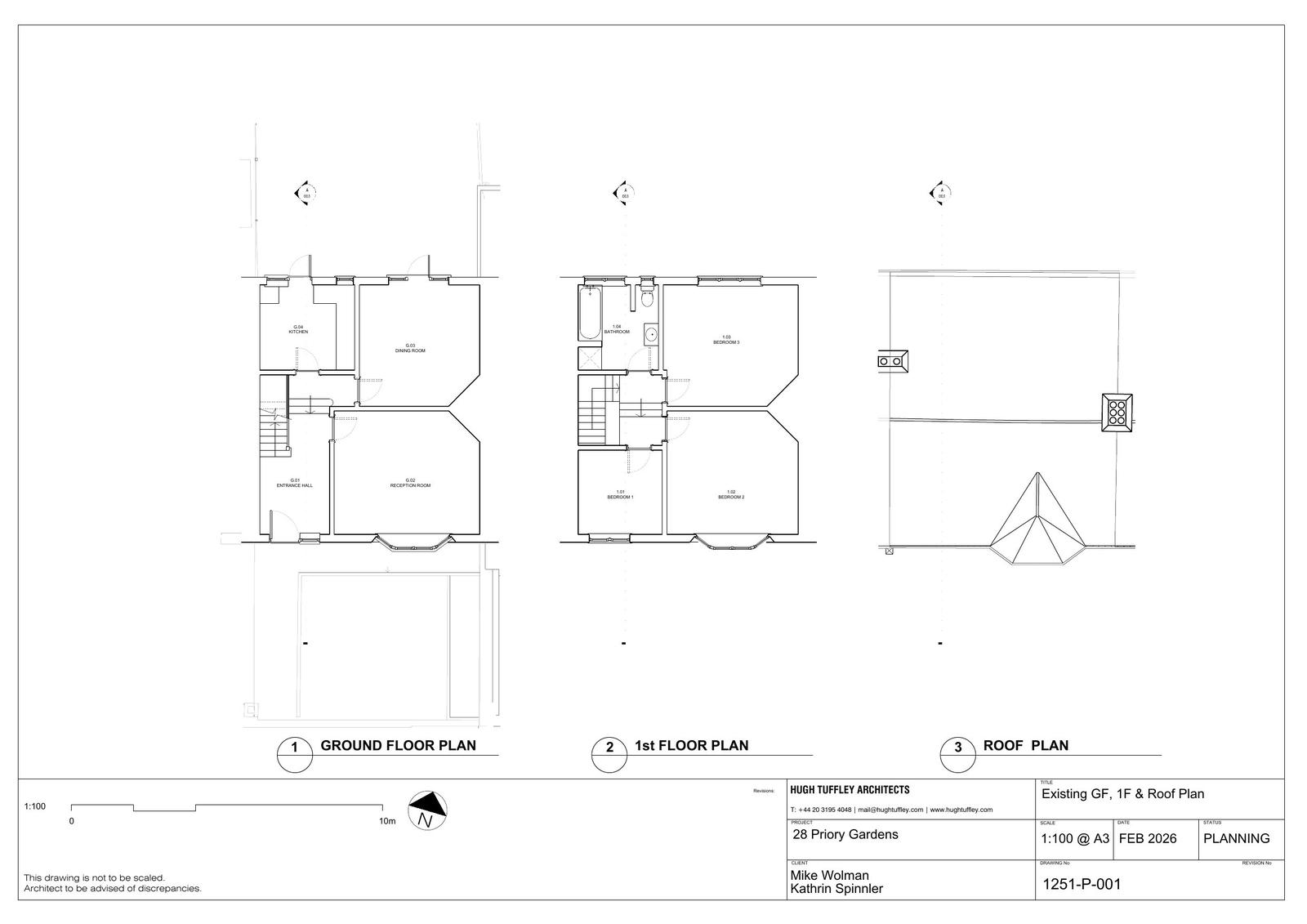
Application Reference HGY/2026/0365 Proposal Installation of no.1 velux window to the front roof slope and no.3 velux windows to the rear roof slope for loft conversion; installation of solar panels to the front roof slope; change to ground floor rear fenestration. Application Status Under Consultation Site Address 28 Priory Gardens Hornsey London N6 5QS Date Valid 11/2/2026 Decision Decision Notice Sent Date

Documents

Uncategorised
Archived · Original link
Uncategorised
Archived · Original link
Uncategorised
Archived · Original link
Uncategorised
Archived · Original link
Uncategorised
Archived · Original link
Uncategorised
Archived · Original link
Uncategorised
Archived · Original link
Uncategorised
Archived · Original link
Uncategorised
Archived · Original link
Uncategorised
Archived · Original link
Uncategorised
Archived · Original link

Have your say

Your comment matters. Councils must consider every representation that raises material planning considerations.

Write a comment