← London Borough of Haringey

Status

Pending House extension
Received
Not recorded
New homes
0

Full proposal

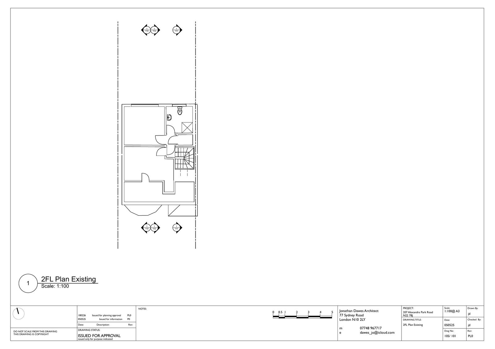
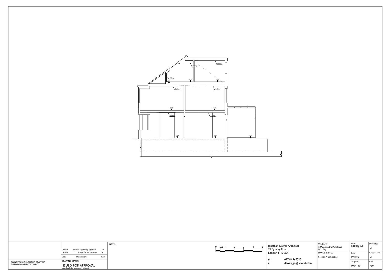
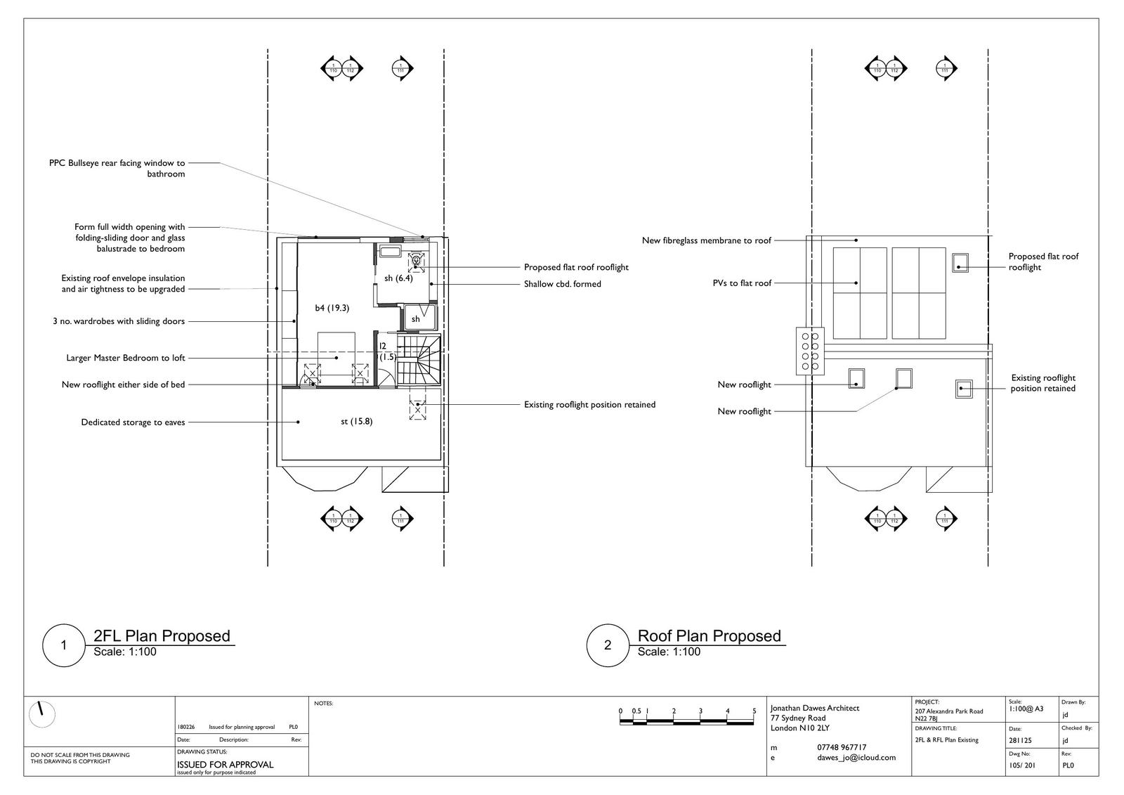
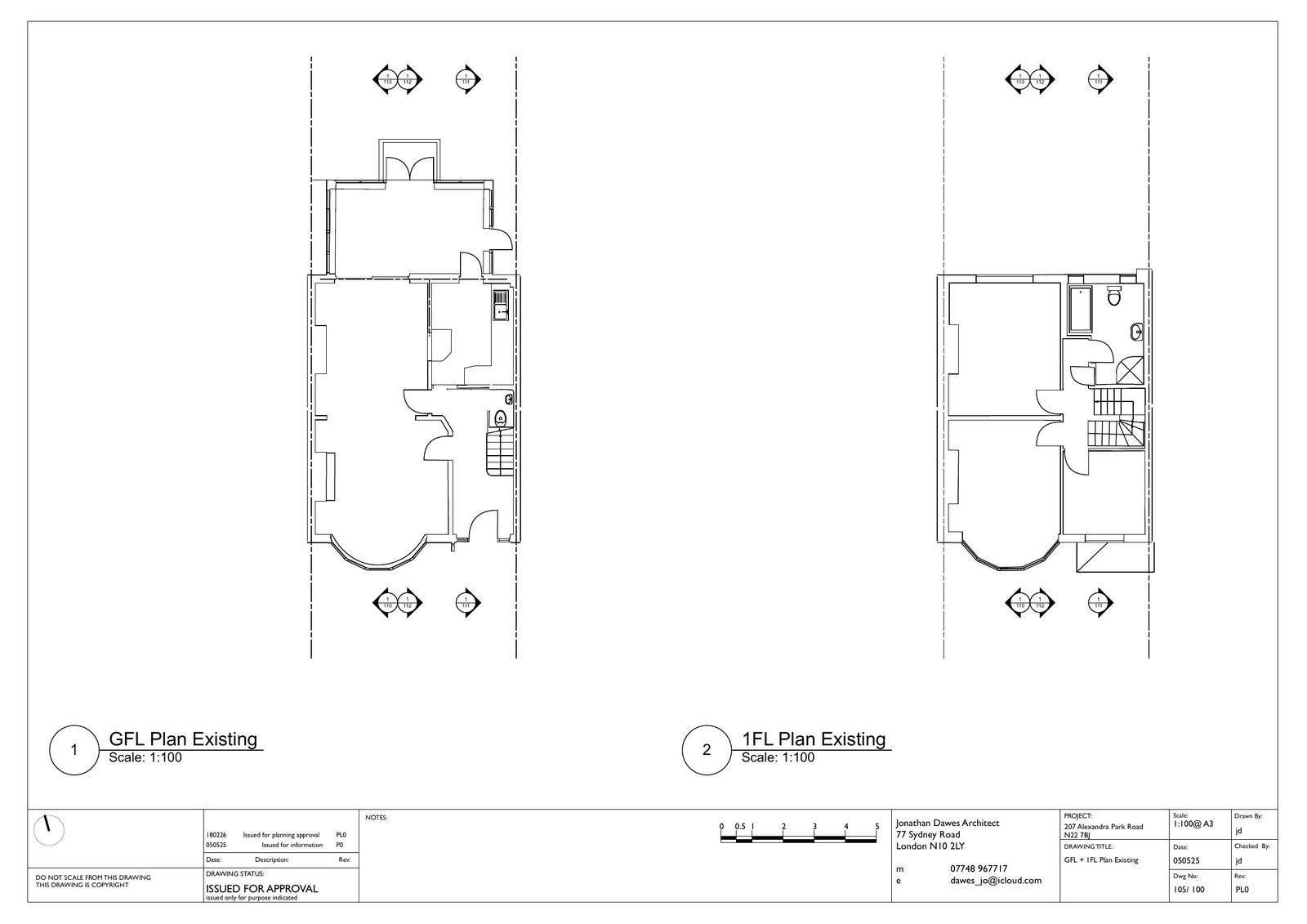
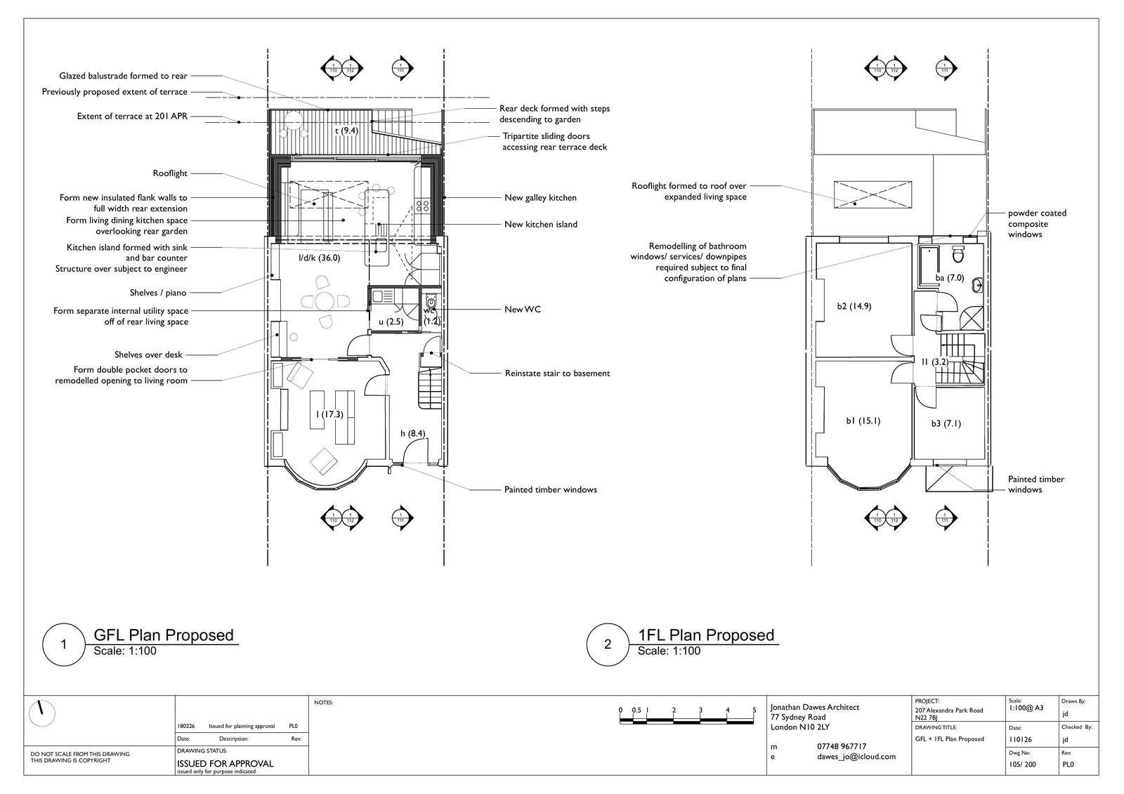
Application Reference HGY/2026/0496 Proposal Demolition and reconstruction of rear single storey extension with new decking, remodelling of rear dormer with new cladding and new windows, new PV panels above and reconfiguration of front rooflights. Application Status Under Consultation Site Address 207 Alexandra Park Road Wood Green London N22 7BJ Date Valid 13/3/2026 Decision Decision Notice Sent Date

Documents

Uncategorised
Archived · Original link
Uncategorised
Archived · Original link
Uncategorised
Archived · Original link
Uncategorised
Archived · Original link
Uncategorised
Archived · Original link
Uncategorised
Archived · Original link
Uncategorised
Archived · Original link
Uncategorised
Archived · Original link
Uncategorised
Archived · Original link
Uncategorised
Archived · Original link
Uncategorised
Archived · Original link
Uncategorised
Archived · Original link
Uncategorised
Archived · Original link
Uncategorised
Archived · Original link
Uncategorised
Archived · Original link
Uncategorised
Archived · Original link

Have your say

Your comment matters. Councils must consider every representation that raises material planning considerations.

Write a comment