← London Borough of Haringey

Status

Pending House extension
Received
Not recorded
New homes
0

Full proposal

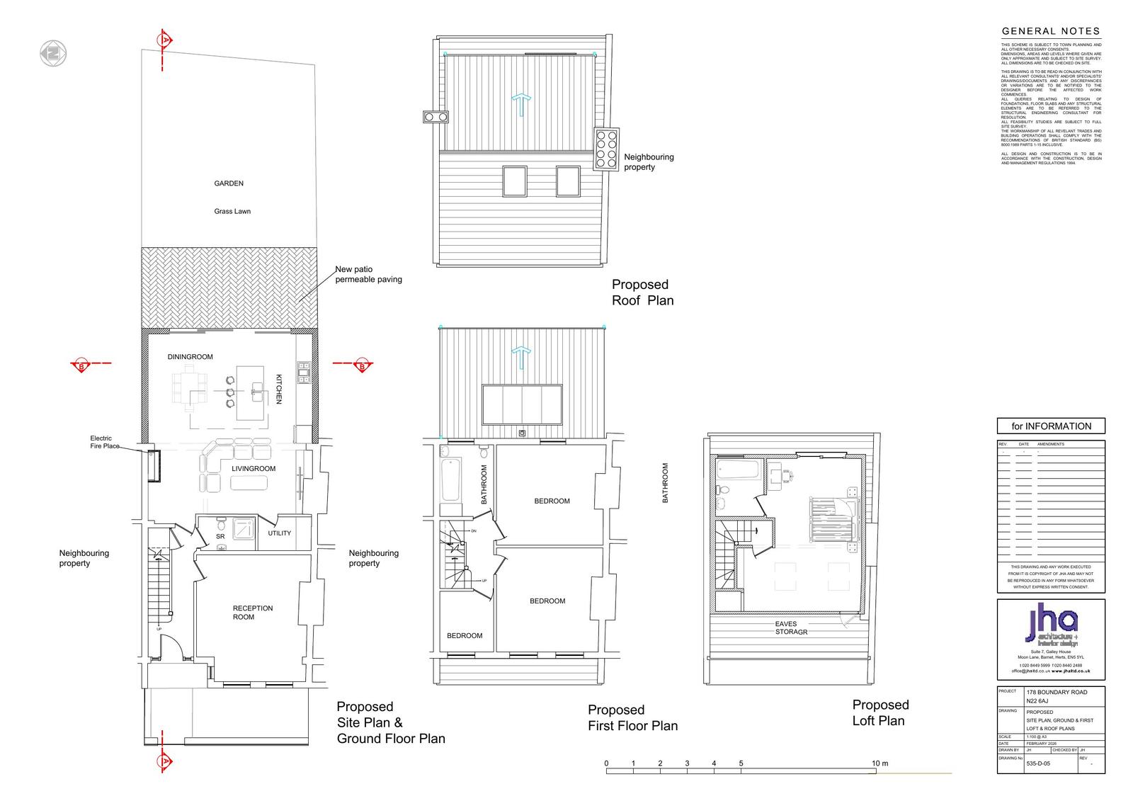
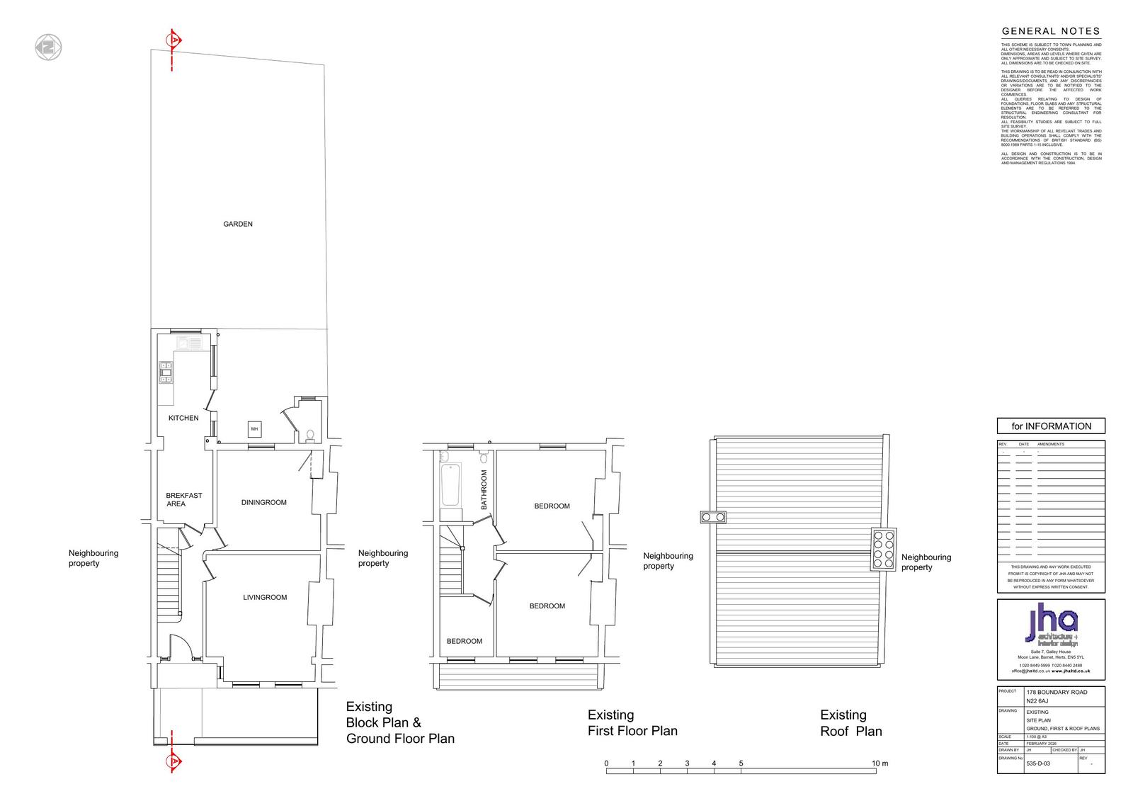
Application Reference HGY/2026/0581 Proposal Ground floor rear extension with roof light and loft conversion with roof lights. Application Status Under Consultation Site Address 178 Boundary Road Tottenham London N22 6AJ Date Valid 12/3/2026 Decision Decision Notice Sent Date

Documents

Uncategorised
Archived · Original link
Uncategorised
Archived · Original link
Uncategorised
Archived · Original link
Uncategorised
Archived · Original link
Uncategorised
Archived · Original link
Uncategorised
Archived · Original link
Uncategorised
Archived · Original link
Uncategorised
Archived · Original link
Uncategorised
Archived · Original link

Have your say

Your comment matters. Councils must consider every representation that raises material planning considerations.

Write a comment