← London Borough of Haringey

Status

Pending House extension
Received
Not recorded
New homes
0

Full proposal

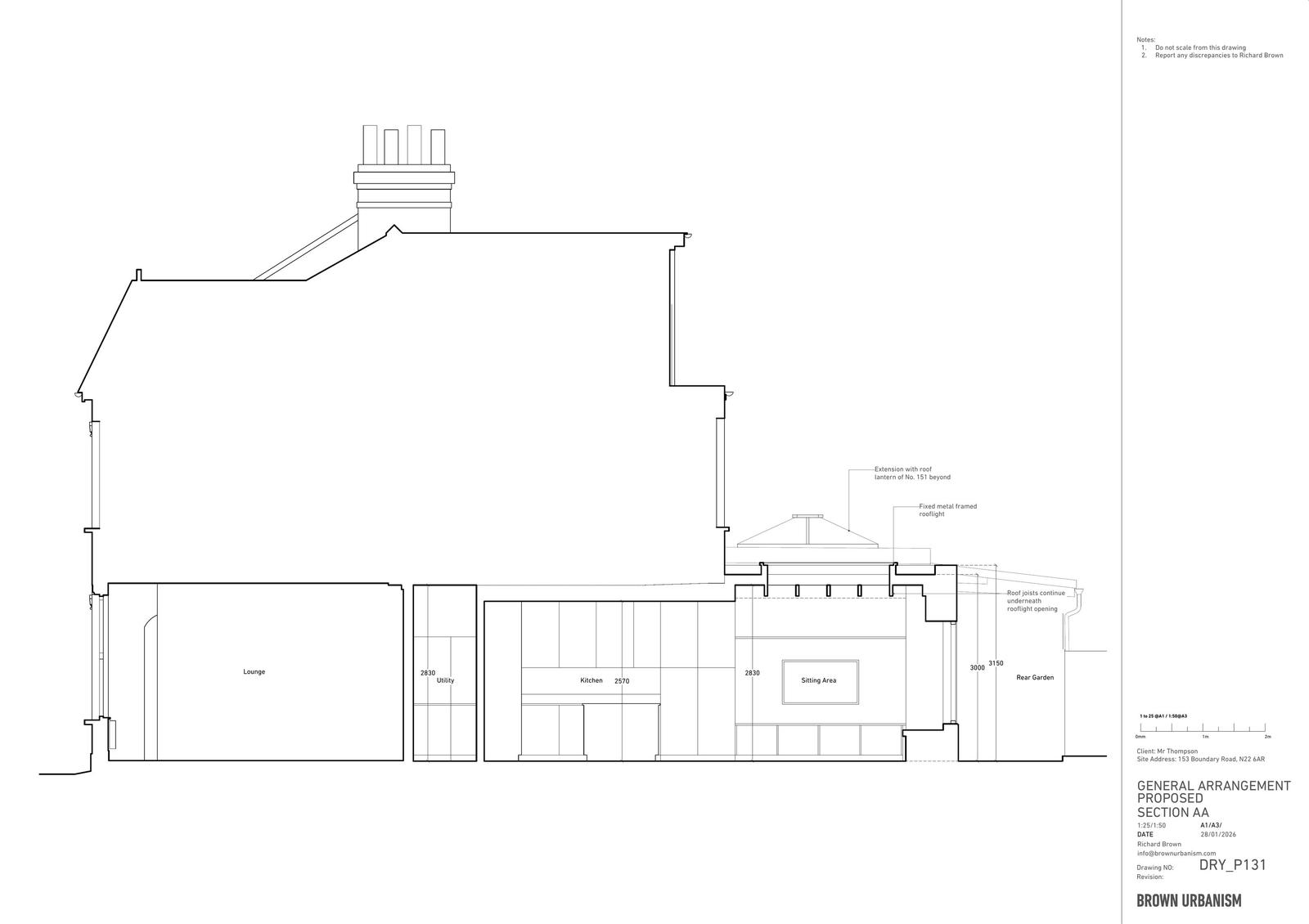
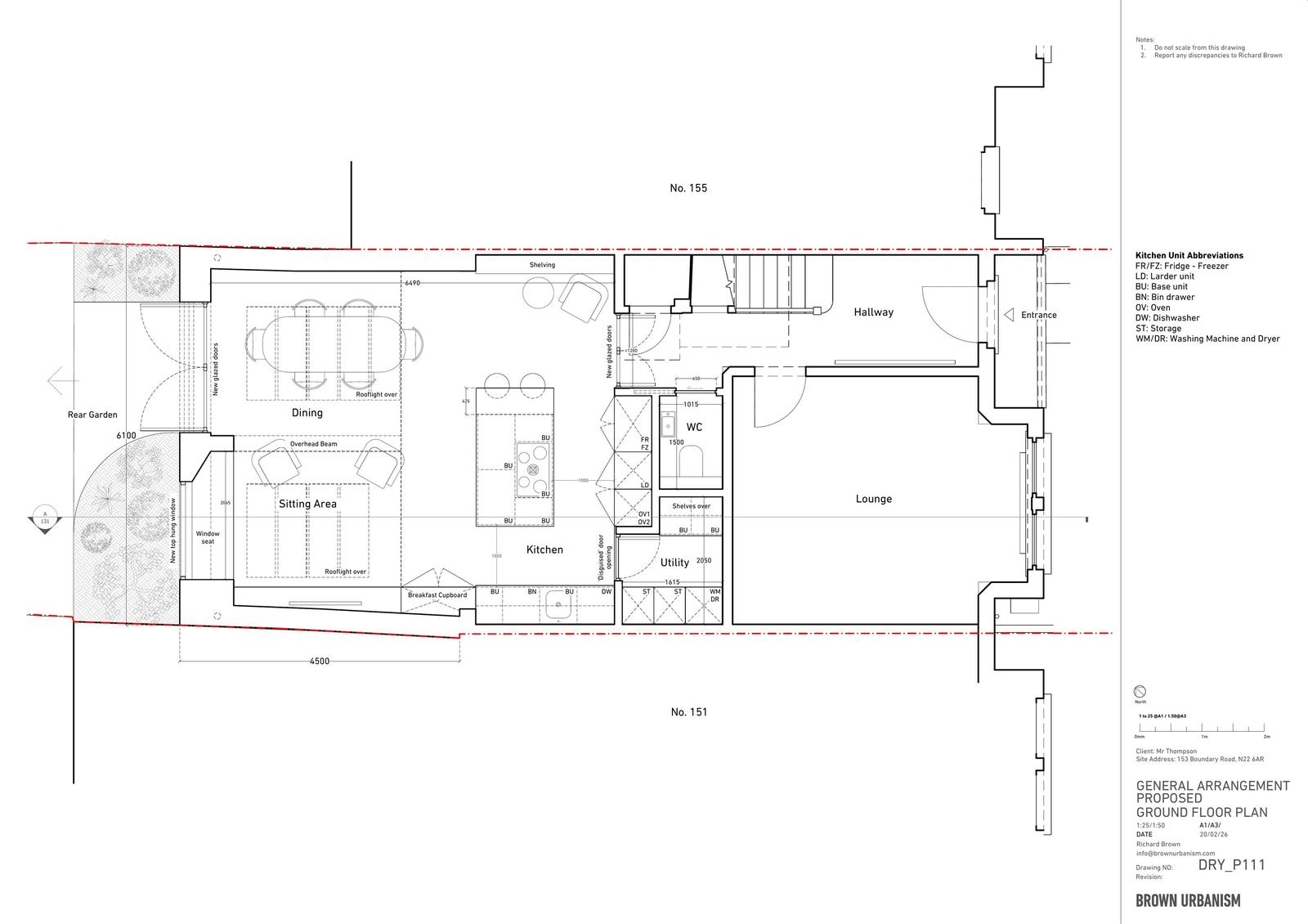
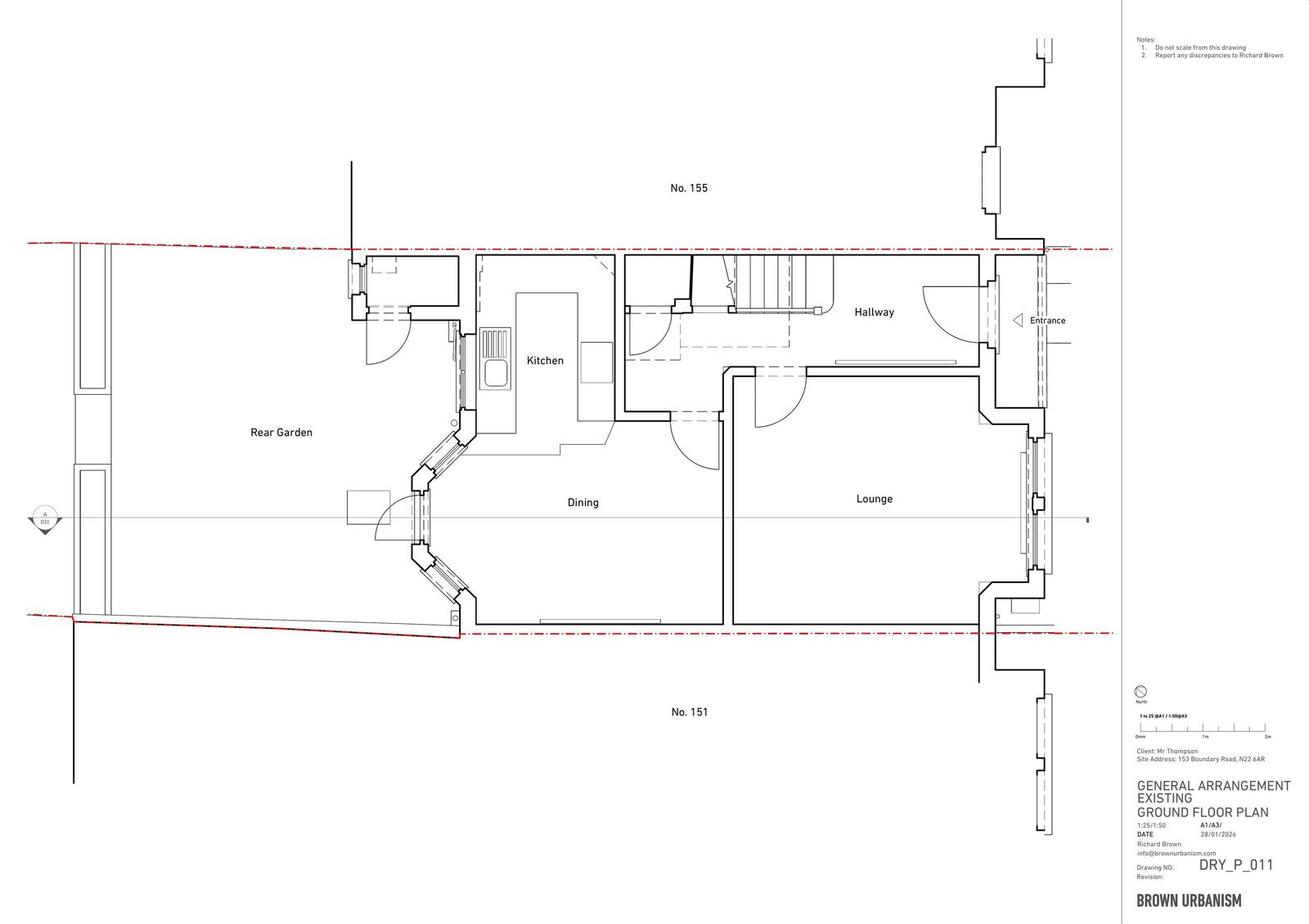
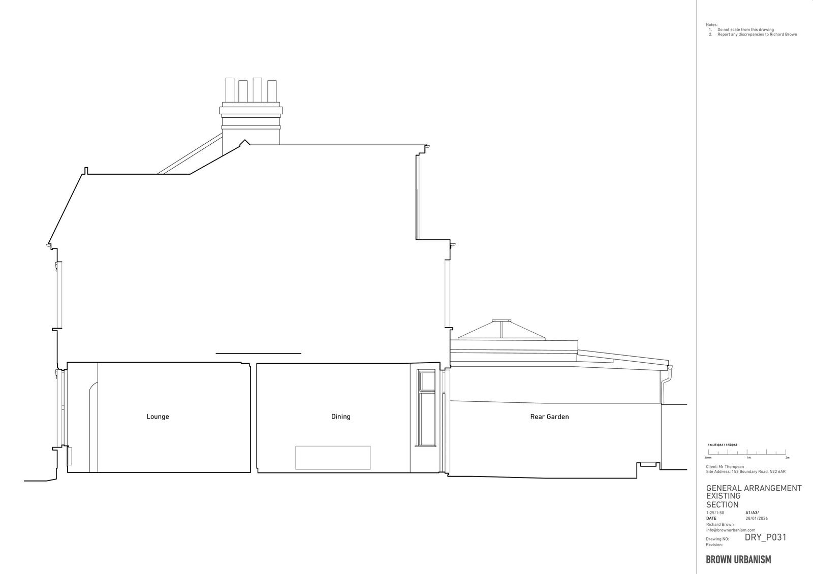
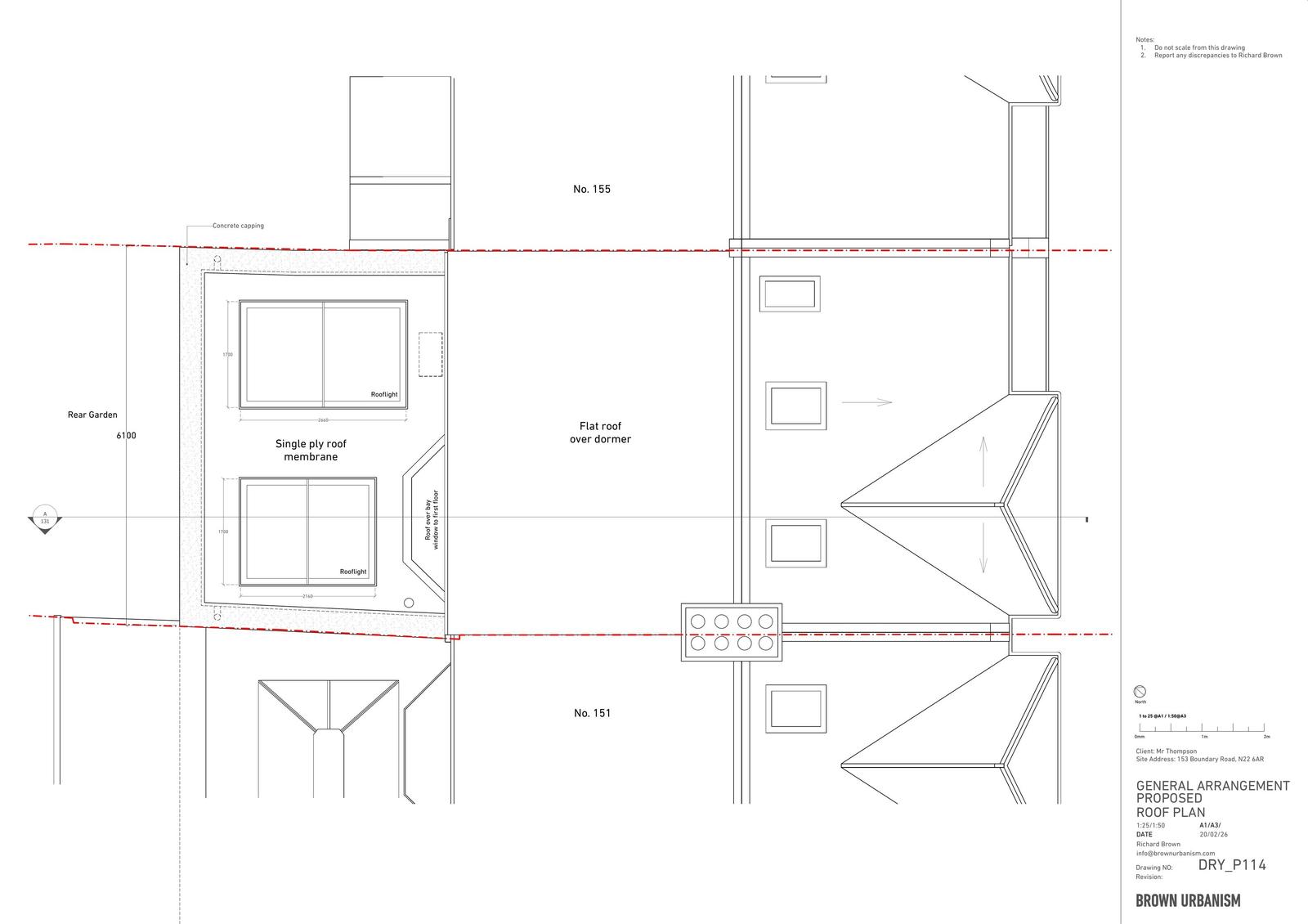
Application Reference HGY/2026/0668 Proposal Erection of single storey extension which extends beyond the rear wall of the original house by 4.5m, for which the maximum height would be 3m and for which the height of the eaves would be 3m Application Status Under Consultation Site Address 153 Boundary Road Tottenham London N22 6AR Date Valid 10/3/2026 Decision Decision Notice Sent Date

Documents

Uncategorised
Archived · Original link
Uncategorised
Archived · Original link
Uncategorised
Archived · Original link
Uncategorised
Archived · Original link
Uncategorised
Archived · Original link
Uncategorised
Archived · Original link
Uncategorised
Archived · Original link
Uncategorised
Archived · Original link
Uncategorised
Archived · Original link
Uncategorised
Archived · Original link
Uncategorised
Archived · Original link

Have your say

Your comment matters. Councils must consider every representation that raises material planning considerations.

Write a comment