HW/FUL/25/00223
Harlow Council
Status
Unknown
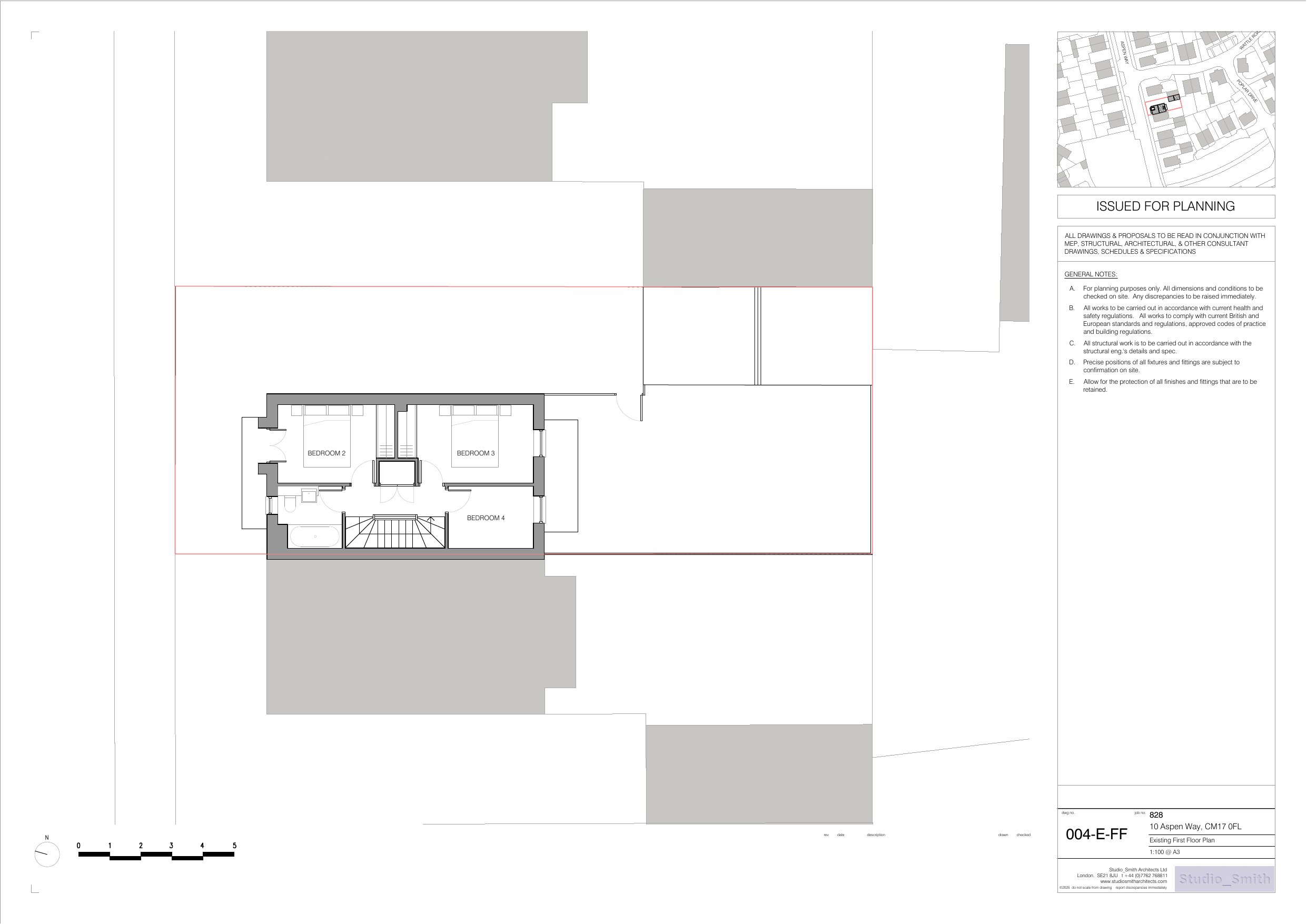
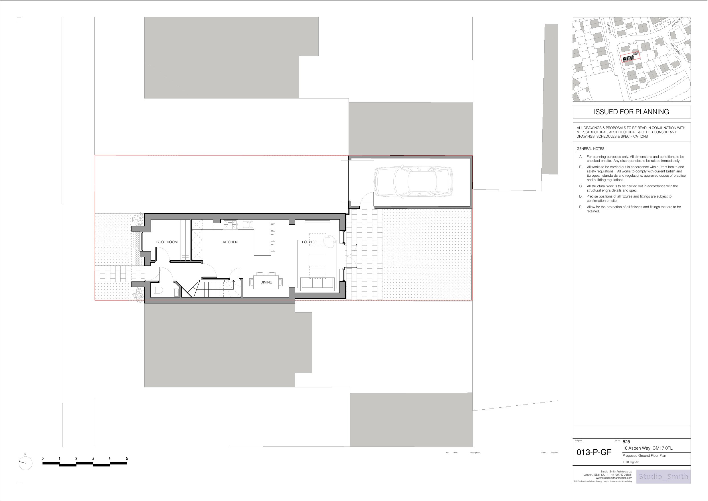
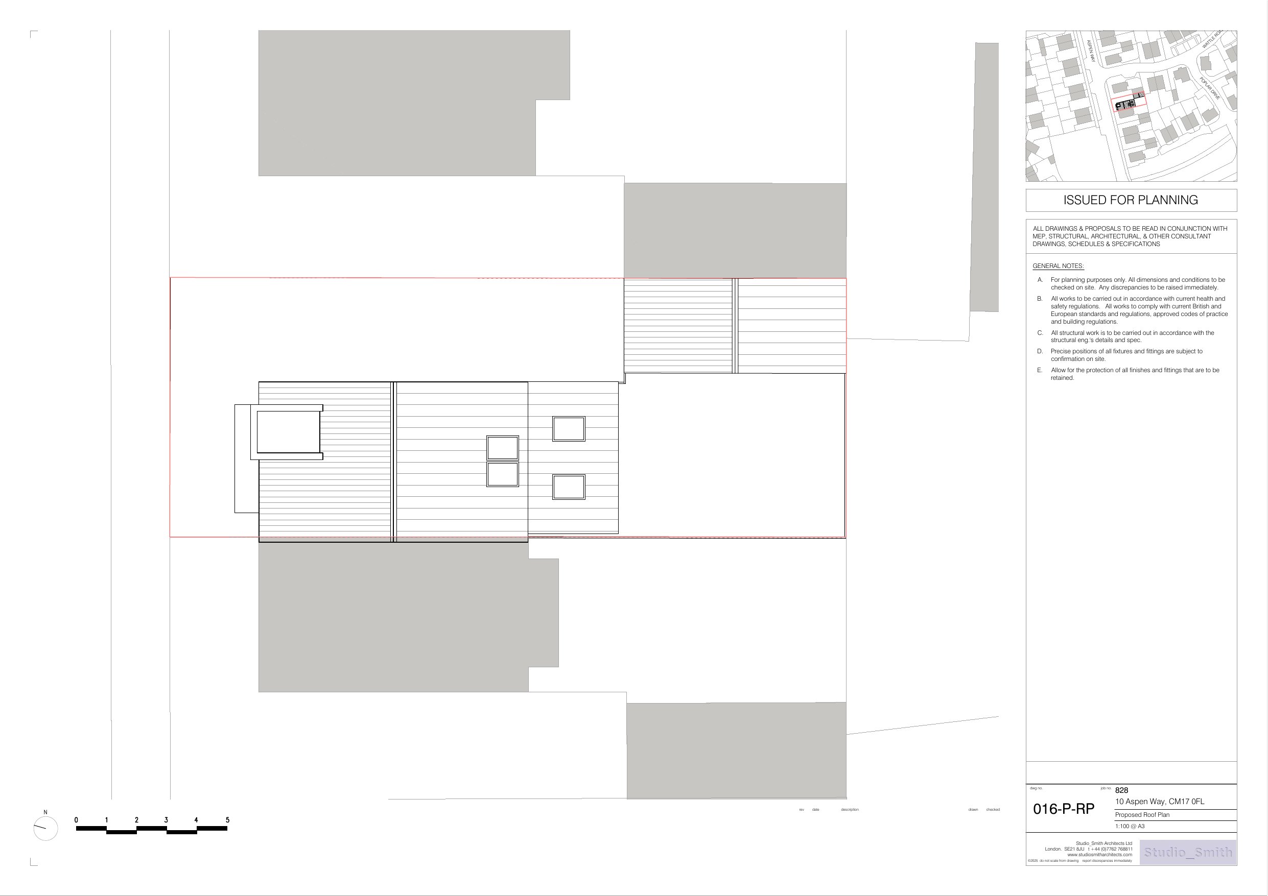
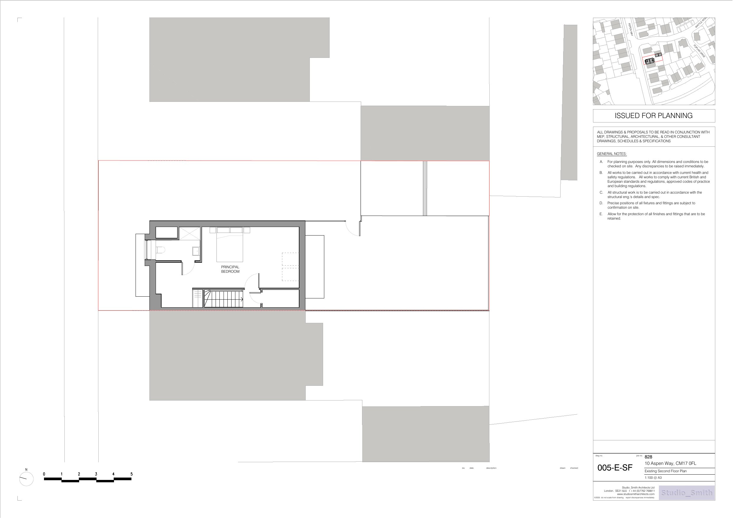
House extension
Received
26 May 2025
New homes
0
Full proposal
Erection of single storey rear extension and removal of existing bay style rear extension
Documents
Have your say
Your comment matters. Councils must consider every representation that raises material planning considerations.