← Harlow Council

Status

Unknown House extension
Received
29 May 2025
New homes
0

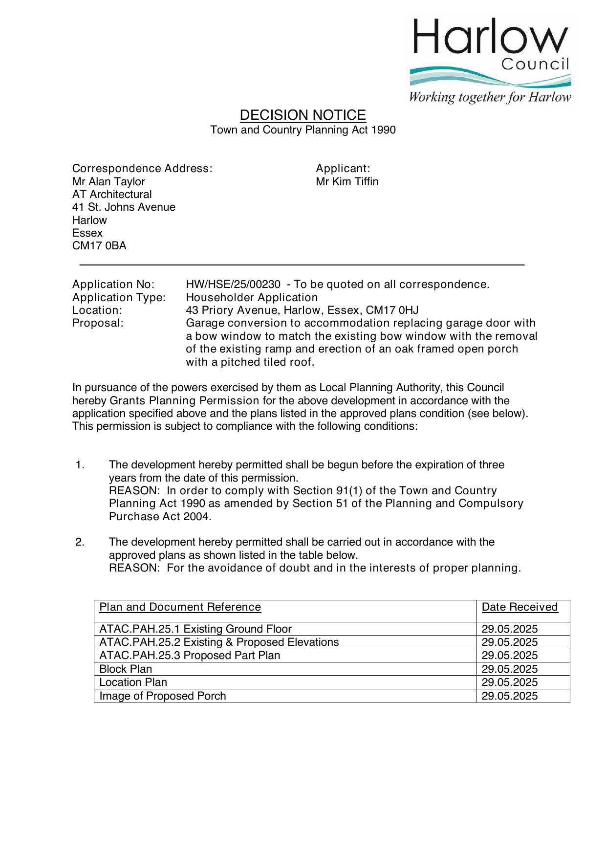
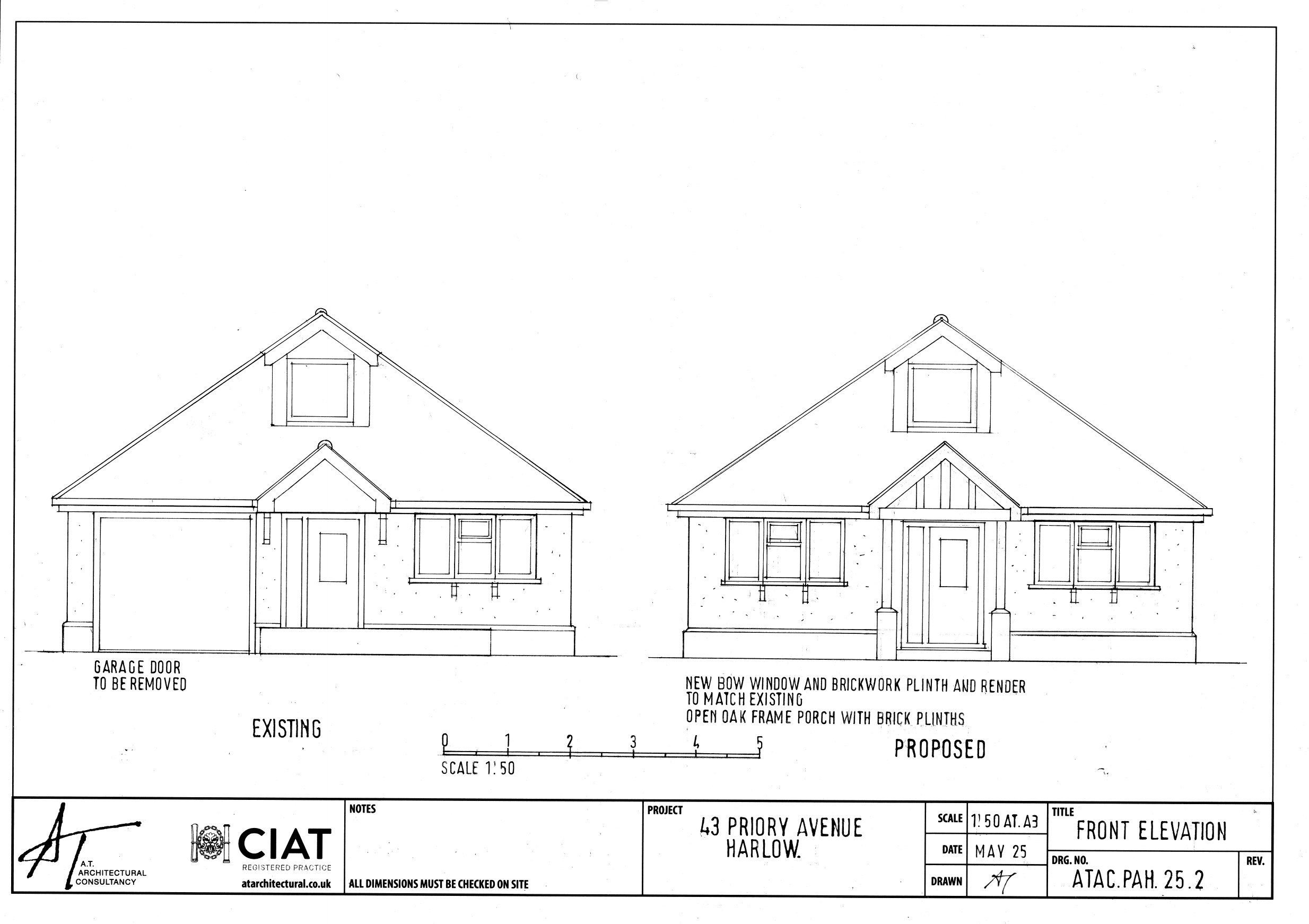
Full proposal

Garage conversion to accommodation replacing garage door with a bow window to match the existing bow window with the removal of the existing ramp and erection of an oak framed open porch with a pitched tiled roof.

Documents

Application Form Redacted
Archived · Original link
Drawing
Archived · Original link
Decision Notice
Archived · Original link
Drawing
Archived · Original link
Drawing
Archived · Original link
Officer Report
Archived · Original link
PHOTOGRAPHIC IMAGE OF PROPOSED PORCH
Photographic Images
Not yet archived · Original link
Photographic Images
Archived · Original link
Drawing
Archived · Original link

Have your say

Your comment matters. Councils must consider every representation that raises material planning considerations.

Write a comment