← Harlow Council

Status

Unknown House extension
Received
29 May 2025
New homes
0

Full proposal

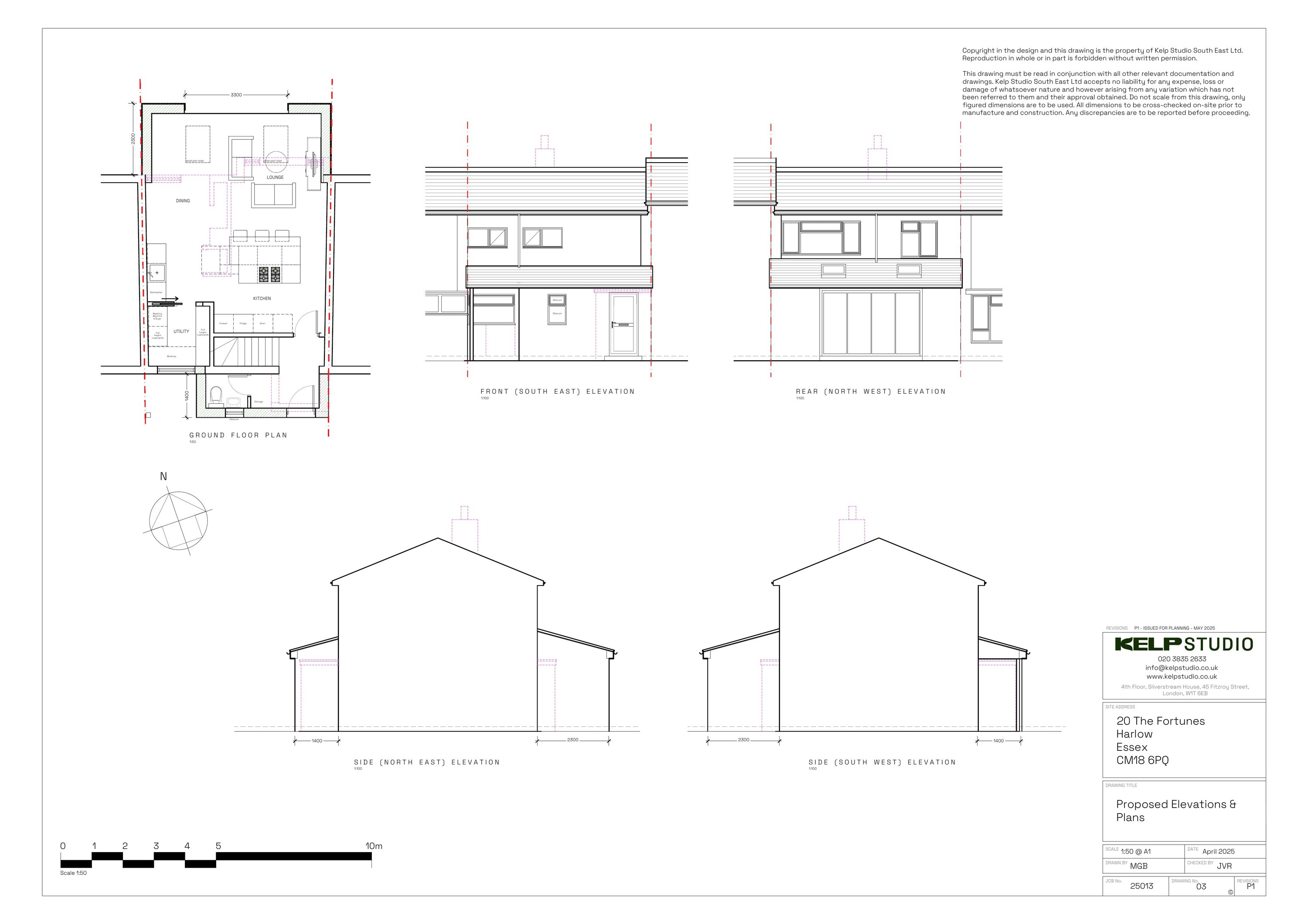
Demolition of existing porch, rear bay window & chimney stack full height. Proposal for new single storey front and rear extensions, both with pitched roofs

Documents

Application Form Redacted
Archived · Original link
Decision Notice
Archived · Original link
Drawing
Archived · Original link
Officer Report
Archived · Original link

Have your say

Your comment matters. Councils must consider every representation that raises material planning considerations.

Write a comment