HW/HSE/26/00004
Harlow Council
Status
Unknown
House extension
Received
08 Jan 2026
New homes
0
Full proposal
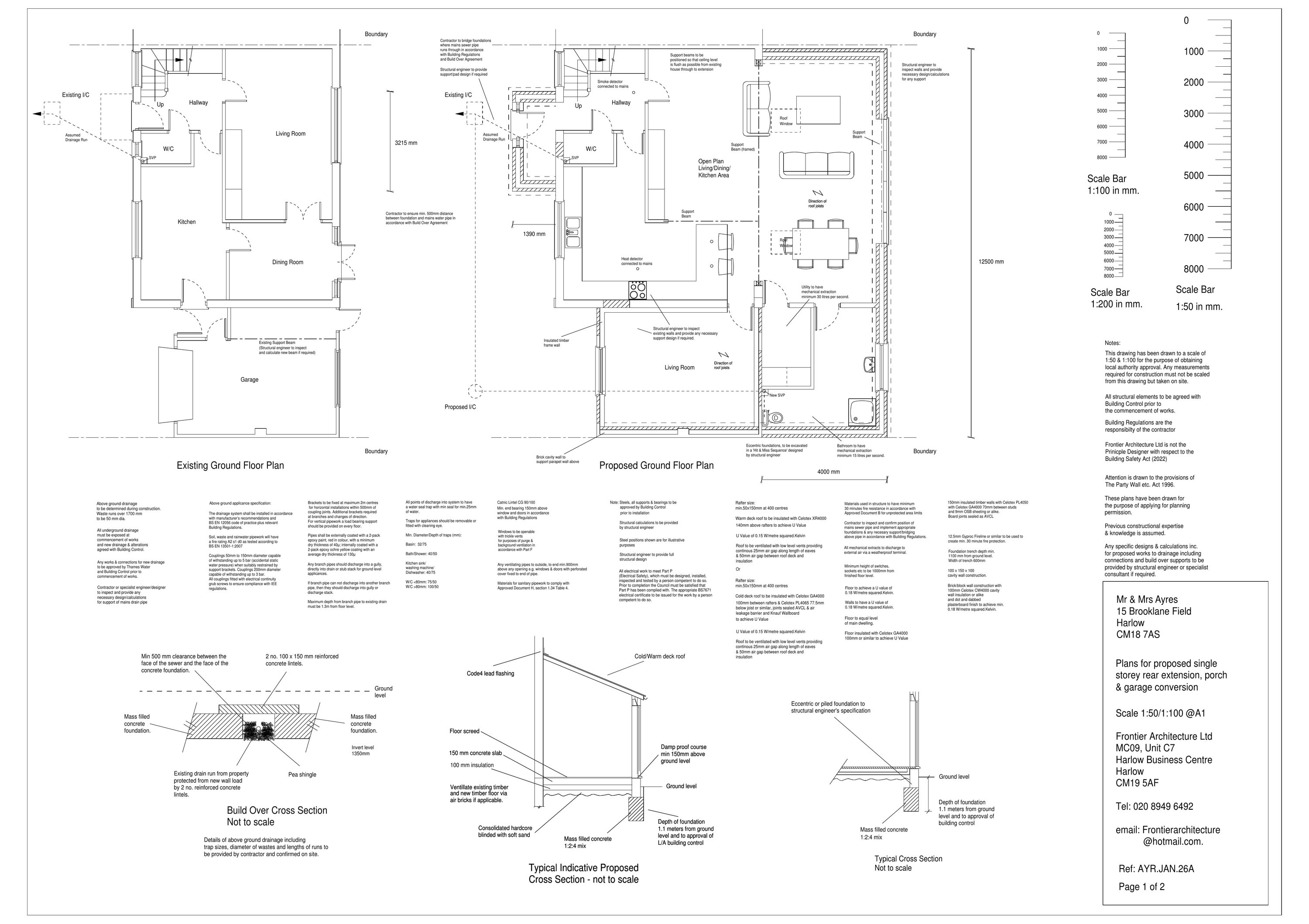
Construction of a single storey rear extension, front porch and garage conversion
Documents
Have your say
Your comment matters. Councils must consider every representation that raises material planning considerations.