HW/HSE/26/00018
Harlow Council
Status
Unknown
House extension
Received
20 Jan 2026
New homes
0
Full proposal
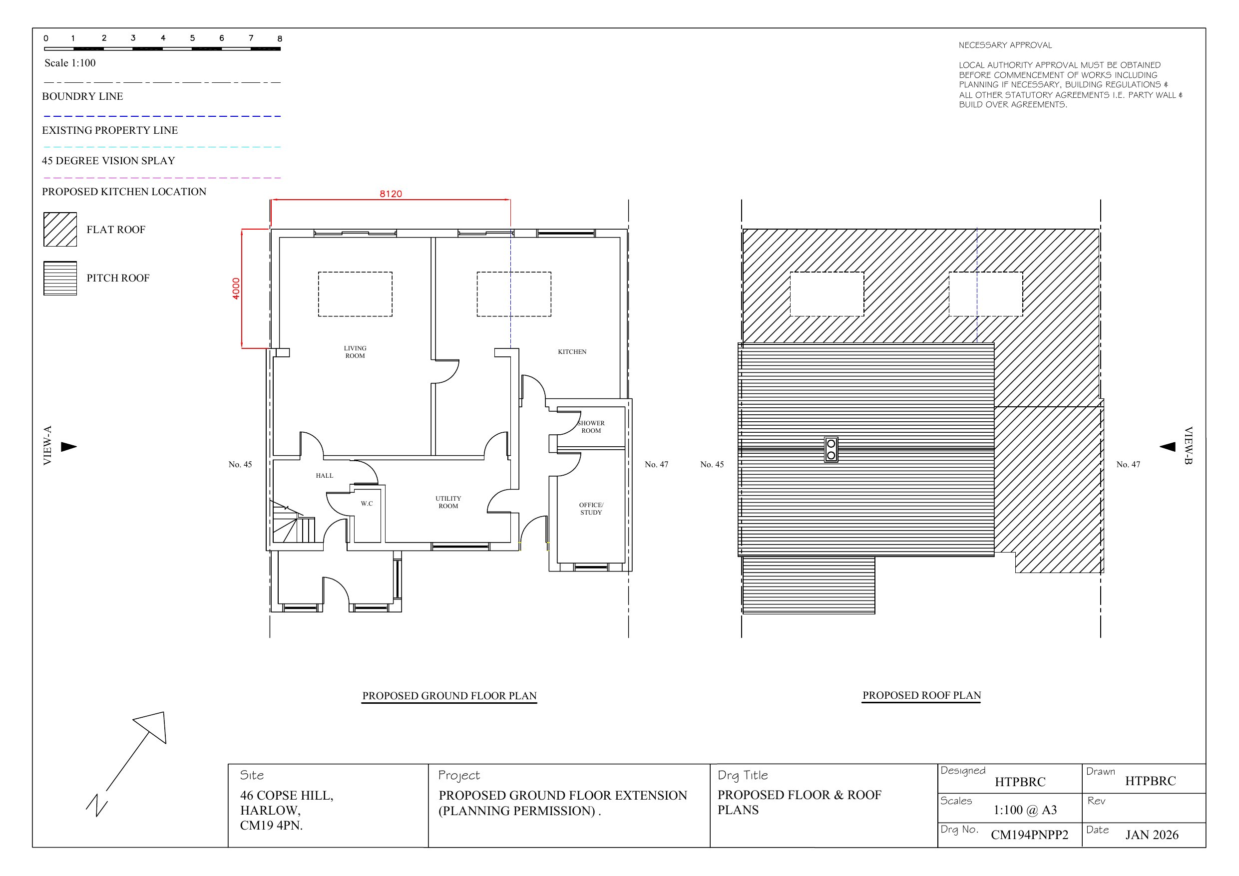
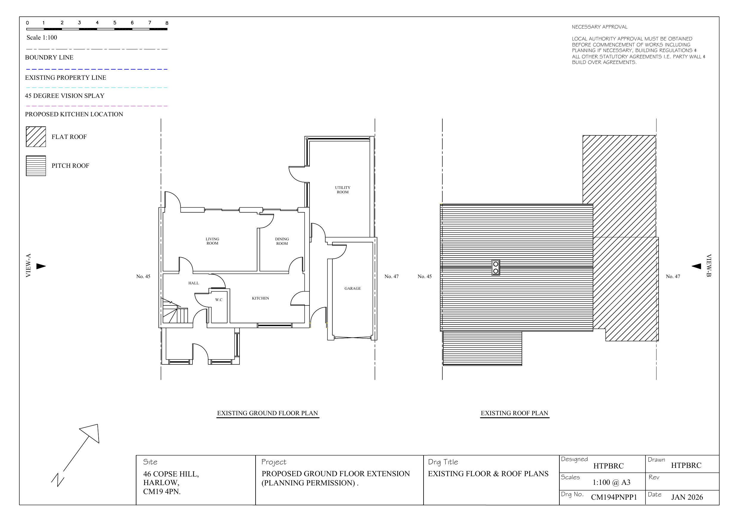
Construction of a ground floor rear extension & garage conversion
Documents
Have your say
Your comment matters. Councils must consider every representation that raises material planning considerations.