HW/HSE/26/00019
Harlow Council
Status
Unknown
House extension
Received
20 Jan 2026
New homes
0
Full proposal
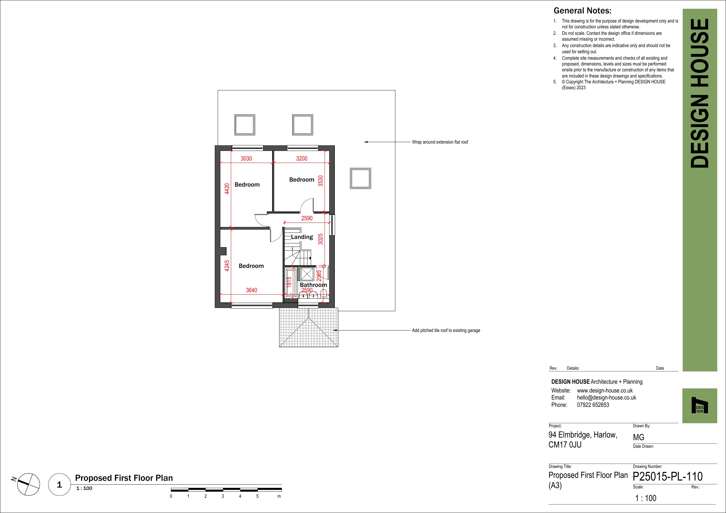
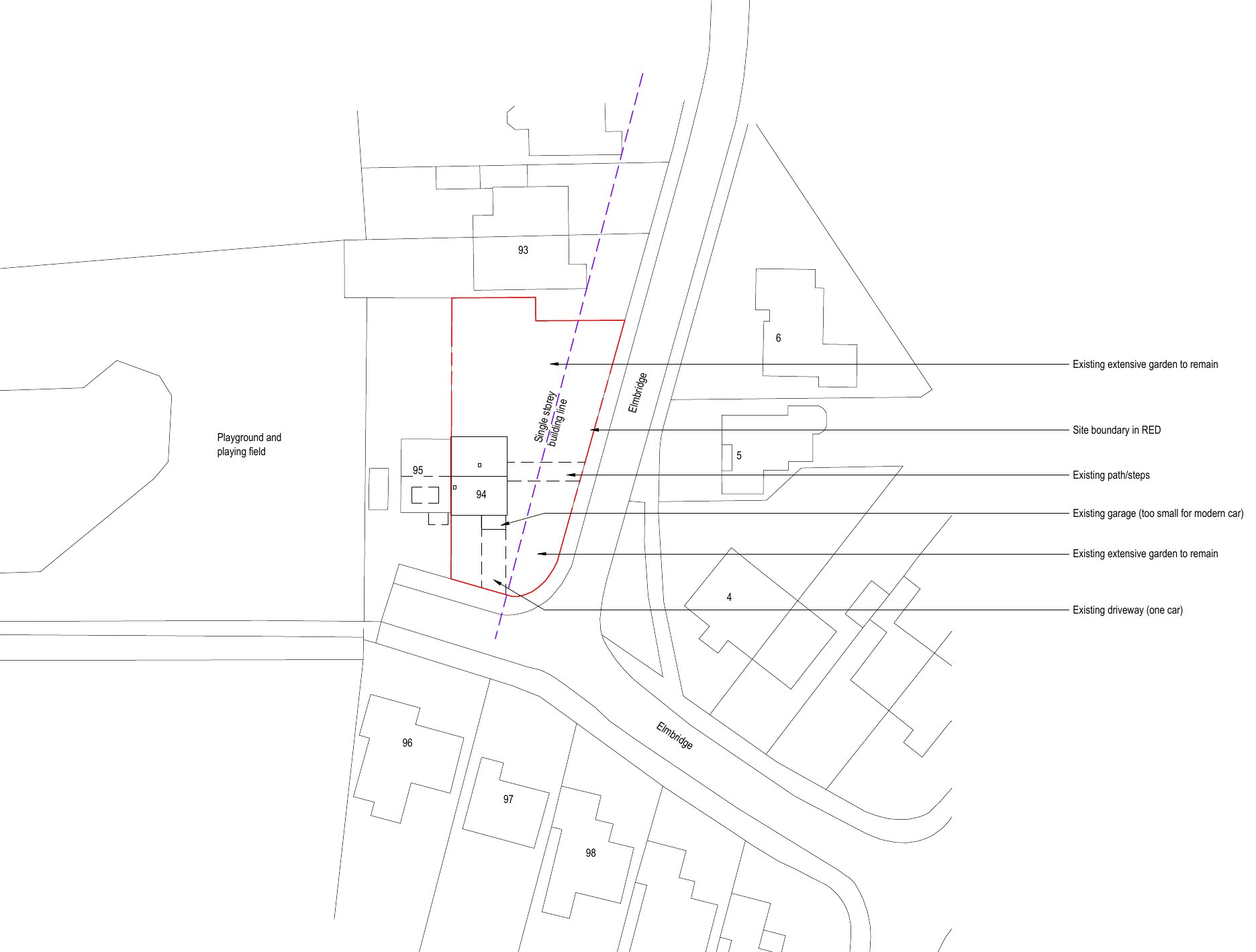
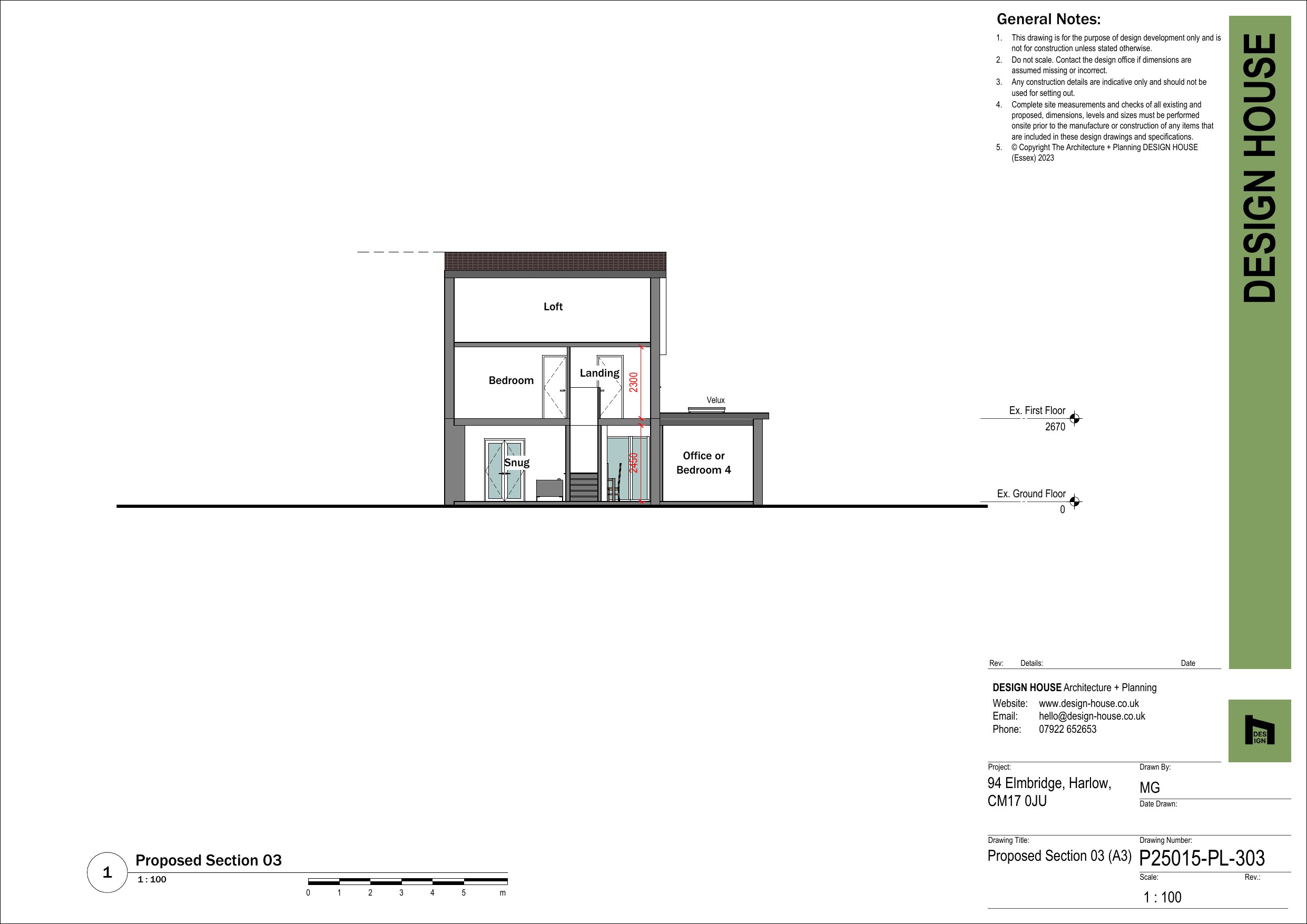
Construction of a single storey rear and side extension with proposed garage conversion. Chimney removal. New porch roof and fenestration alterations.
Documents
Have your say
Your comment matters. Councils must consider every representation that raises material planning considerations.