HW/HSE/26/00020
Harlow Council
Status
Unknown
House extension
Received
21 Jan 2026
New homes
0
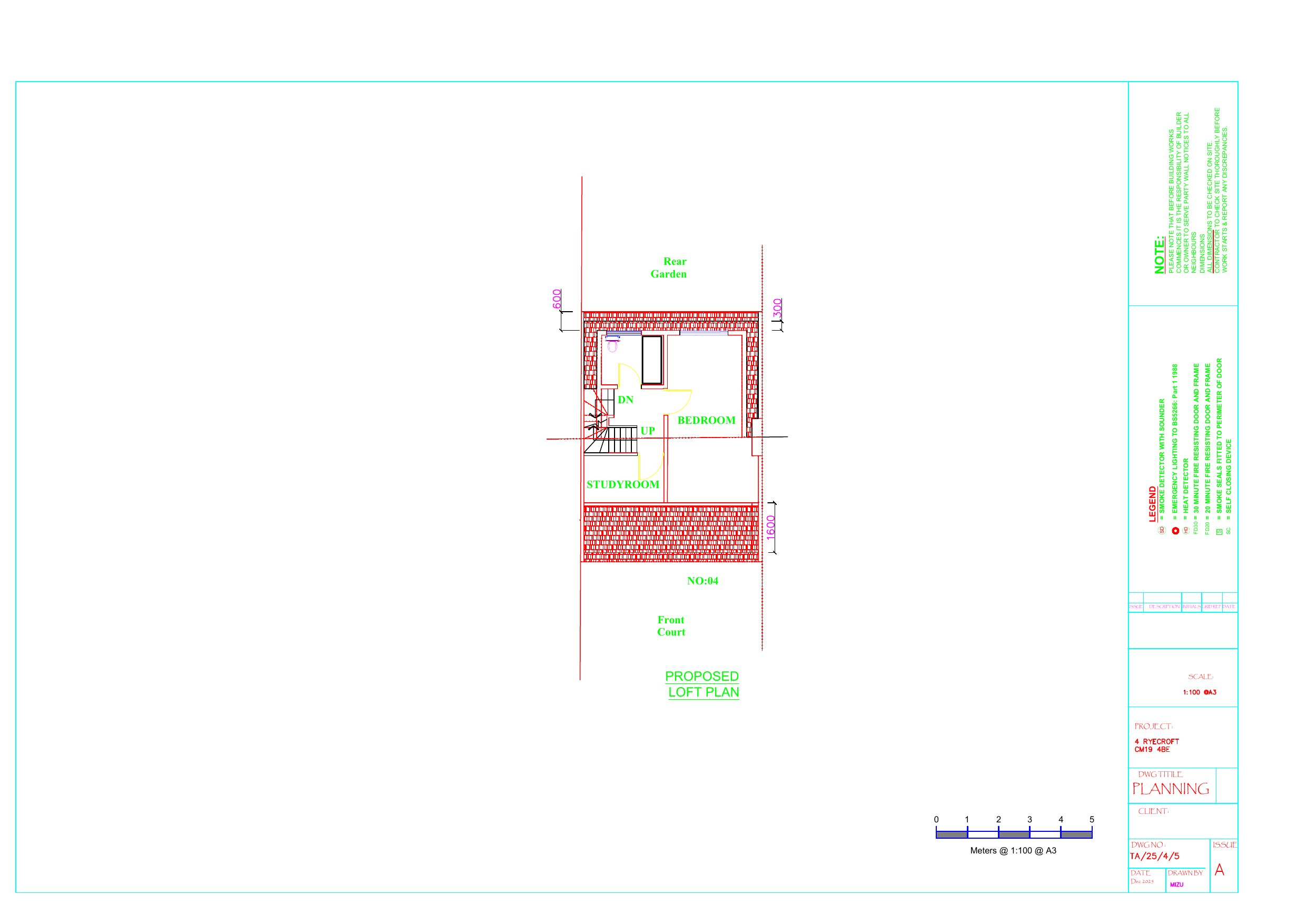
Full proposal
Proposed loft conversion with rear dormer & enlargement of the hallway flush with front elevation.
Documents
Have your say
Your comment matters. Councils must consider every representation that raises material planning considerations.