HW/LDCP/26/00008
Harlow Council
Status
Unknown
House extension
Received
13 Jan 2026
New homes
0
Full proposal
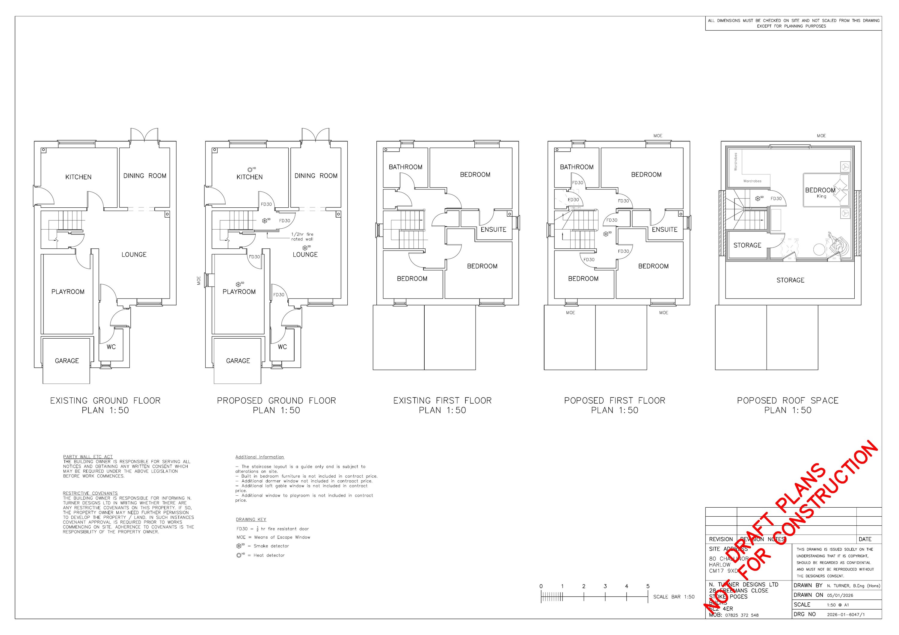
Proposed loft conversion with partial hip-to-gable enlargements, rear dormer and front facing roof lights
Documents
Have your say
Your comment matters. Councils must consider every representation that raises material planning considerations.