HW/PALHE/26/00102
Harlow Council
Status
Unknown
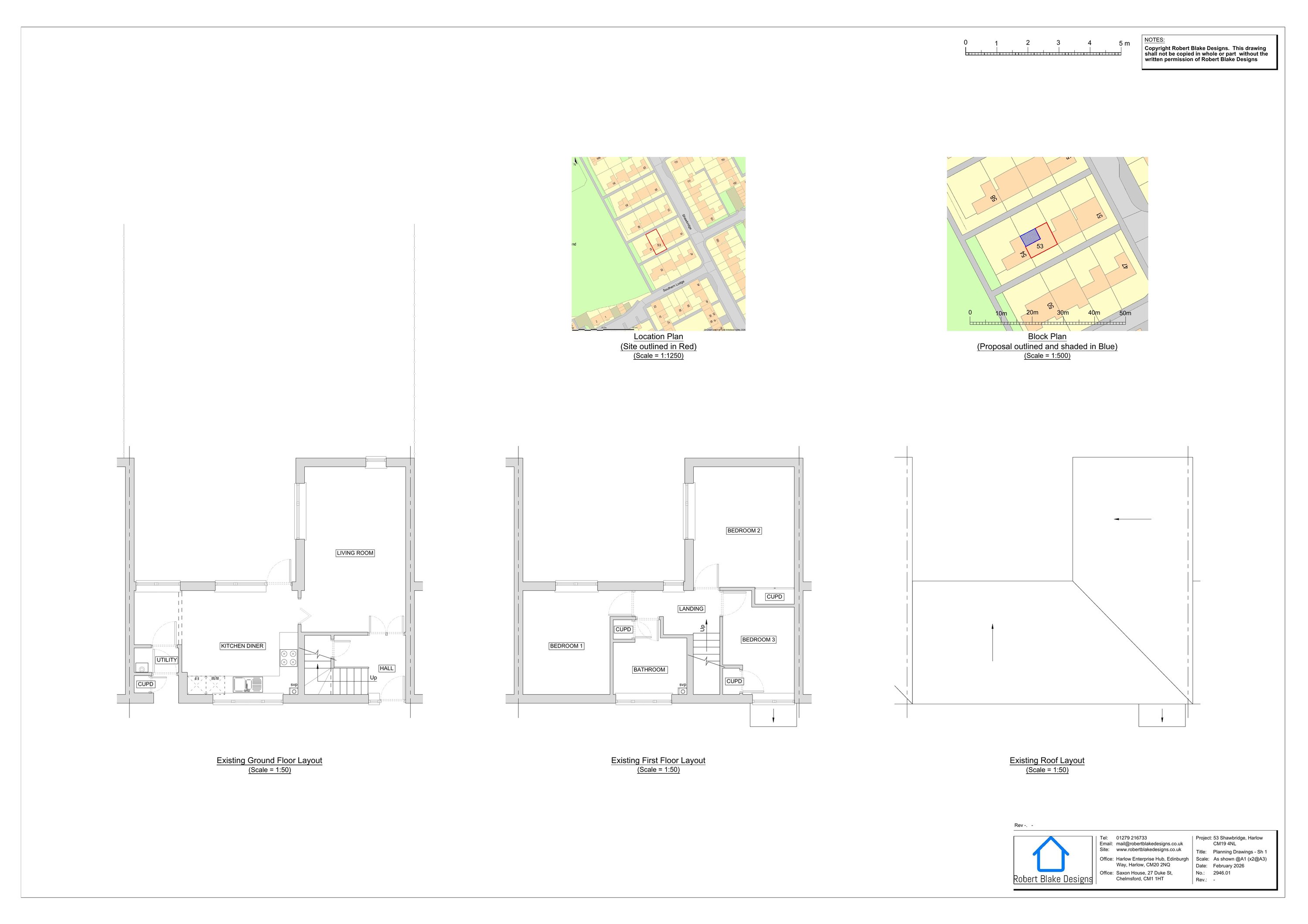
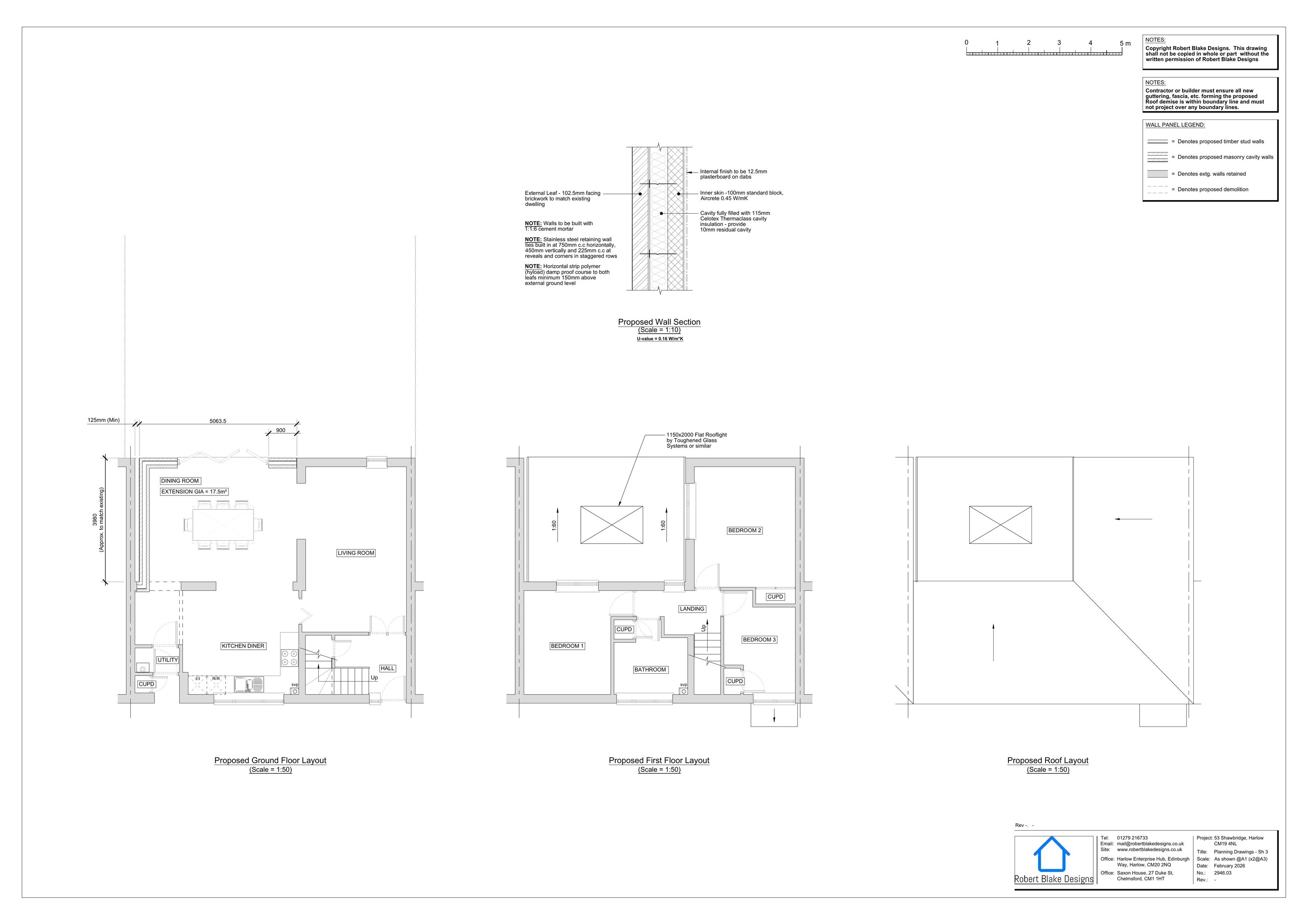
House extension
Received
26 days ago
New homes
0
Full proposal
Construction of a single storey rear extension
Documents
Have your say
Your comment matters. Councils must consider every representation that raises material planning considerations.