← Hart District Council

Status

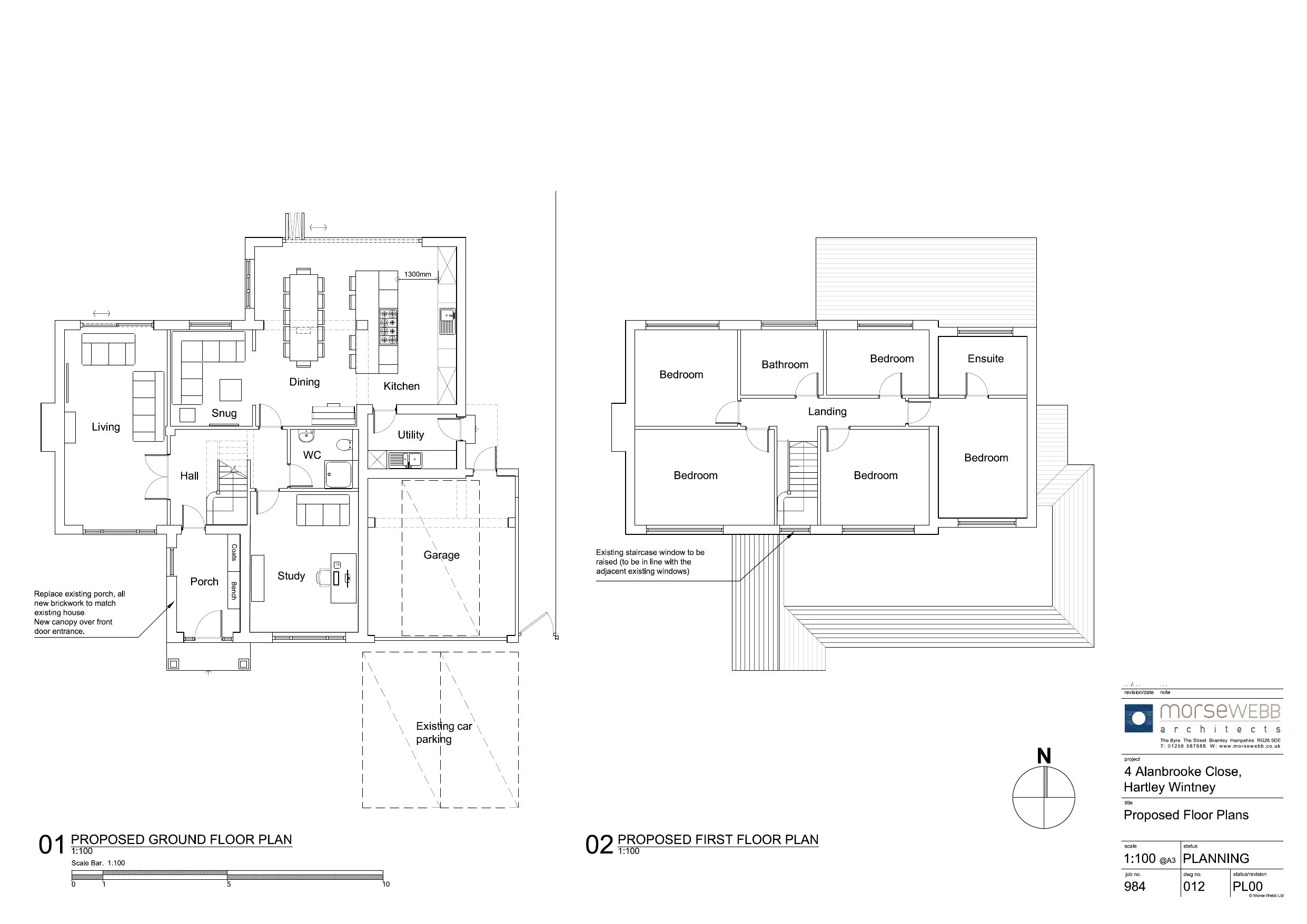
Grant House extension
Received
03 Sep 2024
New homes
0

Full proposal

Erection of a single storey front extension, replace the flat roof over the front porch, garage and dining room with a pitched roof, installation of a canopy over the side door. Raise the existing staircase window to align with adjacent windows.

Documents

. EXECUTIVE CLERK HARTLEY WINTNEY PARISH COUNCIL
Consultee Comment
Not yet archived · Original link
APPLICATIONFORMREDACTED
Application Form
Not yet archived · Original link
Decision
Decision
Not yet archived · Original link
ECOLOGY OFFICER
Consultee Comment
Not yet archived · Original link
EXISTING ELEVATIONS
Plans
Not yet archived · Original link
EXISTING FLOOR PLANS
Plans
Not yet archived · Original link
EXISTING ROOF PLAN
Plans
Not yet archived · Original link
Plans
Archived · Original link
LOCATION PLAN AND EXISTING BLOCK PLAN
Plans
Not yet archived · Original link
NEIGHBOUR LETTER
Correspondence
Not yet archived · Original link
PRELIMINARY ROOST ASSESSMENT
Bat Survey
Not yet archived · Original link
PROPOSED BLOCK PLAN
Block Plan
Not yet archived · Original link
PROPOSED ELEVATIONS
Plans
Not yet archived · Original link
PROPOSED ROOF PLAN
Plans
Not yet archived · Original link
Plans
Archived · Original link
Report
Report
Not yet archived · Original link

Have your say

Your comment matters. Councils must consider every representation that raises material planning considerations.

Write a comment