← Hart District Council

Status

Grant Change of use
Received
20 Sep 2024
New homes
0

Full proposal

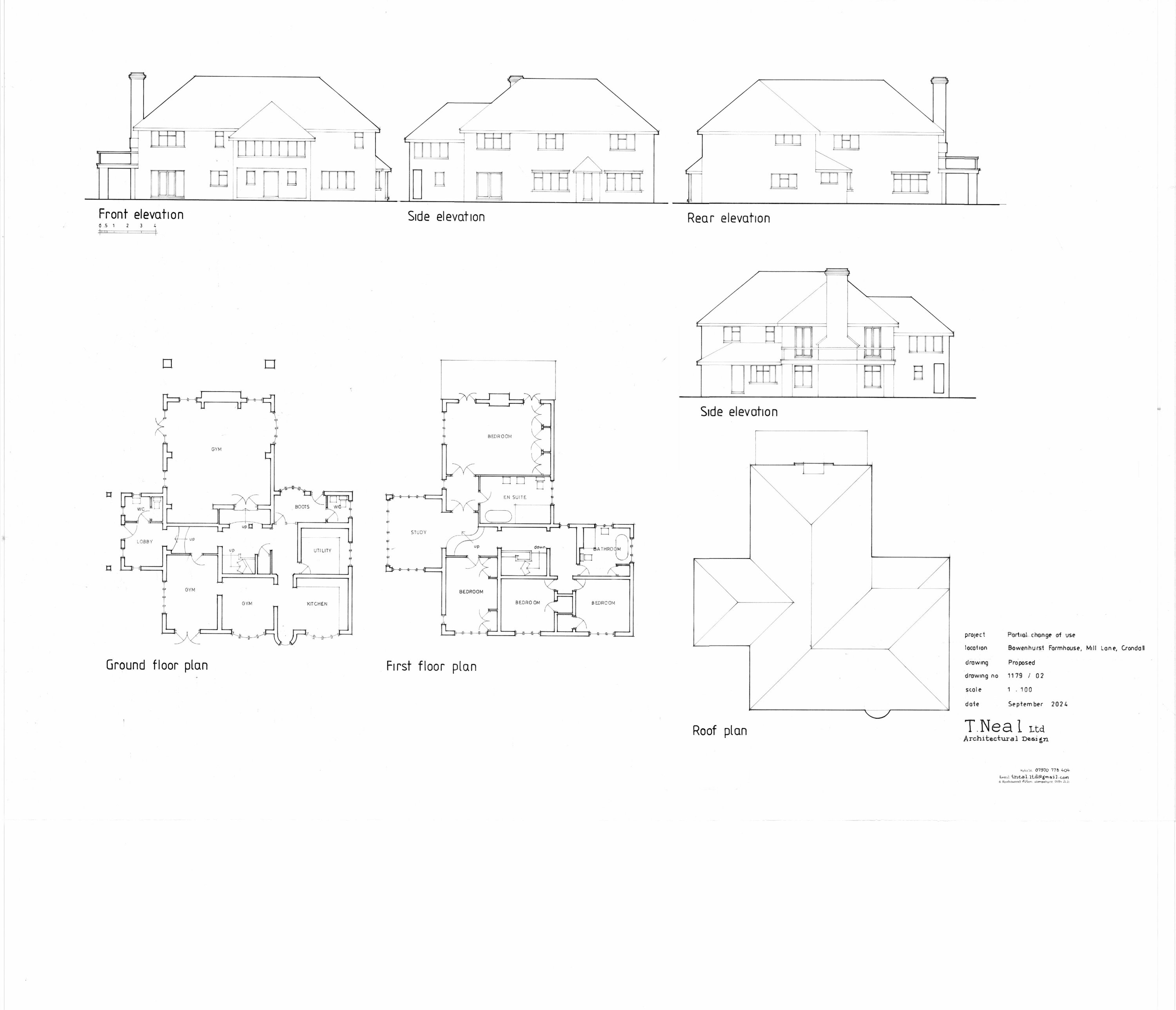
Change of use from a single dwelling Use Class C3 (residential) to a mixed use comprising Use Class C3 (residential) and Use Class E (gymnasium)

Documents

. CLERK CRONDALL PARISH COUNCIL
Consultee Comment
Not yet archived · Original link
. JOINT WASTE CLIENT TEAM
Consultee Comment
Not yet archived · Original link
APPLICATIONFORMREDACTED
Application Form
Not yet archived · Original link
COVERING LETTER
Superseded Drawing
Not yet archived · Original link
COVERING LETTER REVISED
Correspondence
Not yet archived · Original link
Decision
Decision
Not yet archived · Original link
ENVIRONMENTAL HEALTH OFFICER
Consultee Comment
Not yet archived · Original link
ENVIRONMENTAL HEALTH OFFICER
Consultee Comment
Not yet archived · Original link
EXISTING PLANS AND ELEVATIONS REVISED
Plans
Not yet archived · Original link
Block Plan
Archived · Original link
HAMPSHIRE COUNTY COUNCIL (HIGHWAYS)
Consultee Comment
Not yet archived · Original link
Location Plan
Location Plan
Not yet archived · Original link
NEIGHBOUR LETTER
Correspondence
Not yet archived · Original link
Superseded Drawing
Archived · Original link
Block Plan
Archived · Original link
PROPOSED WITH GYM AREA HATCHED
Revised Drawing
Not yet archived · Original link
Report
Report
Not yet archived · Original link
VALIDATION EMAIL
Correspondence
Not yet archived · Original link

Have your say

Your comment matters. Councils must consider every representation that raises material planning considerations.

Write a comment