← Hart District Council

Status

Grant House extension
Received
04 Dec 2024
New homes
0

Full proposal

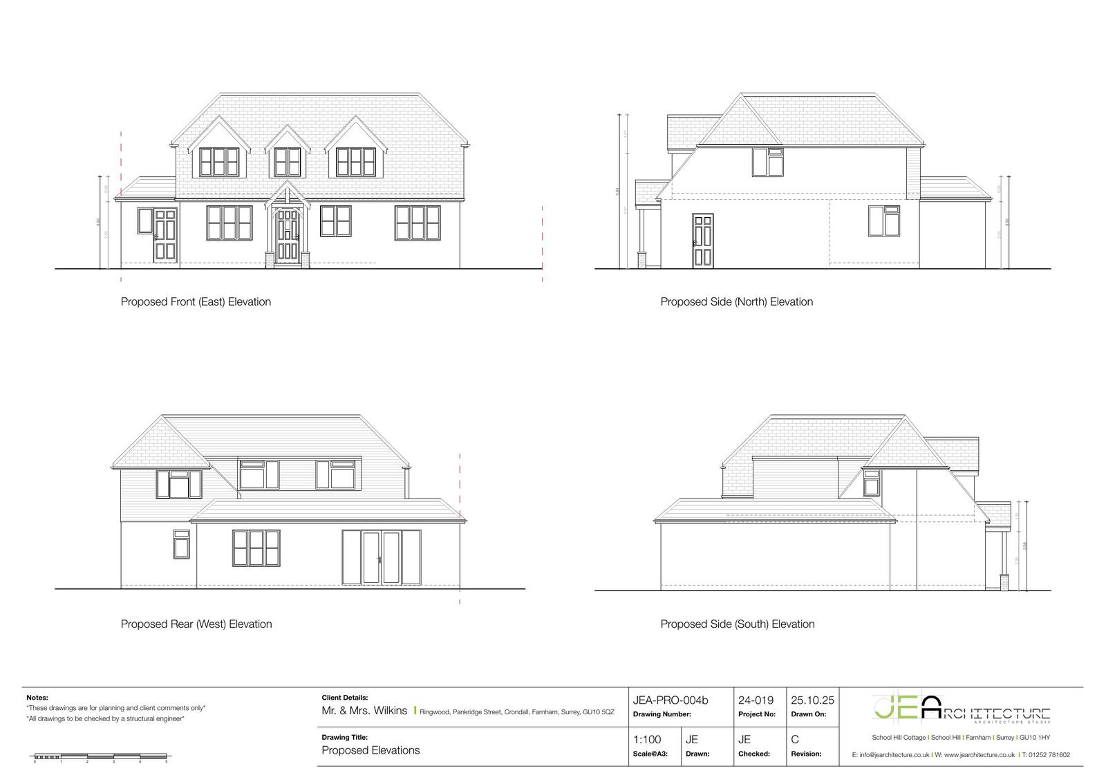
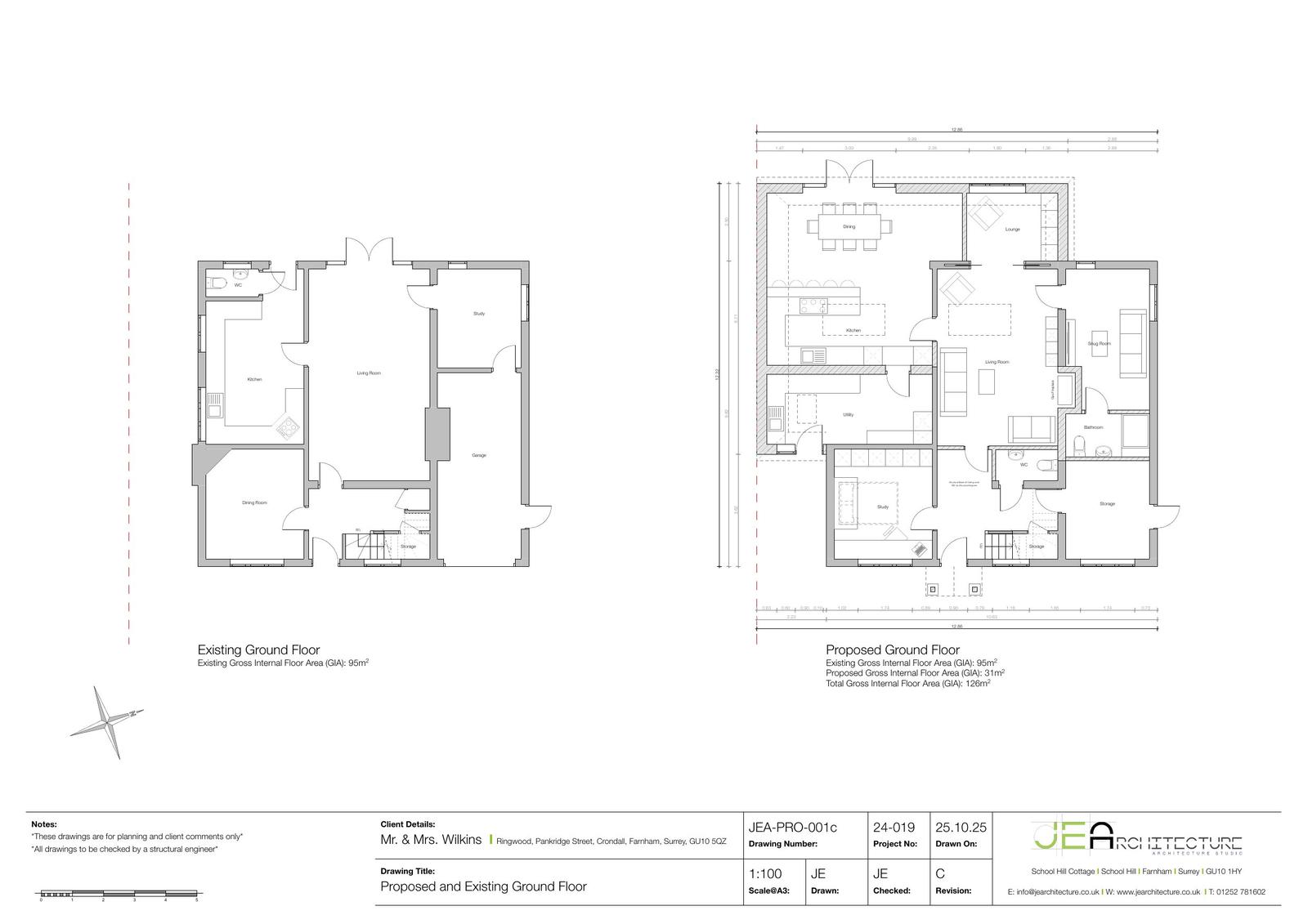
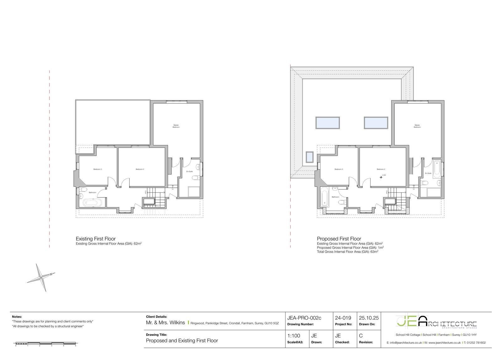
Erection of a single storey rear and side extension, insertion of dormer windows to front roof slope, conversion of garage and alterations to windows and doors.

Documents

Consultee Comment
Archived · Original link
Application Form
Archived · Original link
Bat Survey
Archived · Original link
Consultee Comment
Archived · Original link
Decision
Archived · Original link
Consultee Comment
Archived · Original link
EOT
Correspondence
Archived · Original link
EOT
Correspondence
Archived · Original link
Report
Archived · Original link
Correspondence
Archived · Original link
Report
Archived · Original link
Correspondence
Archived · Original link

Have your say

Your comment matters. Councils must consider every representation that raises material planning considerations.

Write a comment