← Hart District Council

Status

Grant House extension
Received
19 May 2025
New homes
0

Full proposal

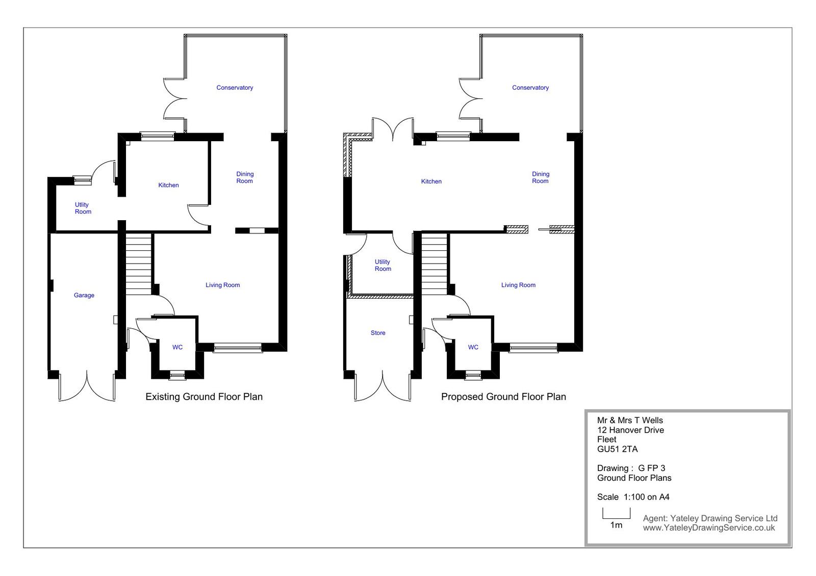
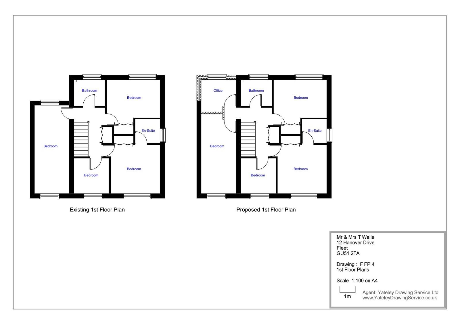
Erection of a two storey rear extension, conversion of garage to habitable accommodation and insertion of door to ground floor side

Documents

Consultee Comment
Archived · Original link
Application Form
Archived · Original link
Consultee Comment
Archived · Original link
Consultee Comment
Archived · Original link
Correspondence
Archived · Original link
Decision
Archived · Original link
Plans
Archived · Original link
Plans
Archived · Original link
Location Plan
Archived · Original link
Correspondence
Archived · Original link
Plans
Archived · Original link
Plans
Archived · Original link
Report
Archived · Original link
Plans
Archived · Original link
Block Plan
Archived · Original link

Have your say

Your comment matters. Councils must consider every representation that raises material planning considerations.

Write a comment