← Hart District Council

Status

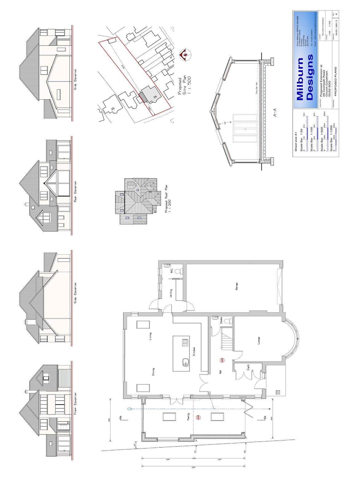
Grant House extension
Received
27 May 2025
New homes
0

Full proposal

Erection of a single storey side extension to form family room.

Documents

Application Form
Archived · Original link
Decision
Archived · Original link
Plans
Archived · Original link
Consultee Comment
Archived · Original link
Correspondence
Archived · Original link
Plans
Archived · Original link
Report
Archived · Original link

Have your say

Your comment matters. Councils must consider every representation that raises material planning considerations.

Write a comment