← Hart District Council

Status

Grant Demolition
Received
08 Jul 2025
New homes
0

Full proposal

Demolition of existing dwelling and erection of a replacement dwelling, landscaping and associated works

Documents

---------------
---------------
Not yet archived · Original link
. HOOK PARISH COUNCIL
Consultee Comment
Not yet archived · Original link
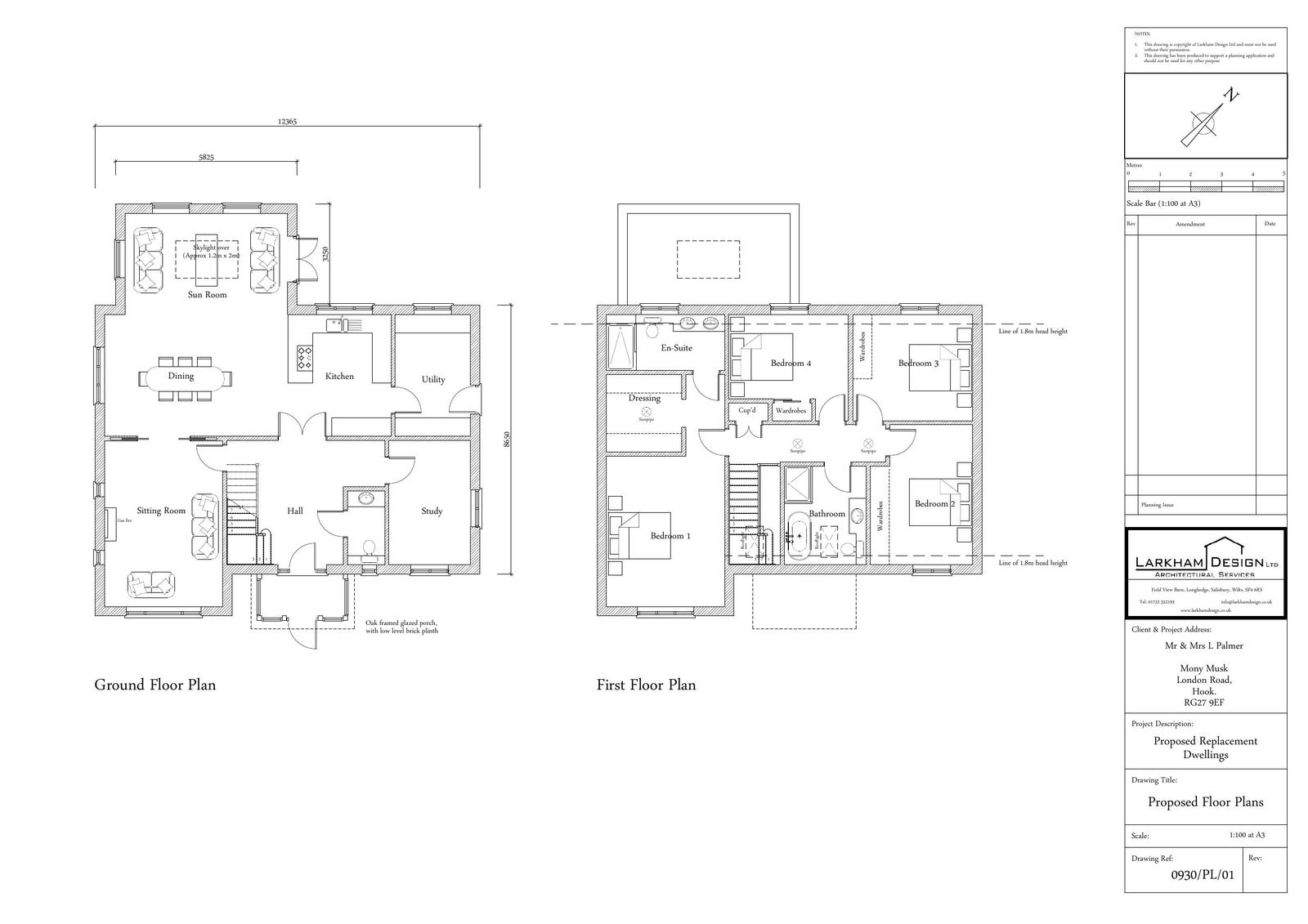
930-EX-02 - EXISTING PLAN AND ELEVATIONS
Plans
Not yet archived · Original link
930-PL-02 - PROPOSED ELEVATIONS
Plans
Not yet archived · Original link
AGENT CORRESPONDENCE
Correspondence
Not yet archived · Original link
APPLICATIONFORMREDACTED
Application Form
Not yet archived · Original link
ARBORICULTURAL IMPACT APPRAISAL AND METHOD STATEMENT
Tree Survey / Arboricultural Assessment
Not yet archived · Original link
BAT REPORT 04.07.25
Bat Survey
Not yet archived · Original link
BIODIVERSITY OFFICER
Consultee Comment
Not yet archived · Original link
Decision
Decision
Not yet archived · Original link
EXISTING DRAINAGE
Plans
Not yet archived · Original link
HAMPSHIRE COUNTY COUNCIL (HIGHWAYS)
Consultee Comment
Not yet archived · Original link
MAIN DRAINAGE CONNECTION
Plans
Not yet archived · Original link
MR COLIN CUMNER-SUPPORTS(FULL)
Support Comment
Not yet archived · Original link
MR MARK WATTERSON-OBJECTS(FULL)
Objection Comment
Not yet archived · Original link
MR T WILLIAMSON-SUPPORTS(FULL)
Support Comment
Not yet archived · Original link
MRS IRIS HARDY-SUPPORTS(FULL)
Support Comment
Not yet archived · Original link
MRS LISA MISSION-OBJECTS(FULL)
Objection Comment
Not yet archived · Original link
NEIGHBOUR LETTER
Correspondence
Not yet archived · Original link
PLANNING STATEMENT
Report
Not yet archived · Original link
SUSTAINABILITY STATEMENT
Report
Not yet archived · Original link
TREE PROTECTION PLAN THE MULBERRIES HOOK AUG2025 FINAL-TPP A2 LANDSCAPE
Tree Survey / Arboricultural Assessment
Not yet archived · Original link
VALIDATION E-MAIL
Correspondence
Not yet archived · Original link

Have your say

Your comment matters. Councils must consider every representation that raises material planning considerations.

Write a comment