← Hart District Council

Status

Grant New housing
Received
22 Jul 2025
New homes
3

Full proposal

Redevelopment of site to include demolition of two dwellings and erection of three dwellings

Documents

. DRAINAGE OFFICER-NEUTRAL(FULL)
General Comment
Not yet archived · Original link
. PARISH CLERK
Consultee Comment
Not yet archived · Original link
APPLICATIONFORMREDACTED
Application Form
Not yet archived · Original link
ARBORICULTURAL IMPACT ASSESSMENT
Tree Survey / Arboricultural Assessment
Not yet archived · Original link
BIODIVERSITY OFFICER
Consultee Comment
Not yet archived · Original link
BNG METRIC
Biodiversity Statement
Not yet archived · Original link
BNG REPORT PARFITTS FARM COTTAGES
Report
Not yet archived · Original link
Decision
Decision
Not yet archived · Original link
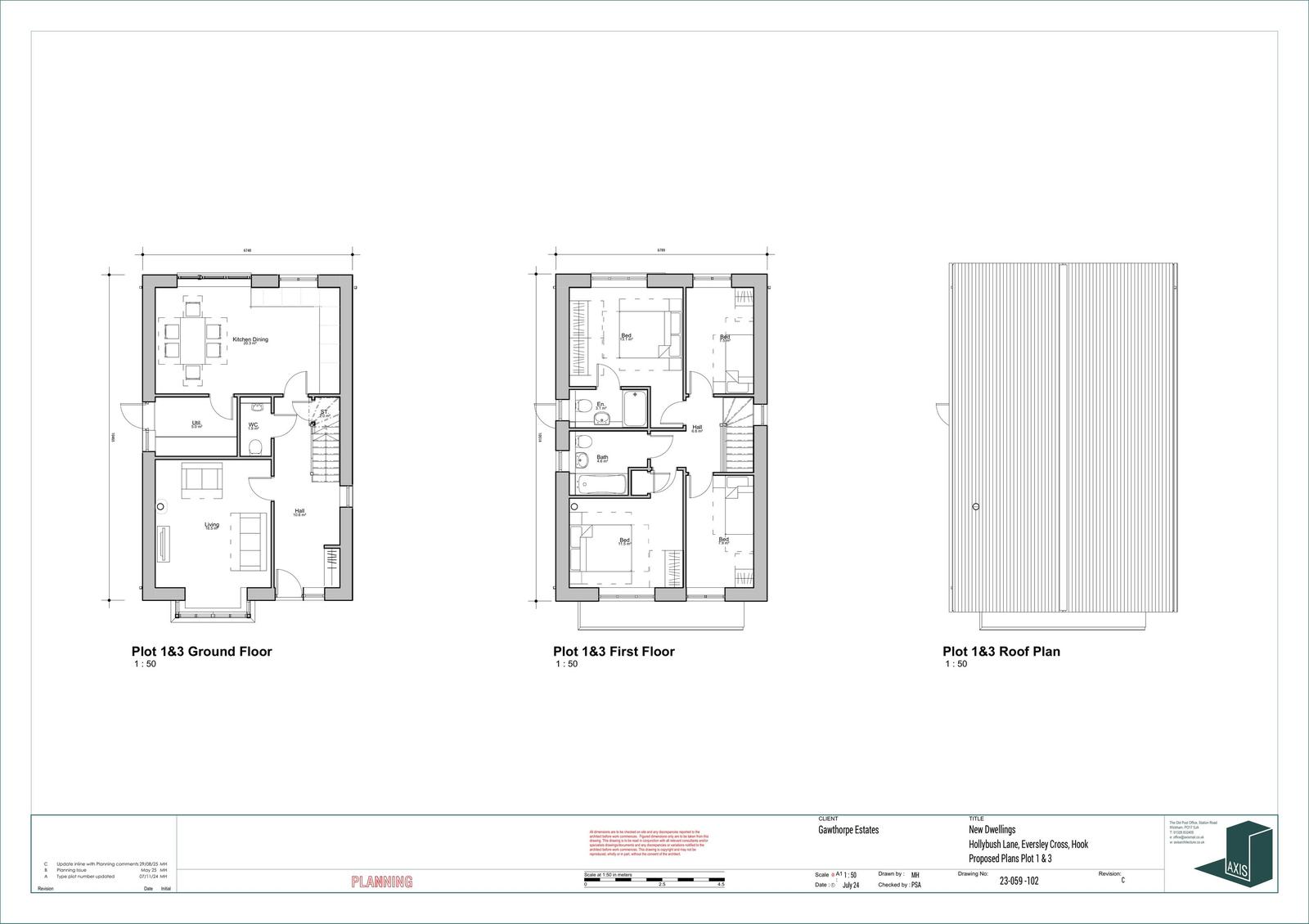
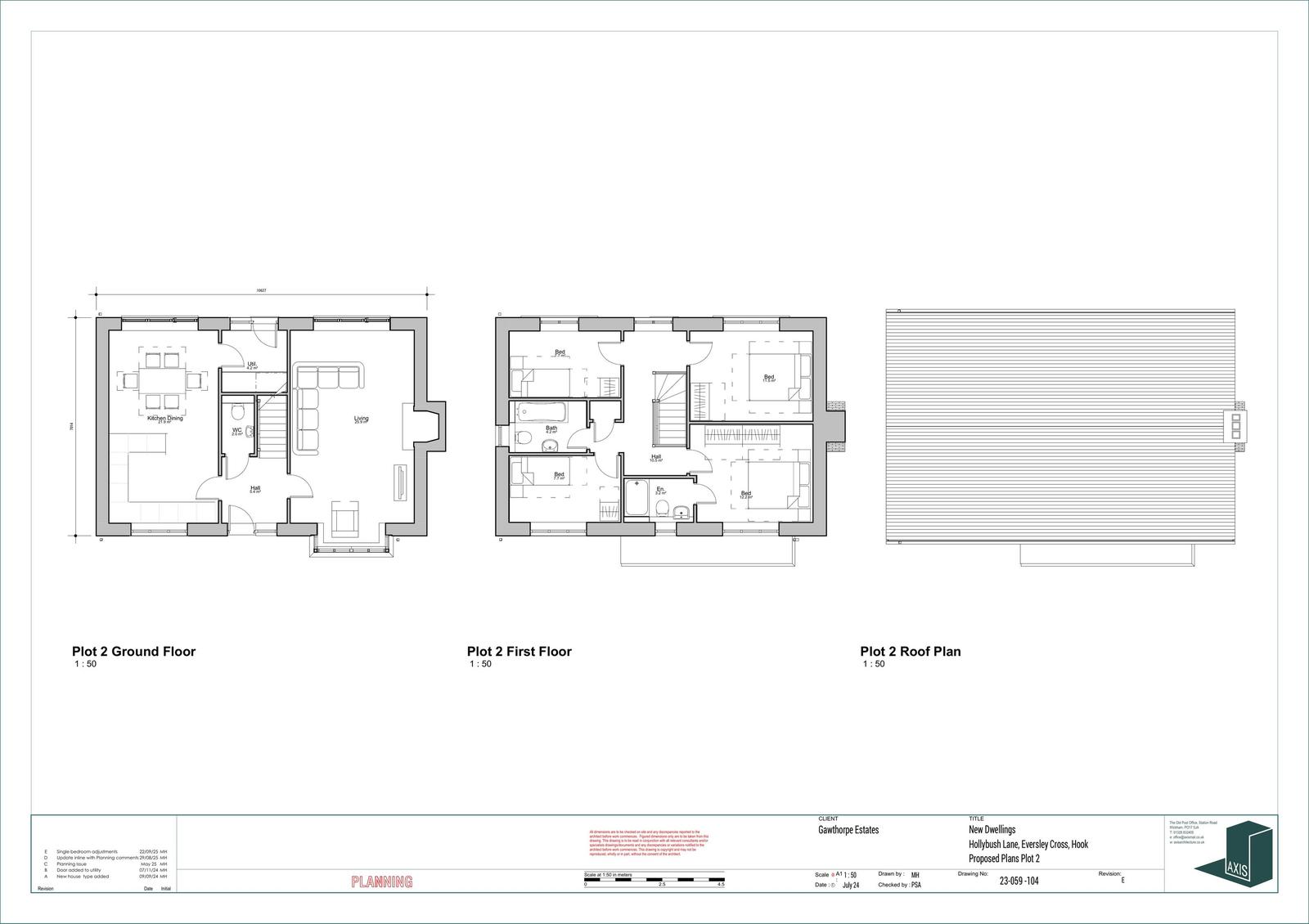
EXISTING PLANS AND ELEVATIONS
Plans
Not yet archived · Original link
HAMPSHIRE HIGHWAYS
Consultee Comment
Not yet archived · Original link
MB240605-01 PARFITTS FARM COTTAGES - AIA
Tree Survey / Arboricultural Assessment
Not yet archived · Original link
MR IAN MOSS-NEUTRAL(FULL)
General Comment
Not yet archived · Original link
MR MALCOLM BENJAMIN-SUPPORTS(FULL)
Support Comment
Not yet archived · Original link
MRS JANE STANCOMBE-OBJECTS(FULL)
Objection Comment
Not yet archived · Original link
NATURAL ENGLAND
Consultee Comment
Not yet archived · Original link
NEIGHBOUR LETTER
Correspondence
Not yet archived · Original link
PEA PARFITTS FARM COTTAGES
Report
Not yet archived · Original link
PLANNING STATEMENT
Report
Not yet archived · Original link
PROPOSED ELEVATIONS PLOT 1 & 3 - C
Plans
Not yet archived · Original link
PROPOSED ELEVATIONS PLOT 2 - E
Plans
Not yet archived · Original link
PROPOSED STREET ELEVATION AND PERSPECTIVE - C
Plans
Not yet archived · Original link
THAMES WATER
Consultee Comment
Not yet archived · Original link

Have your say

Your comment matters. Councils must consider every representation that raises material planning considerations.

Write a comment