← Hart District Council

Status

Grant New housing
Received
31 Jul 2025
New homes
6

Full proposal

Erection of 6 dwellings with associated works including relocated access to the public highway together with associated car parking, cycle and refuse storage and landscaping, following the demolition of the existing office building.

Documents

. DRAINAGE OFFICER-NEUTRAL(FULL)
General Comment
Not yet archived · Original link
. FLEET TOWN COUNCIL -
Consultee Comment
Not yet archived · Original link
. JOINT WASTE CLIENT TEAM
Consultee Comment
Not yet archived · Original link
2025-07-31 TS01 8829 FINAL
Transport Statement
Not yet archived · Original link
23-123 - 89 FLEET ROAD BNG EXEMPTION LETTER
Report
Not yet archived · Original link
23_02820_FUL-SEARCH_COMMERCIALCON29DWSEARCH_13-12-22-18-12-06-1795462
Report
Not yet archived · Original link
AIA
Tree Survey / Arboricultural Assessment
Not yet archived · Original link
APPLICATION FORM
Application Form
Not yet archived · Original link
ARBORICULTURAL IMPACT ASSESSMENT
Tree Survey / Arboricultural Assessment
Not yet archived · Original link
BAT SURVEY REPORT
Bat Survey
Not yet archived · Original link
BAT SURVEY REPORT JULY 2024
Bat Survey
Not yet archived · Original link
BIODIVERSITY OFFICER
Consultee Comment
Not yet archived · Original link
Decision
Decision
Not yet archived · Original link
DEED OF AGREEMENT
S106 Agreement
Not yet archived · Original link
DESIGN AND ACCESS STATEMENT
Design and Access Statement
Not yet archived · Original link
DRAFT DEED OF AGREEMENT
S106 Agreement
Not yet archived · Original link
E(PA)206 PA1 EXISTING ELEVATIONS
Plans
Not yet archived · Original link
E(PA)220 PA1 FLEET ROAD ELEVATIONS
Plans
Not yet archived · Original link
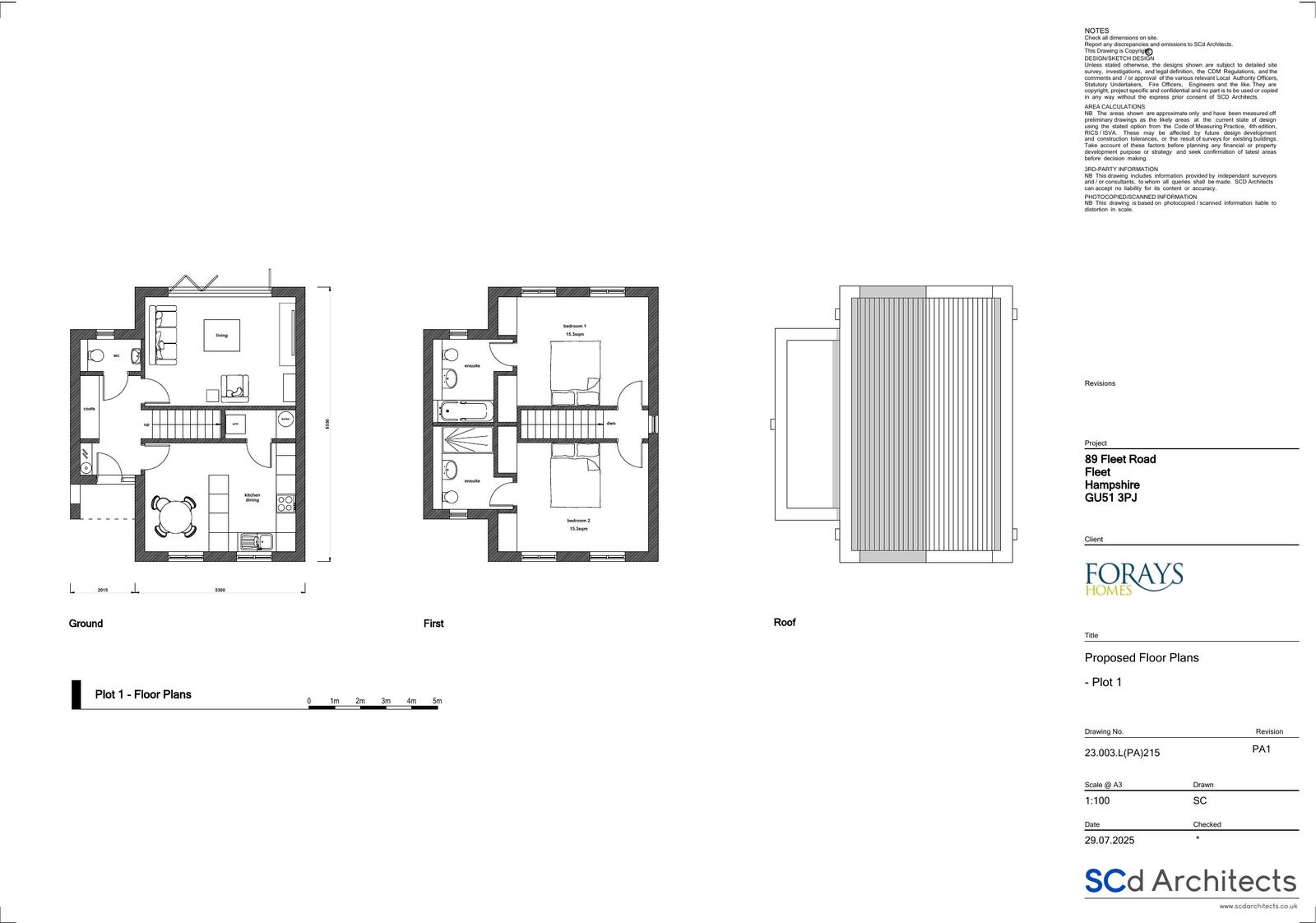
E(PA)225 PA1 PROPOSED ELEVATIONS PLOT 1
Plans
Not yet archived · Original link
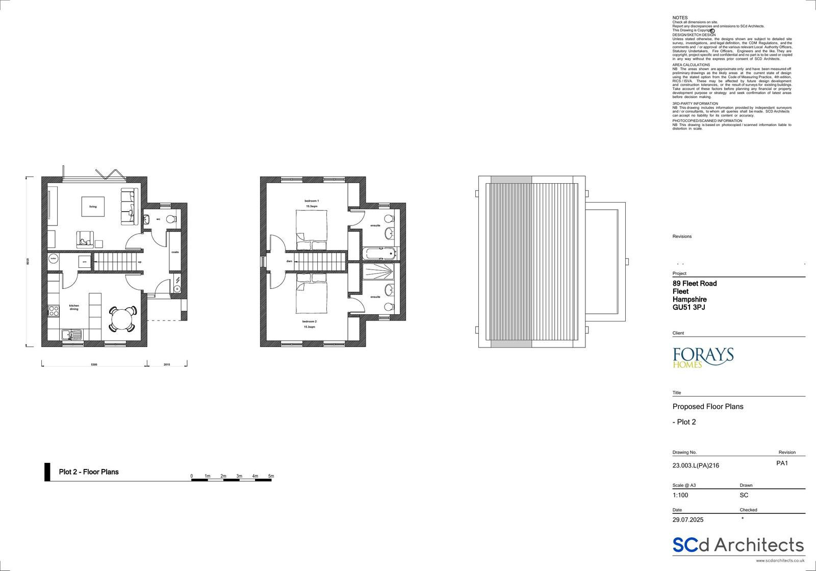
E(PA)226 PA1 PROPOSED ELEVATIONS PLOT 2
Plans
Not yet archived · Original link
E(PA)227 PA1 PROPOSED ELEVATIONS FRONT AND NORTH PLOTS 3, 4, 5 AND 6
Plans
Not yet archived · Original link
E(PA)228 PA1 PROPOSED ELEVATIONS REAR AND SOUTH PLOTS 3, 4, 5 AND 6
Plans
Not yet archived · Original link
E(PA)230 PA1 3D VIEW FROM FLEET ROAD
Plans
Not yet archived · Original link
E(PA)231 PA1 3D VIEW PLOTS 3, 4, 5 AND 6
Plans
Not yet archived · Original link
HCC HIGHWAYS CONSULT
Consultee Comment
Not yet archived · Original link
L(PA)201 PA1 SITE LOCATION AND SITE BLOCK PLAN
Plans
Not yet archived · Original link
L(PA)205 PA1 EXISTING FLOOR PLANS
Plans
Not yet archived · Original link
L(PA)210 PA1 SITE BLOCK PLAN EXISTING AND PROPOSED
Block Plan
Not yet archived · Original link
LLFA CONSULT
Consultee Comment
Not yet archived · Original link
MARTA NANASI - PHOTOS
Correspondence
Not yet archived · Original link
MARTA NANASI - PLOT 2
Photo
Not yet archived · Original link
MARTA NANASI - SUMMER SUN/SHADE DIAGRAM
Photo
Not yet archived · Original link
MARTA NANASI - VIEW FROM 89 FLEET ROAD
Photo
Not yet archived · Original link
MARTA NANASI - VIEW FROM 89 FLEET ROAD 2
Photo
Not yet archived · Original link
MARTA NANASI - WINTER SUN/SHADE DIAGRAM
Photo
Not yet archived · Original link
MARTA NANASI-OBJECTS(FULL)
Objection Comment
Not yet archived · Original link
MS ENVIRONMENTAL HEALTH OFFICER
Consultee Comment
Not yet archived · Original link
MS JULIA KNOWLES-OBJECTS(FULL)
Objection Comment
Not yet archived · Original link
NATURAL ENGLAND COMMENT
Consultee Comment
Not yet archived · Original link
NEIGHBOUR LETTER
Correspondence
Not yet archived · Original link
PLANING STATEMENT APPENDIX 3 - APPEAL DECISION
Report
Not yet archived · Original link
PLANNING STATEMENT
Report
Not yet archived · Original link
PLANNING STATEMENT APPENDIX 1 - DECISION NOTICE
Report
Not yet archived · Original link
PLANNING STATEMENT APPENDIX 2 - OFFICER REPORT
Report
Not yet archived · Original link
PROTECTED SPECIES WALKOVER SURVEY
Report
Not yet archived · Original link
Report
Report
Not yet archived · Original link
TCP
Tree Survey / Arboricultural Assessment
Not yet archived · Original link
UTILITIES PLAN
Plans
Not yet archived · Original link

Have your say

Your comment matters. Councils must consider every representation that raises material planning considerations.

Write a comment