← Hart District Council

Status

Registered House extension
Received
06 Jan 2026
New homes
0

Full proposal

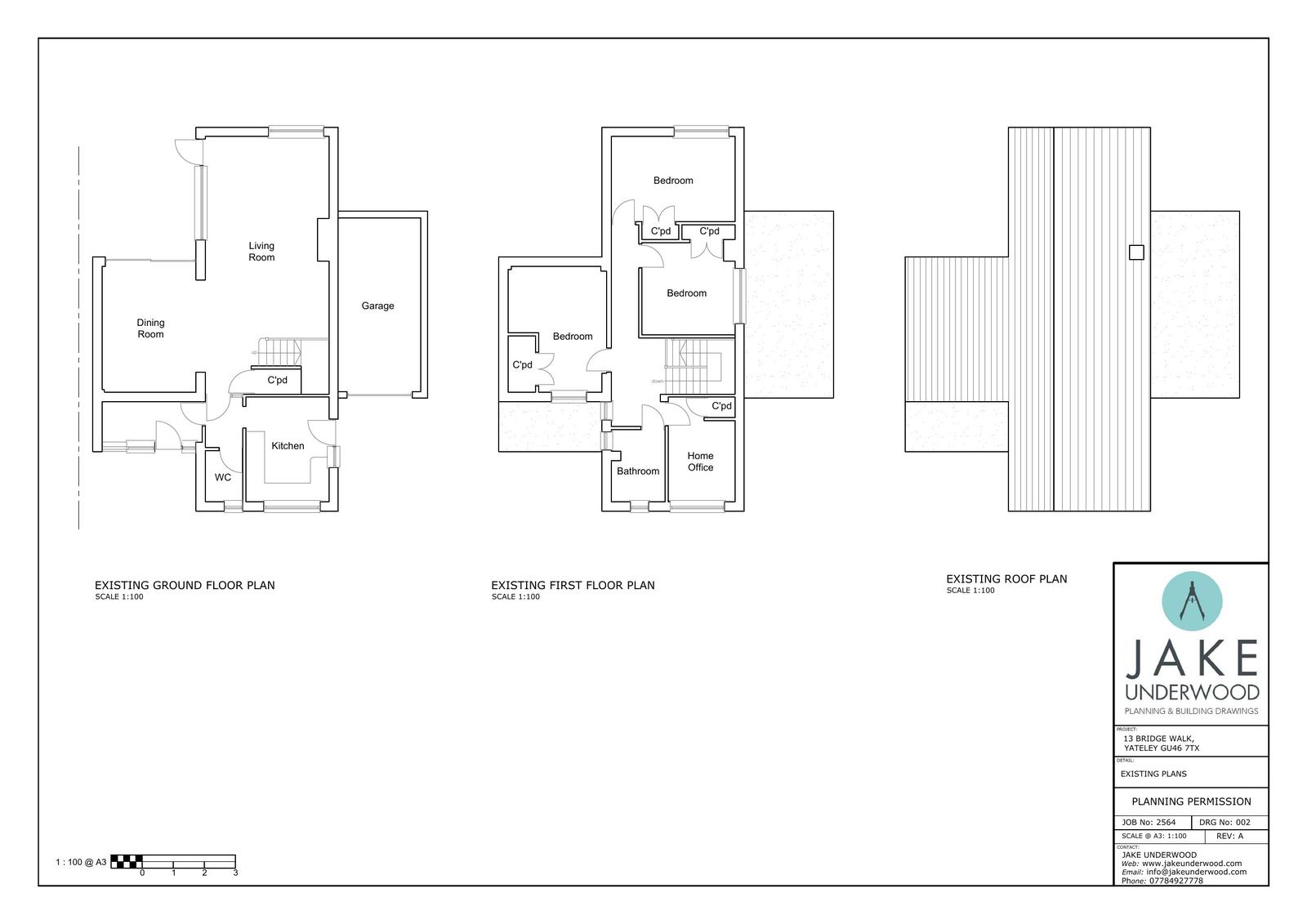
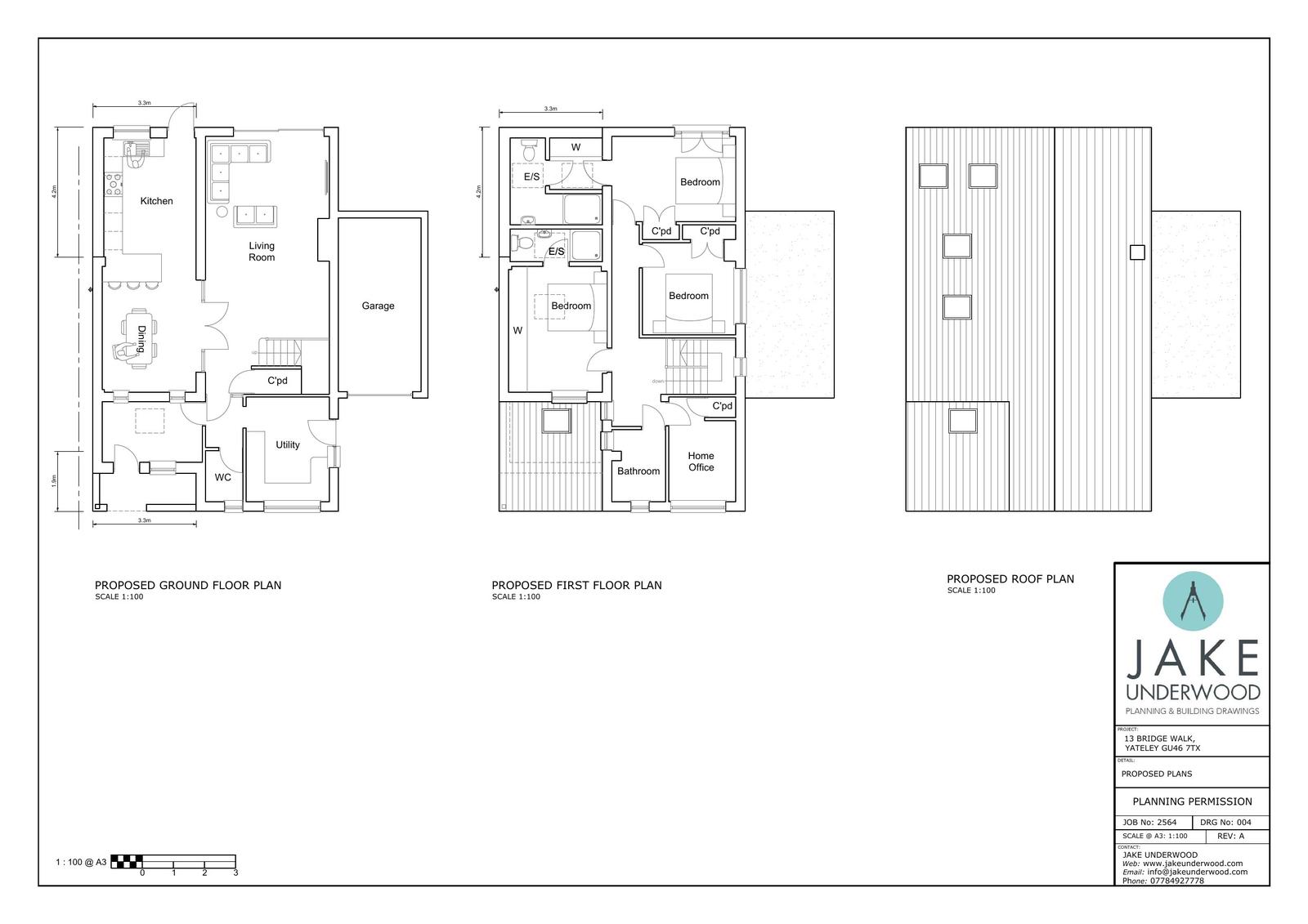
Erection of a single storey front porch extension, two storey rear infill extension, insertion of roof lights and change of materials from uPVC cladding to white render

Documents

Consultee Comment
Archived · Original link
Application Form
Archived · Original link
Plans
Archived · Original link
Flood Risk Assessment
Archived · Original link
Correspondence
Archived · Original link
Plans
Archived · Original link

Have your say

Your comment matters. Councils must consider every representation that raises material planning considerations.

Write a comment