← Hart District Council

Status

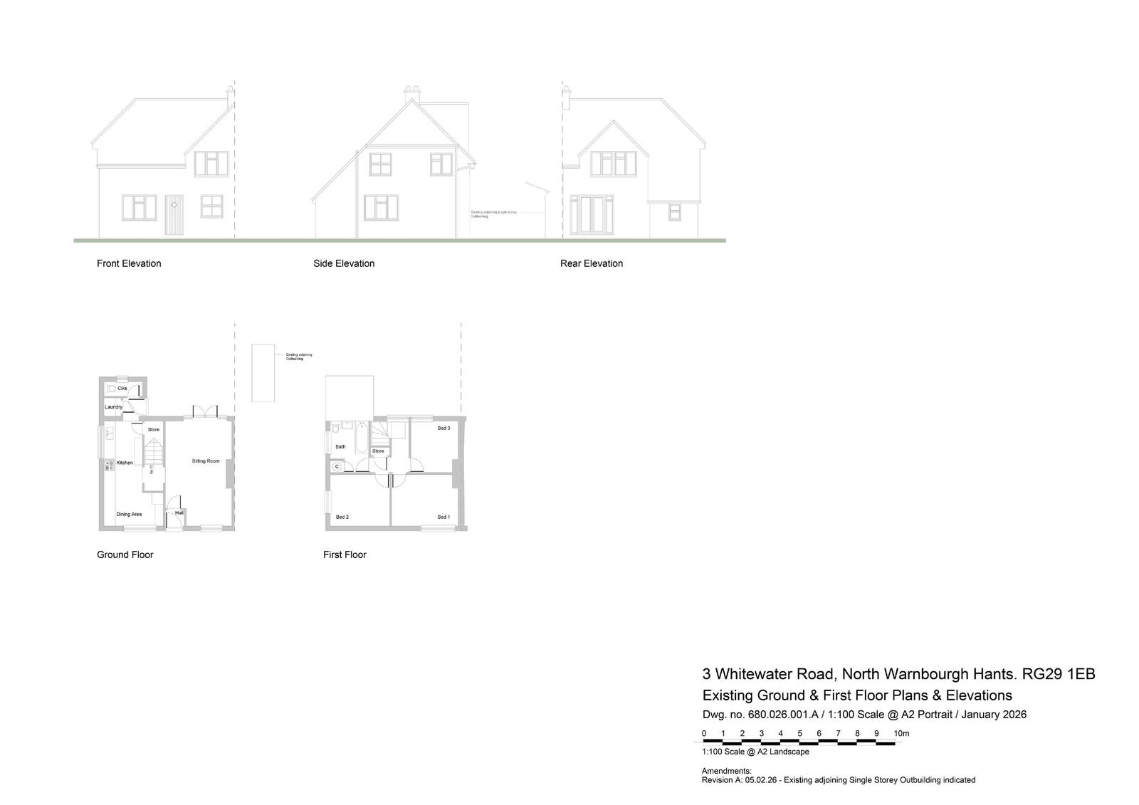
Registered House extension
Received
03 Feb 2026
New homes
0

Full proposal

Erection of a single storey side and rear extension

Documents

Application Form
Archived · Original link
Application Form
Archived · Original link
Location Plan
Archived · Original link
Correspondence
Archived · Original link
Block Plan
Archived · Original link
Block Plan
Archived · Original link

Have your say

Your comment matters. Councils must consider every representation that raises material planning considerations.

Write a comment