← Hart District Council

Status

Registered House extension
Received
05 Feb 2026
New homes
0

Full proposal

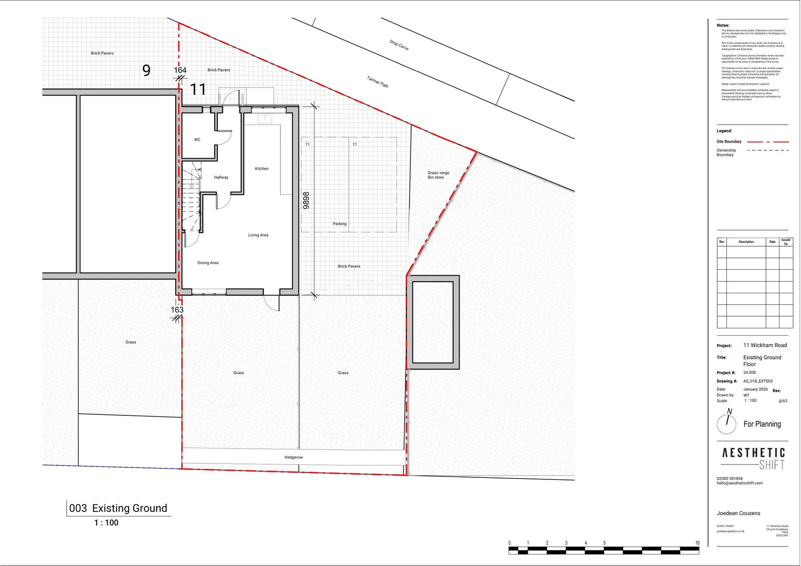
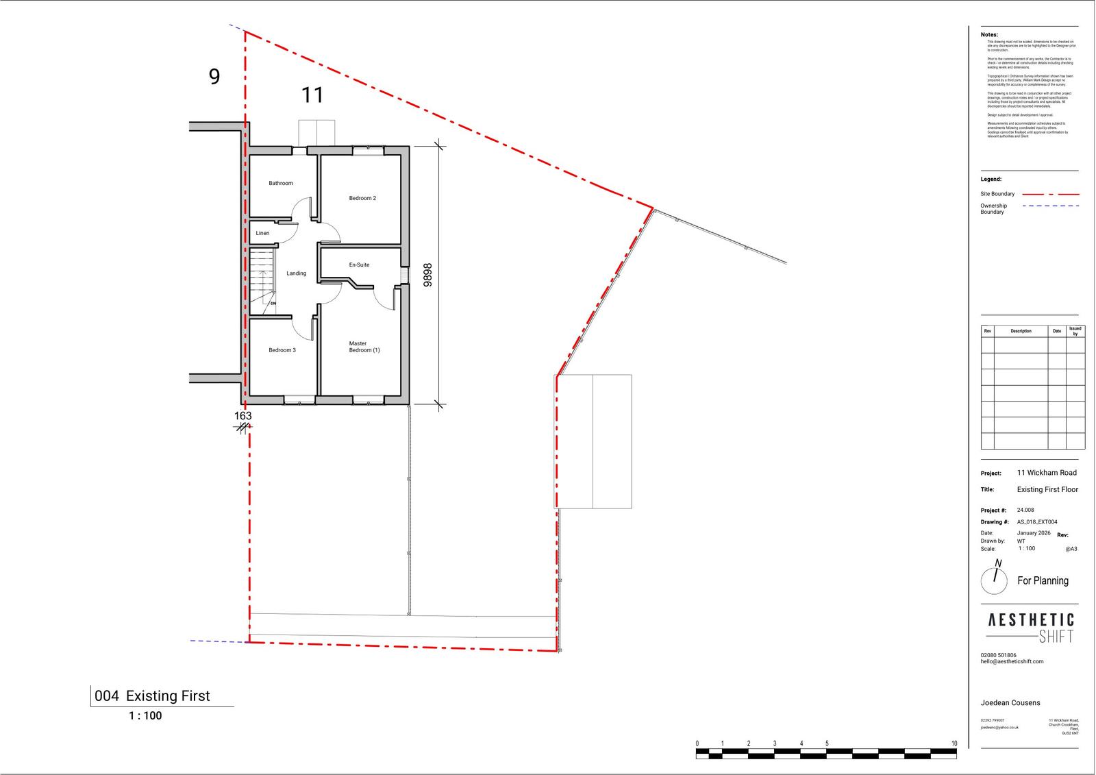
Erection of a first floor side extension with undercroft parking and installation of external stair access

Have your say

Your comment matters. Councils must consider every representation that raises material planning considerations.

Write a comment