← Hart District Council

Status

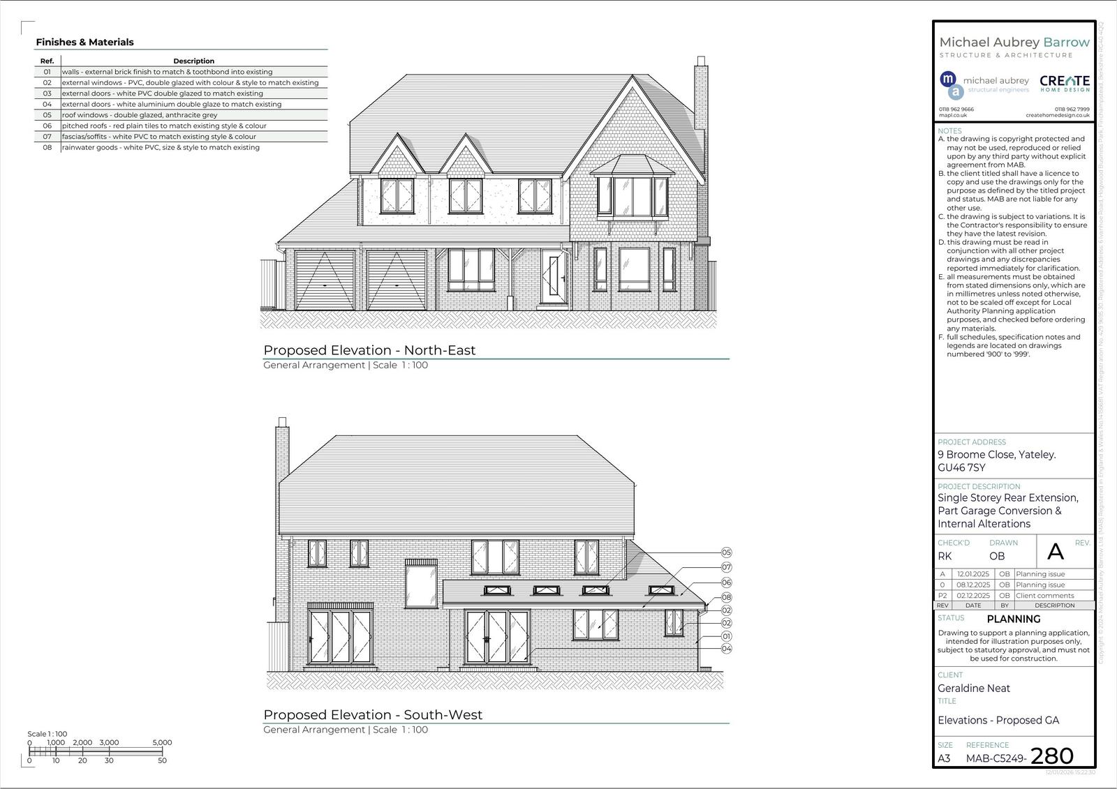
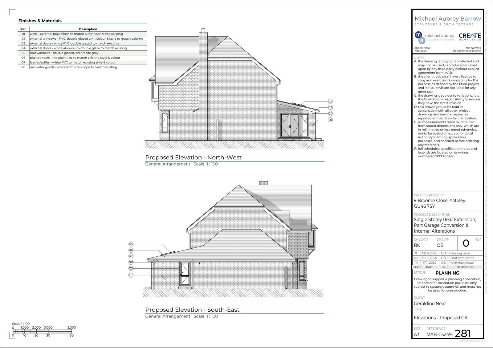
Grant House extension
Received
13 Jan 2026
New homes
0

Full proposal

Erection of a single storey extension, part garage conversion and internal alterations

Have your say

Your comment matters. Councils must consider every representation that raises material planning considerations.

Write a comment