26/00068/HOU
Hart District Council
Status
Registered
House extension
Received
13 Jan 2026
New homes
0
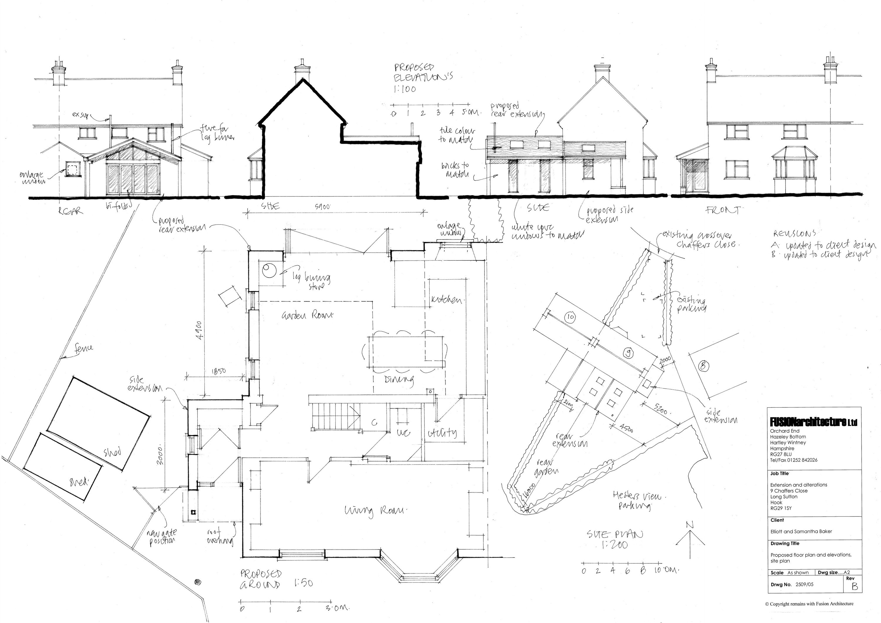
Full proposal
Erection of a single storey side and rear extension
Documents
Have your say
Your comment matters. Councils must consider every representation that raises material planning considerations.