26/00069/HOU
Hart District Council
Status
Registered
House extension
Received
14 Jan 2026
New homes
0
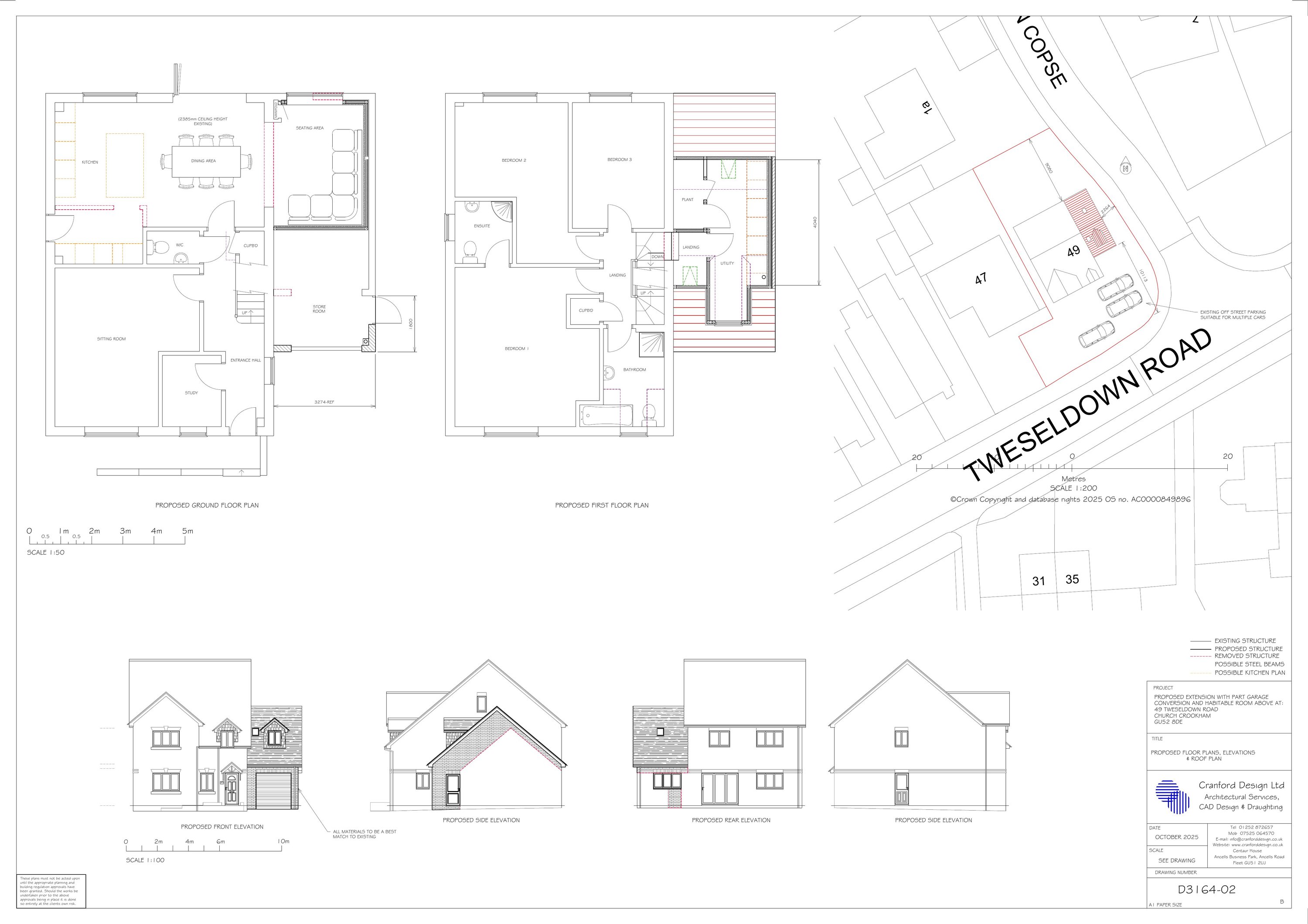
Full proposal
Erection of a single storey front extension to garage, part garage conversion and habitable room above to include front dormer
Documents
Have your say
Your comment matters. Councils must consider every representation that raises material planning considerations.