26/00106/HOU
Hart District Council
Status
Registered
House extension
Received
21 Jan 2026
New homes
0
Full proposal
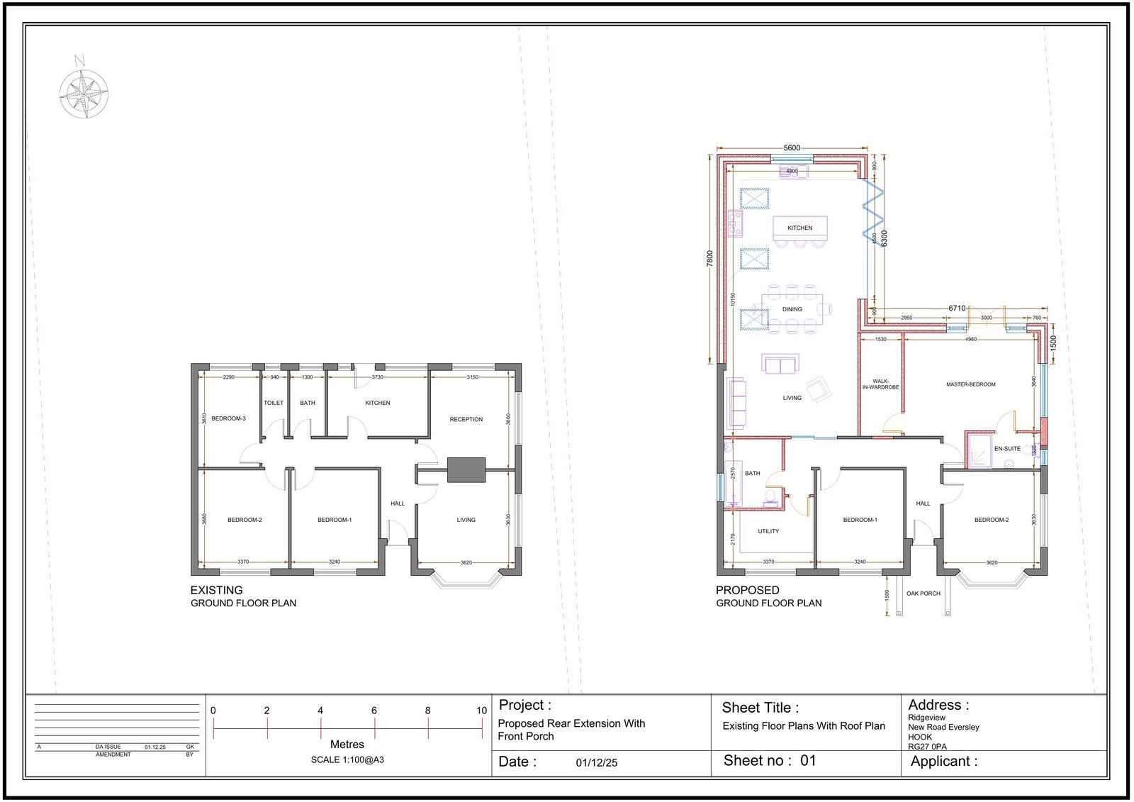
Erection of a single storey rear extension and an open porch to front, insertion of one windows to one side and two windows to other side
Documents
Have your say
Your comment matters. Councils must consider every representation that raises material planning considerations.