← Hart District Council

Status

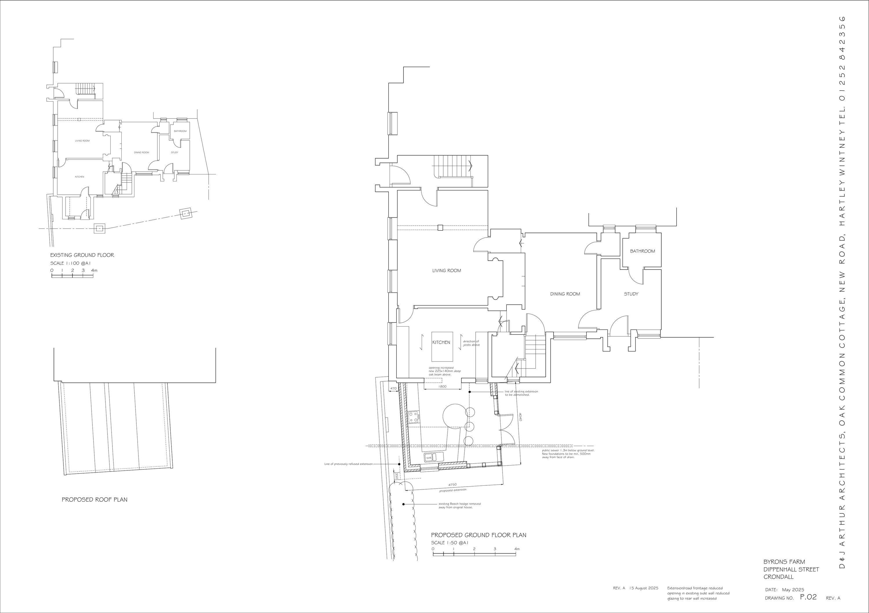
Registered Listed building
Received
27 Jan 2026
New homes
0

Full proposal

Erection of a single storey side extension following demolition of existing extension

Have your say

Your comment matters. Councils must consider every representation that raises material planning considerations.

Write a comment