← Hart District Council

Status

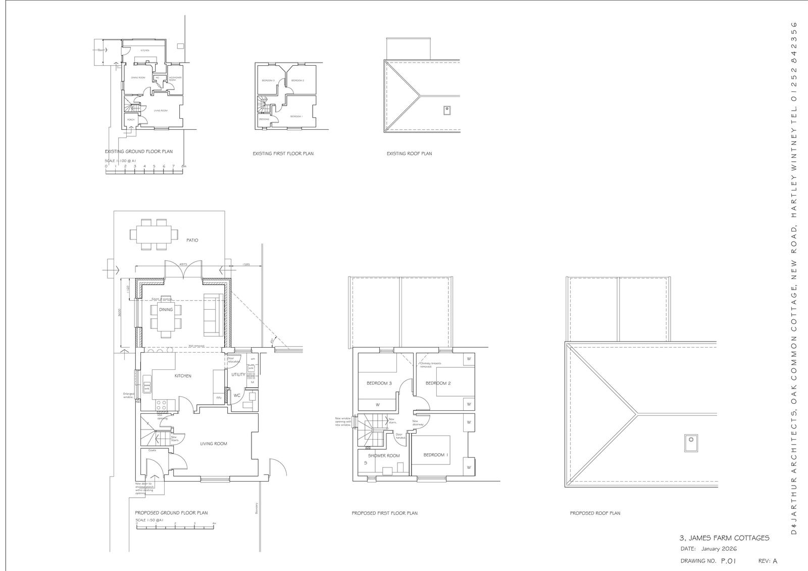
Registered House extension
Received
27 Jan 2026
New homes
0

Full proposal

Erection of a single storey rear extension following demolition of existing single storey rear extension and alterations to fenestration

Documents

Report
Archived · Original link
Correspondence
Archived · Original link
Application Form
Archived · Original link
Correspondence
Archived · Original link
Plans
Archived · Original link
Plans
Archived · Original link
Plans
Archived · Original link
Plans
Archived · Original link
Correspondence
Archived · Original link
Correspondence
Archived · Original link

Have your say

Your comment matters. Councils must consider every representation that raises material planning considerations.

Write a comment