← Hart District Council

Status

Registered Change of use
Received
04 Feb 2026
New homes
0

Full proposal

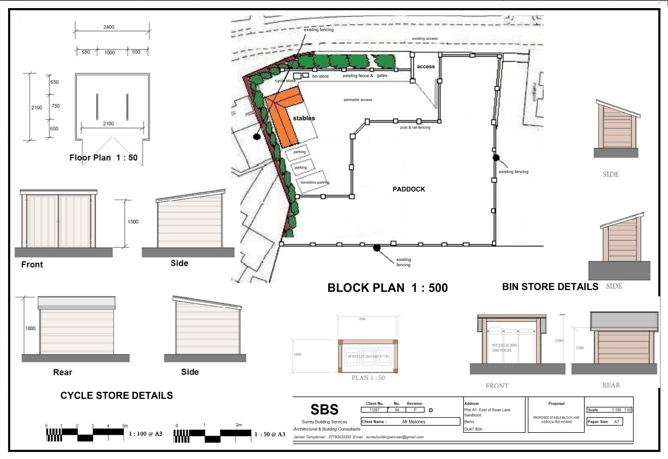
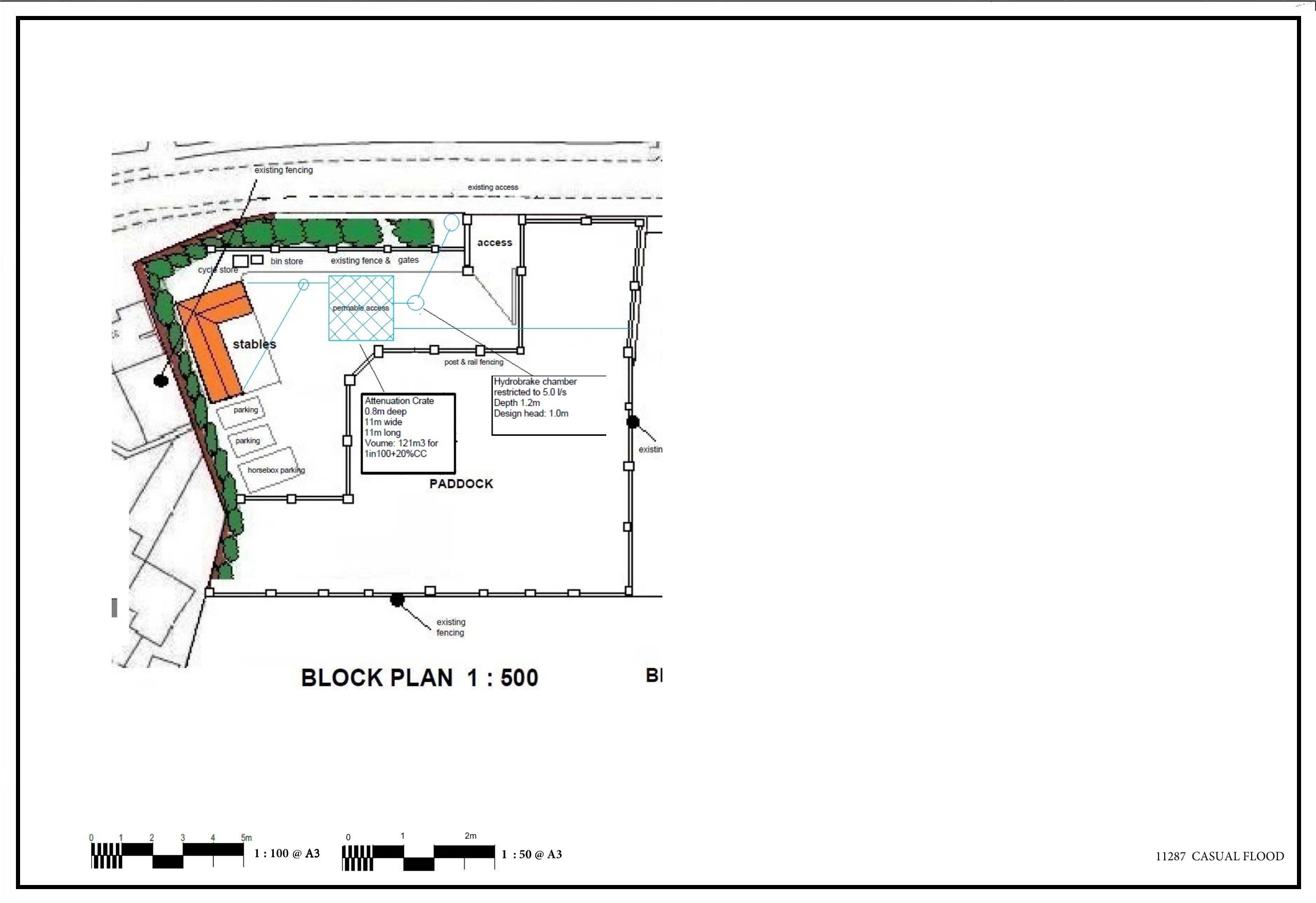
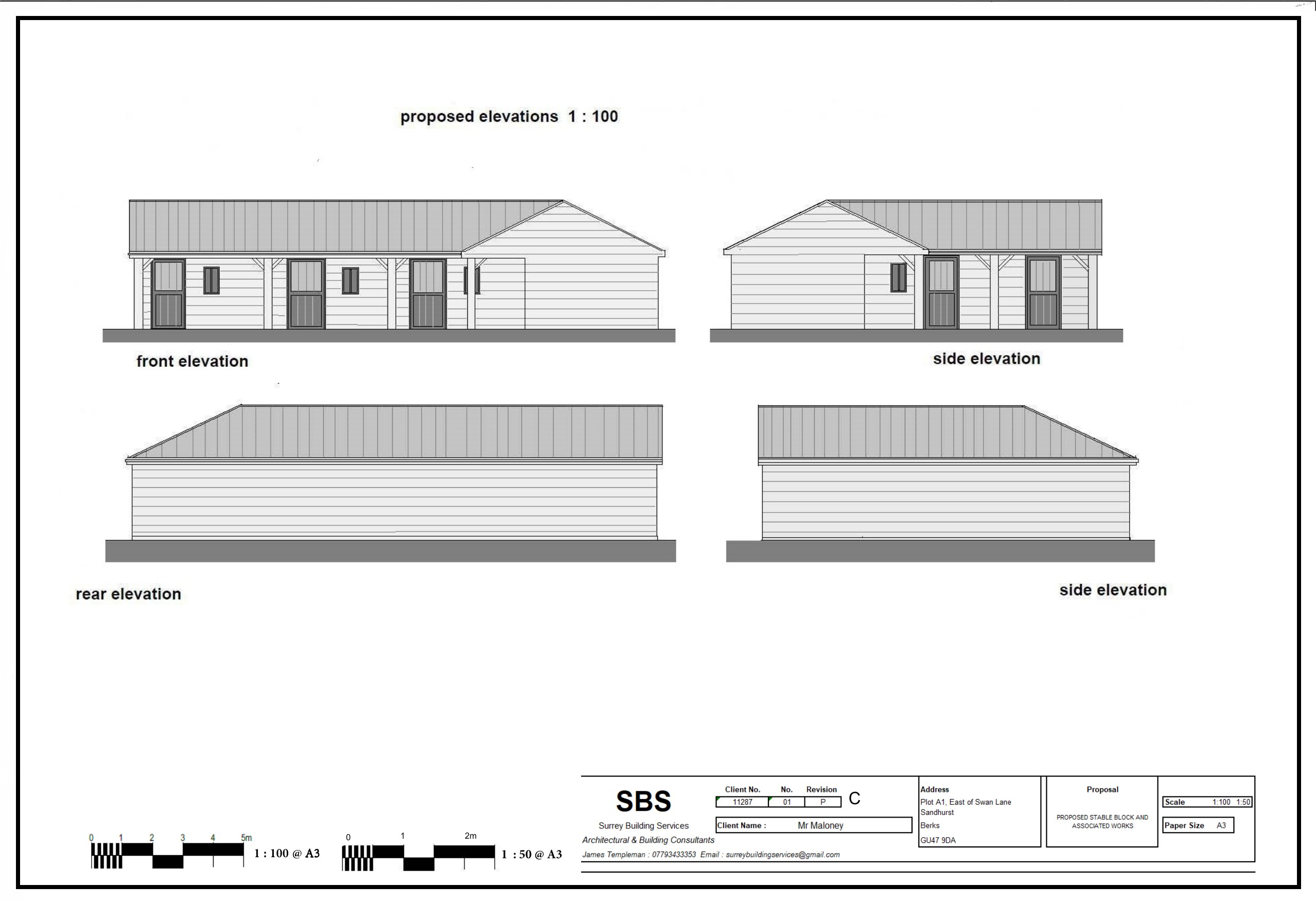
Change of use of land to equestrian and erection of a stable block, bin and cycle store

Have your say

Your comment matters. Councils must consider every representation that raises material planning considerations.

Write a comment