← Hart District Council

Status

Registered House extension
Received
04 Feb 2026
New homes
0

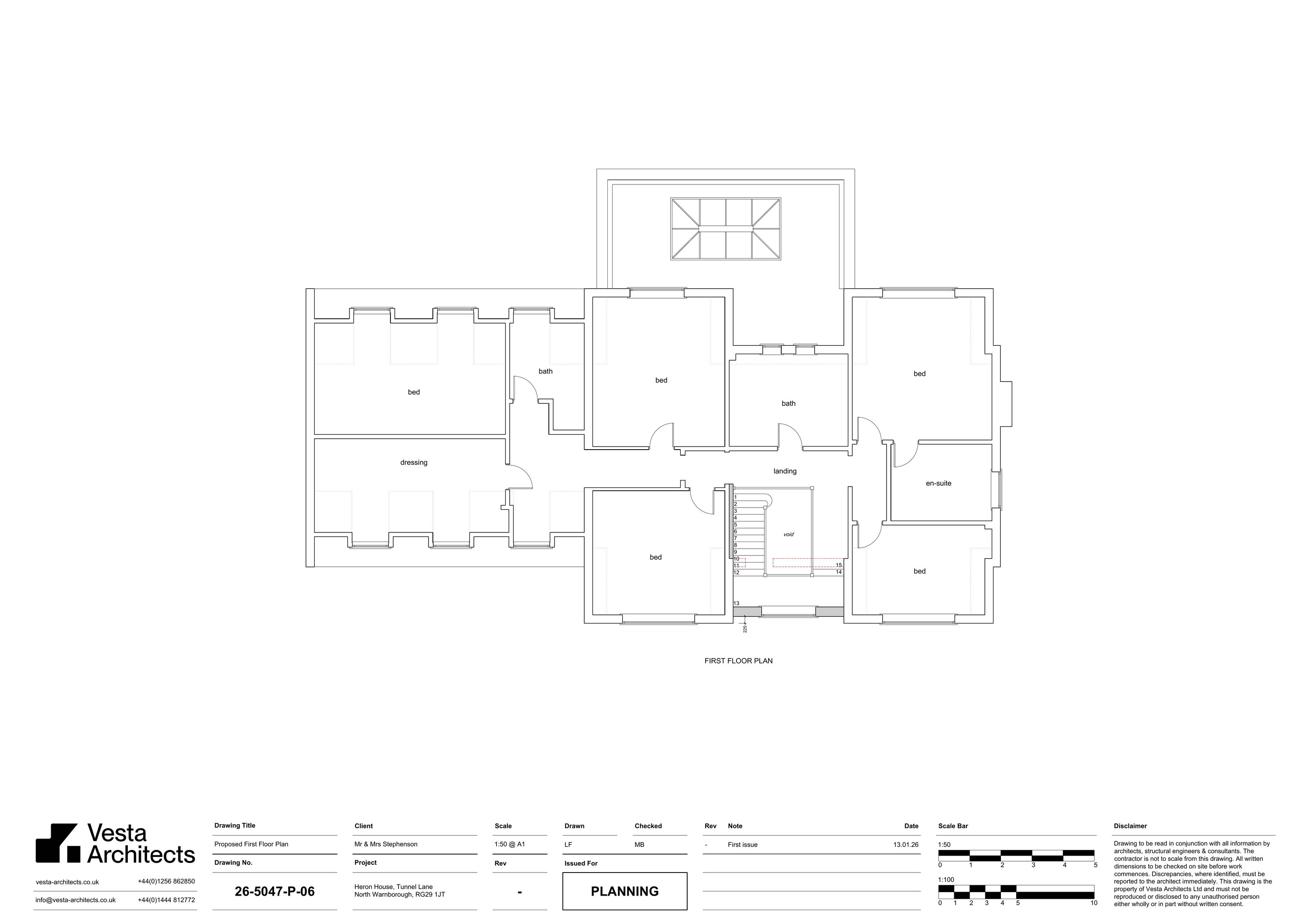
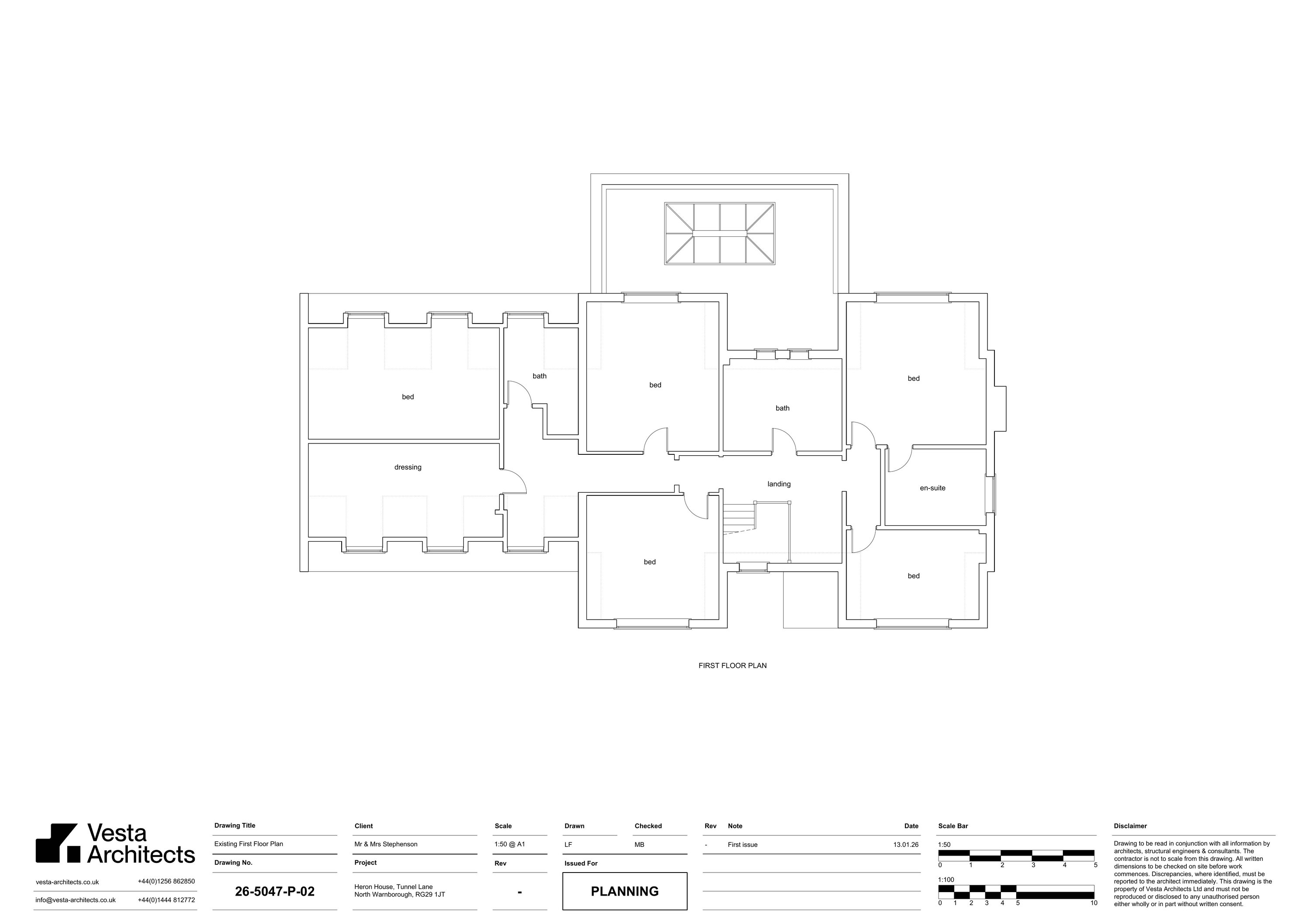
Full proposal

Erection of a two storey infill front extension with stone portico

Have your say

Your comment matters. Councils must consider every representation that raises material planning considerations.

Write a comment