← Hart District Council

Status

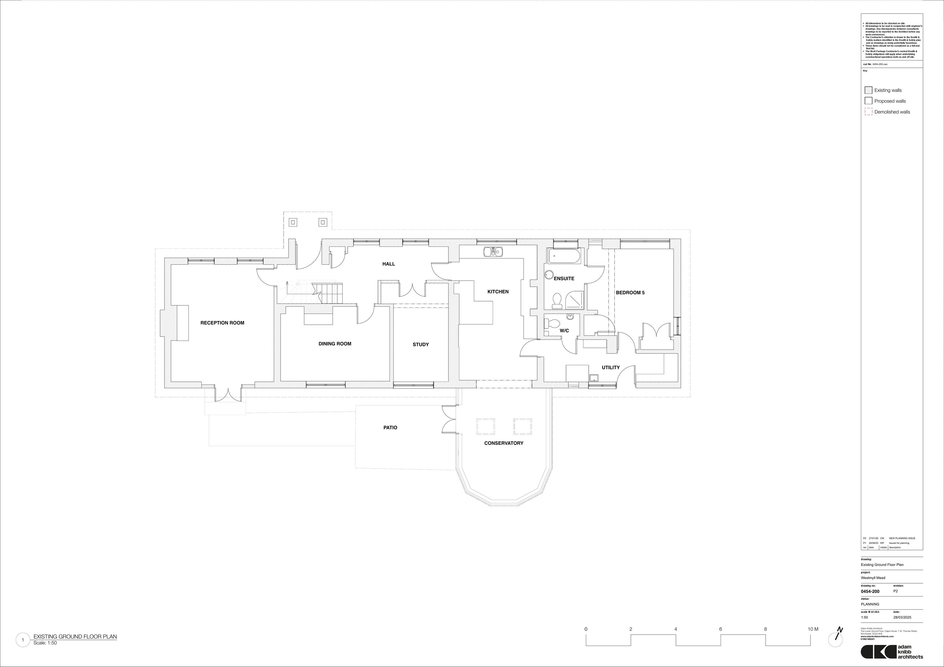
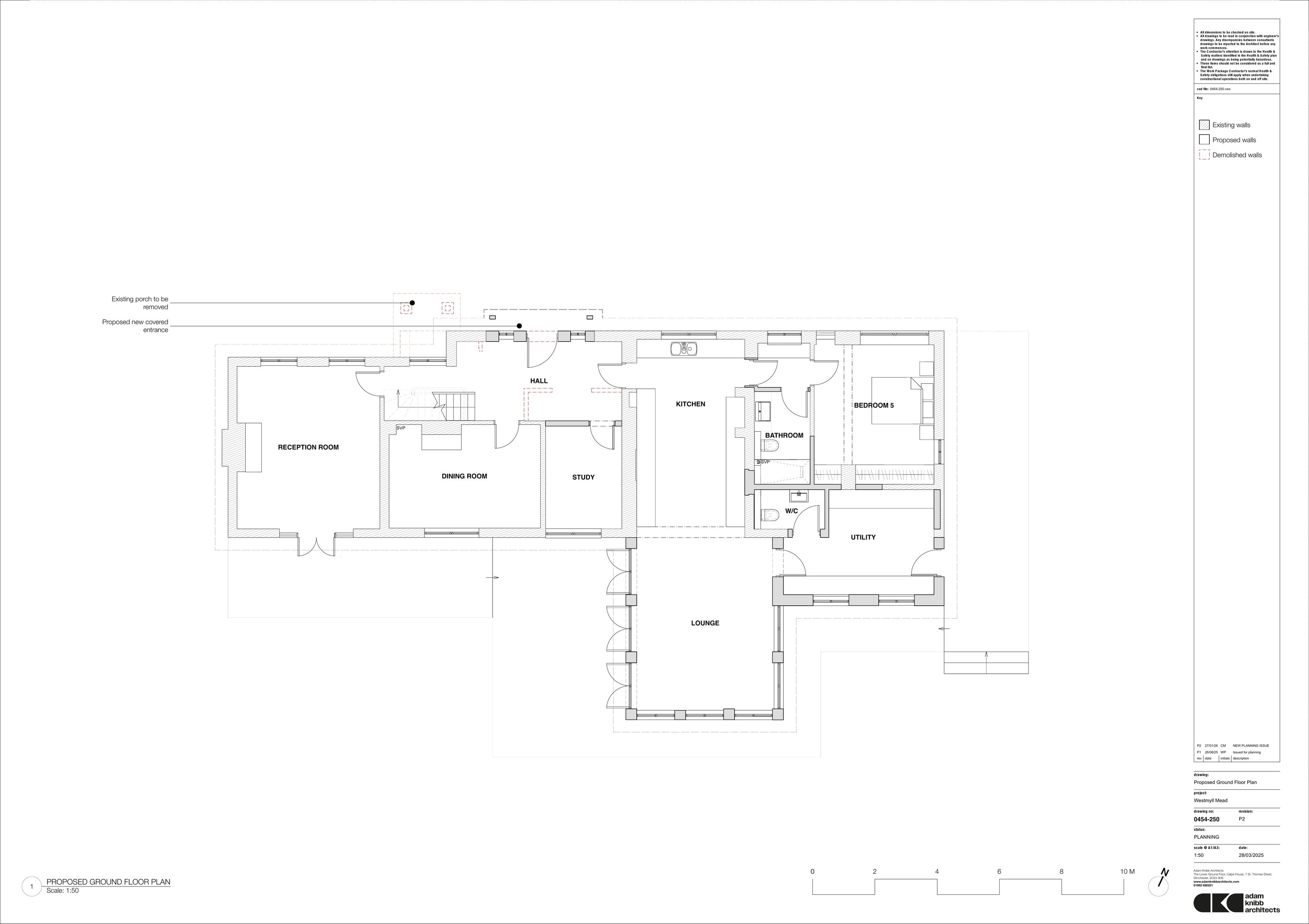
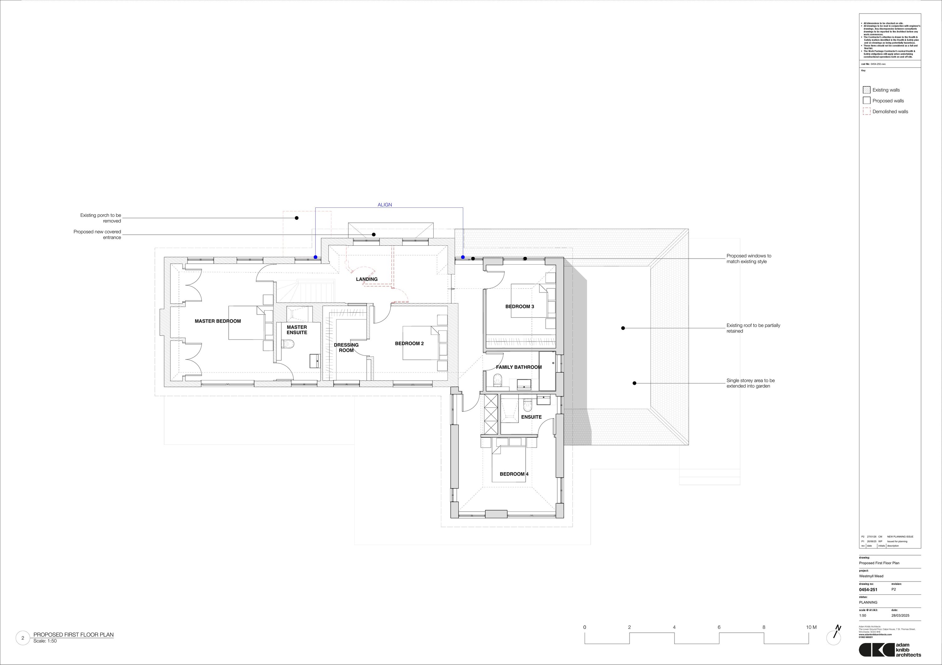
Registered House extension
Received
Last month
New homes
0

Full proposal

Erection of a replacement porch, part single storey, part two storey side and rear extension and associated landscaping works

Have your say

Your comment matters. Councils must consider every representation that raises material planning considerations.

Write a comment